
朱家角珠里尚院
Zhuli Courtyard
中国,上海
Shanghai, China
江南明珠,古镇新风
“ 简介 ”
-
本案位于有“江南明珠”美称的朱家角历史风貌区北端,东至西井河,西至珠湖路。北临大淀湖,南面课植园的地理条件让本项目拥有了得天独厚的景观人文资源。


建筑师意图用贴切的、人性化的设计理念营造出一个别具一格的温馨的艺术家工作区。并在建筑风格及环境设计方面体现时代气息,对话“江南明珠”历史文化的同时给古镇带来新的风貌。


建筑师巧妙的地将建筑排列安插在L型地地块中。充分利用了北侧和南侧地公共绿地以及东侧地西井河,将丰富的自然景观资源和地块紧密地相接融合,为艺术家们创造了一个自由舒畅的工作环境。


移步换景,错落有致
“流线交通 ”
_
通过在地块南侧和西侧分别设置出入口,达到人车分流的目的。在南侧布置具有城市节点意义的广场,创造出趣味空间,形成人气聚集效应,提升城市街区形象。广场上设置标志性小建筑与下沉景观庭院有效疏导人车流线,与周边商业相得益彰。


广场周围利用水体、景观来界定边缘,以达到自然区分建筑边缘和公园绿地的界面的效果。通过景观小品,水景和植栽创造出错落有致的步行环境, 让参观者体验移步换景的乐趣。
依河成街,静闹相宜
“ 功能分布 ”
_


沿地块西侧的L型建筑为沿街商业,沿街商业可为艺术家提供一个展示和售卖作品的空间,同时为艺术家和大众交流提供一个平台。沿街商业位于地块的西侧,紧邻珠湖路,人流量较大。

地块其余部分建筑设计为精品商业,精品商业可作为艺术家工作区域功能使用,注重对私密性的考虑,为艺术家创作提供了一个安静、自由的空间,艺术家在此可创作、可聚友、可会客、可休息、可静思、可传道、可授业。


暗香疏影,相映成趣
“景观设计 ”
_
本地块东面临水,南面及北面为公共绿地。方案设计将东侧的河道纳入整体景观统一考虑,同时将建筑沿南北侧景观水平展开,使河道与建筑的关系更为自然。西南侧的下沉景观广场通过台阶与地面连接。



硬质铺地、自然草坪、人工水系及喷泉、亲水平台、雕塑小品、景观建筑等景观元素相映成趣,与周边环境相辅相成。建筑与环境的融合变成了城市景观的有机组成部分,沿公共绿地增加了卵石铺地和木质平台,可供使用者在其中散步,休憩,娱乐。


以简驭繁,巧工独匠
“材料细部 ”
_
本项目建筑形式为现代风格。运用立体构成手法将片墙、百叶、挑檐、露台等传统建筑元素巧妙地拼接,不但使功能和形式完美的结合,也让建筑有丰富的立面变化。增加的细部处理,在形式上以简驭繁,做到简洁不失细节。


材料选用上呼应古镇传统,融入现代风格特色,选用了石材及金属板。石材采用干挂做法,通过不同形式的分缝以及不同形式的石材表面处理组合,再搭配金属压边和百叶,巧工独匠,在立面上呈现出精致多样的效果,与精品商业的气质相融合。


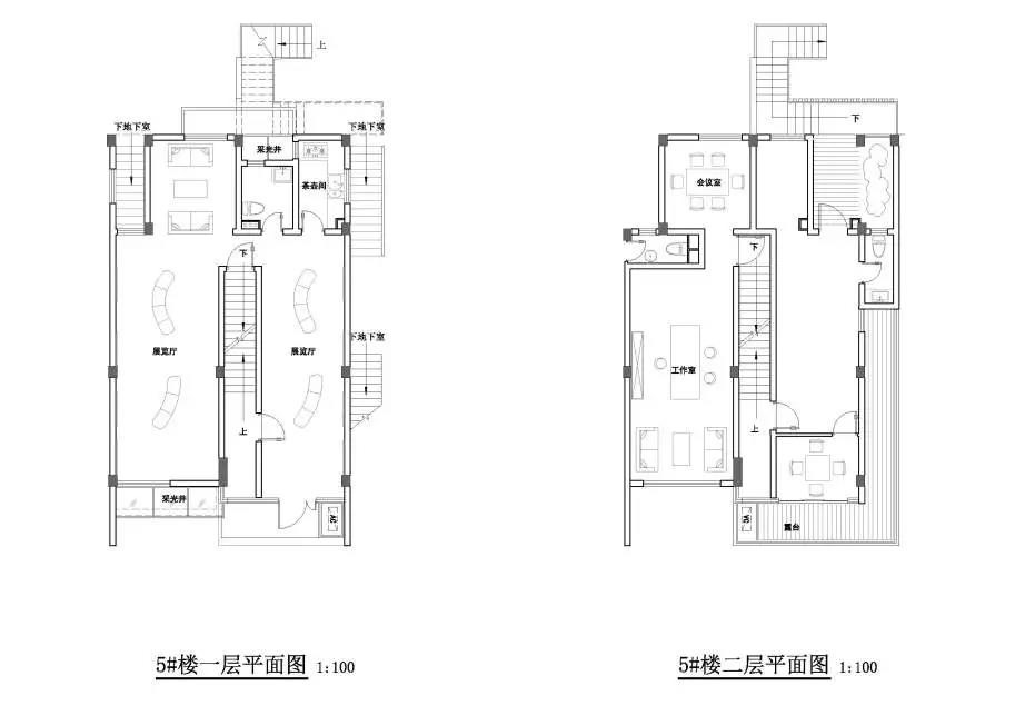
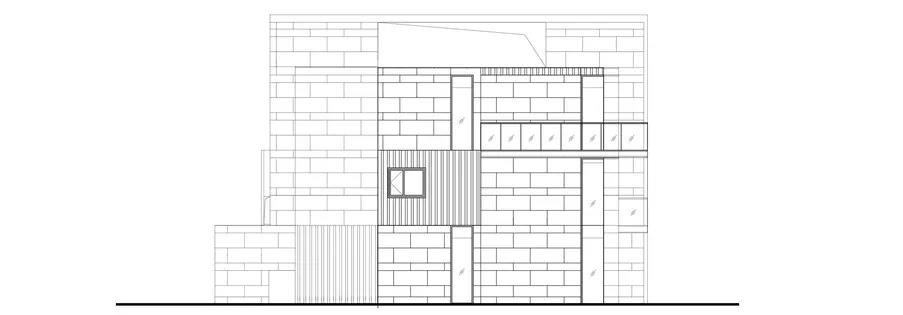
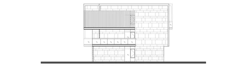
技术图纸
_

◎5号楼

◎5号楼南立面

◎5号楼北立面

◎5号楼西立面

◎6号楼

◎6号楼南立面

◎6号楼北立面

◎6号楼西立面
工程档案
项目名称丨朱家角珠里尚院
项目位置丨上海朱家角镇课植园路北侧
业主单位丨珠里投资
建筑设计丨上海日清建筑设计有限公司
设计总负责丨李竞
设计团队丨陈成
建筑施工图设计丨上海原构设计咨询有限公司
建筑施工图团队丨范硕奕 苏凌 张彩卫
建筑面积丨16859 m²
设计时间丨2014.09
竣工时间丨2018.09
建筑摄影丨是然建筑摄影 Schran Images





