
海门国际社区展示中心
Haimen International Community Exhibition Center
中国,江苏
Jiangsu , China
斜日淡笼吴楚,暮烟欲闭金焦。
未暇乘桴浮海,那船曾趁春潮。
——[宋]章甫 《海门残照图》
01
“ 设计背景 ”
_

项目位于江苏省东南部南通海门市,与上海隔江相望,曾有“科技之乡”、“教育之乡”等称号的美誉。不仅经济繁荣,历史背景底蕴深厚,是吴越文化的代表之一。


基地位于城市重要景观绿带之上,张謇大道以东,上海路以南,香港路以北,东侧目前暂无功能。地块内较为平坦,中间由景观河道一分为二。

在研究过周边环境后,基于最大化增强展示区的昭示性,选定项目东侧公园用地,入口则设置在公园西路边,利用公园西路断头路位置作停车场。
02
“ 现代与传统的置换 ”
_

◎体块分析图
建筑师阿尔瓦罗·西扎曾有“建筑漫步”的思想,即“经由曲折的流线抵达令人难忘的终景——人工的或自然的”。

建筑在人们经由弯曲而倾倒的白墙筑成的甬道后,逐步展现在面前。


现代主义风格与传统仪式感并置,方与圆之间的强烈对比,使观者获视觉上冲击的同时在心态上却趋于平静。

◎手绘稿
通过形体的叠加与组合,展示中心在垂直方向上形成不同的空间层次与高度变化,在沿河一侧则满足尽可能长的连续立面展示。

立面体现功能,虚实表征空间的差异属性,开放性与私密性一目了然。整体采用现代建筑语汇,材料处理为铝版镶嵌镀膜玻璃,结构逻辑明确,细节考究,极致的建筑美观度给人以温暖的真实感。
建筑寓以天空之浮云,大海之广阔,礁石之交错,形成纯净的形象。
03
“ 建筑自然介入周边环境 ”
_



◎施工过程
市中山居,桃源仙境。正如嵇康在《琴赋》中“锼会裛厕,朗密调均”所描绘,各种声音彼此协调,唱和共鸣,于闹市中自成一隅。


海门招商国际展示中心将当地的虞山琴派文化符号进行解构,结合周边山地环境与建筑形态,融入纯净空灵的杉树林和淡雅悠远的琴湖。营造出琴曲韵律,市中山居的场所氛围。

◎剖透视图
东侧的连廊,将建筑连接整体,围合成容纳自然与四景的水院,人们能够在钢筋水泥的城市森林中体会“复得返自然”的悠然。

04
“ 内外空间的延续与融合 ”
_
室内外的空间场所营造采用相同的手法、形态及调性,以极简的建筑语汇删繁就简,将当代艺术气息的空间元素置入简雅静谧的美学场所中。


摒弃一切繁杂的装饰,用呈现材质与色彩的纯粹性、变换的韵律与节奏、形态以及结构本身来构筑空间。

将周边环境自然地融入建筑,模糊内外边界的同时体现了质朴素雅的空间氛围与理性有序的调性质感。


技术图纸
_

◎总平面图

◎一层平面图

◎二层平面图

◎东立面图

◎西立面图

◎南立面图

◎北立面图


◎剖面图


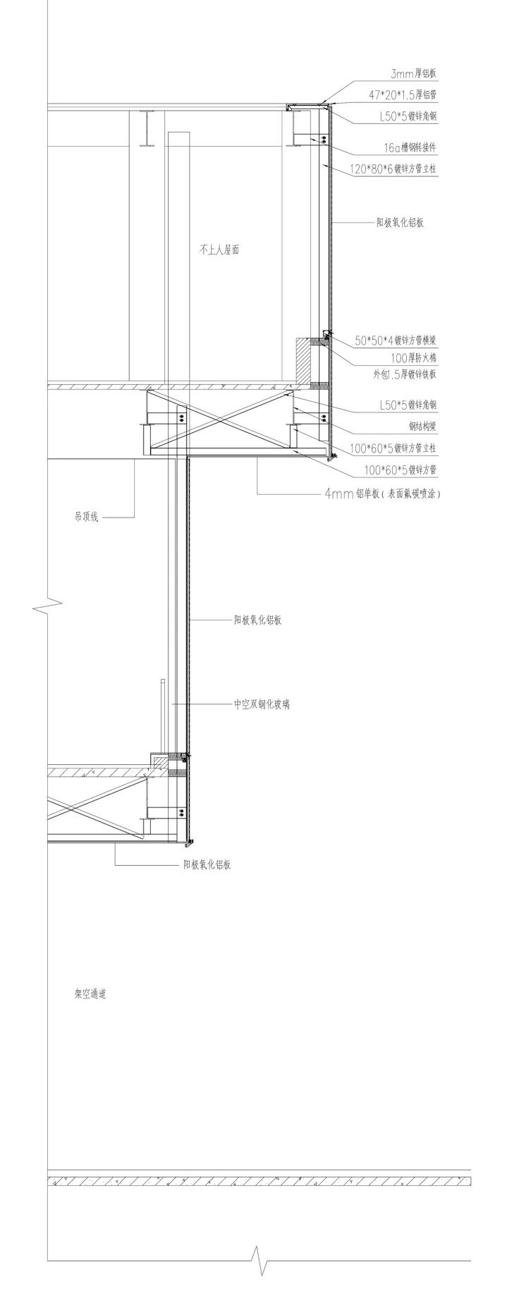
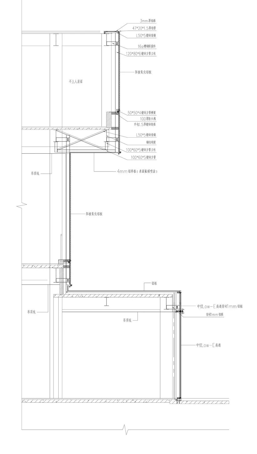
◎节点图
工程档案
项目名称丨招商蛇口海门国际社区展示中心
项目位置丨海门市张謇大道东上海路南
业主单位丨招商蛇口华东区域公司
建筑设计丨上海日清建筑设计有限公司
设计总负责丨宋照青
设计团队丨陈斌 李明 常磊 李志 刘兆鑫 王珊珊 屈思嘉
钢结构设计丨南通市规划设计院有限公司
幕墙设计丨上海远钠幕墙工程有限公司
施工图设计丨南通市规划设计院有限公司
建筑面积丨2000 ㎡
建筑摄影丨是然建筑摄影 Schranimage





