
浅棠平江 Y·TIME 运动会所®
YANLORD LAND
中国,苏州
Suzhou, China
在当下追求浮华、表象化的社会图景下,简洁是智慧的灵魂。极简主义先驱建筑大师路德维希·密斯·凡德罗曾提出:“Less is more——少即是多”即“少”不是空白而是精简,“多”不是拥挤而是完美。
极简的白丨

整个建筑刻意追求白,白色作为一种观念,它实际是能够强化对自然界所有其他色彩感觉的颜色,白某种程度还是对“空”的表达,是对生活艺术馆的强调。

◎东北立面
建筑主体选用更具质感的葡萄牙白色砂岩干挂而成,白砂干挂与玻璃的材质形成鲜明对比,在亦虚亦实间完成了对空间的诠释,带来了一种强力又安静的氛围,让整个建筑形成一个更纯粹的空间关系,能够感知人的情绪,存放身心的场所。



◎极简的白

◎体块分析
外观由两个不规则体量构成,空间中旋变、叠加、交错....部分元素以相似但异化的形式多次出现,它们共同制造充满着时间停滞感的奇异感受,让人迷失。



◎体块模型
建筑体块旋转叠加带来视觉上的多维立体,营造具气势的震撼氛围,仿佛一个巨大的艺术博物馆屹立于地面。

我们对它的期望就是一座艺术品般的雕塑感建筑,必须历尽时光洗练仍让人记忆犹新。

◎东北角



◎旋转与叠加
看似直白丨

外观简单直接白色纯粹干净,旋变、叠加、交错产生了最纯粹和微妙的视觉观感,看似直白,其背后的情感表达却得到更深沉广阔的延展这种简朴的组合,达成了更多含蓄的可能。

◎看似直白
设计延续了建筑设计的特点,将简洁、共享和生命力作为三个主旨,简洁:建筑整体效果追求的是一种纯粹的、无杂质的艺术效果; 共享:无论是羽毛球场、恒温泳池、健身房或者是书吧、茶室、水吧等皆从人们的需求出发设计,还原人文关怀的生活艺术中心;生命力:带有阳光的入口和充满生命力的地下空间。

◎功能分布
运动健身作为时下国际化的生活方式,生活艺术中心让现代运动成为可集约管控的生活方式,无论是羽毛球场、恒温泳池、健身房等,所有的运动品类皆可在同一空间完成。
我们对生活与健康的审美在发生转变,也因为我们的身边出现了更好的运动承载空间。



◎室内空间
纯粹微妙丨

在哈贝马斯的“公共领域”的概念里,其本质是一个对话性的场所,人们聚集在一个共享的空间中,作为平等的参与者面对面地交谈并形成“公共生活”。我们要创造的就是这样一个寂静、有力的公共领域。

◎入口形象
两个分离体量中间的“玻璃块”构成整个建筑的主入口,阳光从顶部透明玻璃采光顶照下来,这些原本在室外的元素被引入室内,模糊了室内外的边界,希望这个充满抽象出入口的建筑将人们的视线引导向内,人们在此休息、运动、交流、活动。
“阳光”、“开放”已经是成为城市公共性空间必要的精神气质和某种隐喻。



◎局部
地下一、地下二层集合了泳池、休息、娱乐、健身等功能,围绕着一个采光庭院展开,利用侧高窗采光,也可以享受到不同品质的光线,这样的空间布置将形成虚和实,光线和风景的对话。
在阳光交融中消除了建筑内外的差异,营造空间中人与自然的亲密和谐氛围。

◎轴侧图
砥砺践行丨

材料作为空间物性的主要构成部分,是需要经过敏锐感性以及理性反思并通过实践得到的成果。
在确定每一种材料使用之前,都要经过数字建模确定基本材料,1:1实体样品比选确定颜色、尺寸及纹理,主要的墙面材料更需要现场上墙施工后确认。

白墙是这个建筑的一大特点,越是简洁的越是需要精心设计。从远处看整个建筑是一体的白色,但近看石材400*1200、800*1200、1000*1200错缝拼接,富有细节。



立面葡萄牙白色砂岩采用开放式,开放式石材幕墙是一种全新的幕墙设计理念和结构,具有三维调节、拆装方便、易于维修、节能,安全性能、外观效果好等优点。
同时考虑型材防水问题,铝合金型材采用氟碳喷涂工艺,可以发挥持久的防腐、防水性能。
删繁就简,溯本清源丨

设计其实是种取舍,学习的过程是加法,不断的尝试各种方法,去积累;而设计的过程其实是做减法,不断的为自己的思考减负,减到不能再减。
极简设计是简洁和明确,追求的是一种纯粹的、无杂质的艺术效果,是一种对城市和生活的理解。
技术图纸

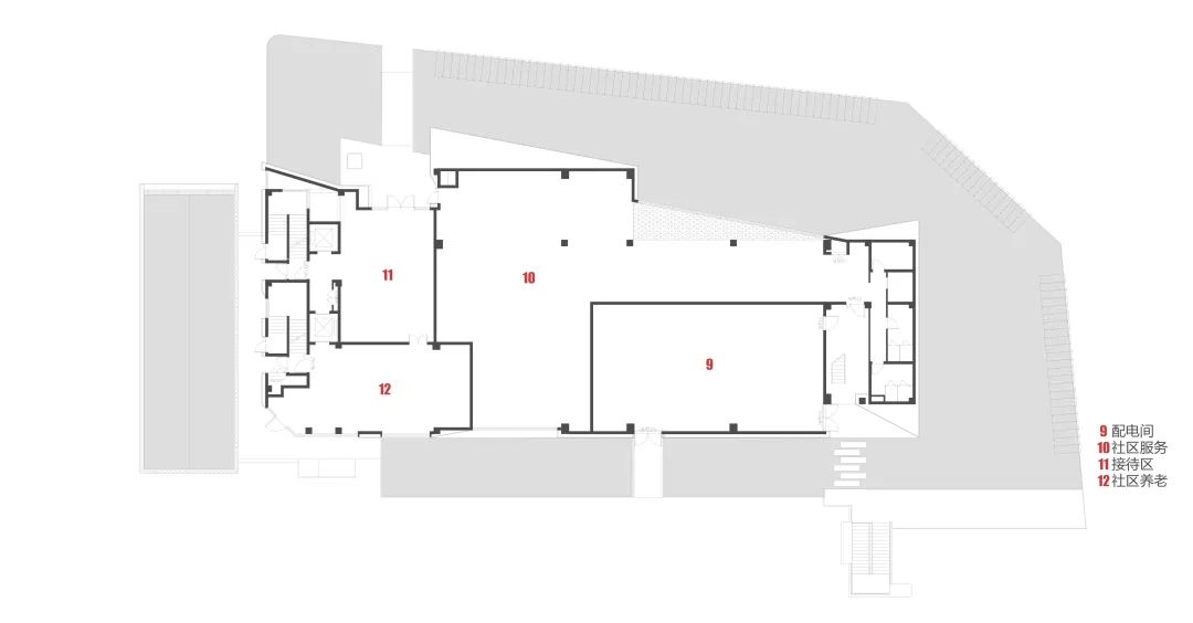
◎一层平面图

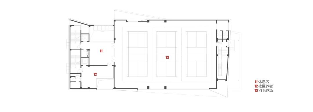
◎二层平面图

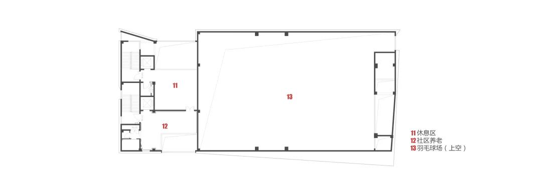
◎三层平面图

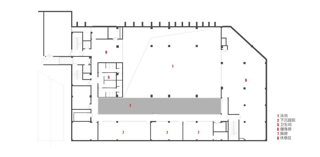
◎地下一层平面图

◎地下二层平面图

◎剖面图
工程档案
项目名称 | 仁恒浅棠平江 Y·TIME 运动会所®
项目位置 | 苏州市姑苏区
业主单位 | 仁恒地产(苏州)有限公司
甲方团队 | 姜宏 陆苑 周雪芳
设计单位 |上海日清建筑设计有限公司
总建筑师 | 岑岭
设计团队 | 黄小卷 阮富威 褚炜 姚凯丽
景观设计 | 贝尔高林国际(香港)有限公司
室内设计 | 苏州金螳螂建筑装饰股份有限公司
施工图设计 | 苏州城发建筑设计院有限公司
幕墙设计 | 中衡设计集团股份有限公司
建筑摄影 | 行知影像 俞波
设计时间 | 2018年1月
竣工时间 | 2019年9月





