
大理苍山小院
Dali Cang Hill Yard
中国,云南
Yunnan, China
	
项目整体依山而建,借鉴大理的传统民居院落形式;建筑上采用传统的白族民居元素,空间上更符合现代人的居住习惯。建筑与当地传统去接近,亲切的接近自然,接近人居的本来形态。
	

	
	
项目地址
“ 苍山洱海与大理民居 ”
_
	
大理以苍山、洱海闻名于世,有诗云“苍山不墨千秋画,洱海无弦万古琴”说的就是这两个景点。苍山,又名灵鹫山,亦称点苍山,因其山色苍翠、山顶点白而得名。
	
大理闻名遐迩的“风、花、雪、月”四大壮美景观中的雪,说的也正是苍山上的皑皑白雪。苍山由北向南共十九峰,两峰之间有溪水自山间流下,共十八溪。本项目位于马龙峰和圣应峰之间,山峰之间形成一道峡谷,汇水成清碧溪。
	

◎位于大理海西板块,西景线上末村西部,苍山脚下

◎项目位于苍山洱海之间
	
清碧溪,景色优美,风景宜人,分为上、中、下潭,其水各自的景致:“下潭水光深青色,中潭水光鸦碧色,上潭水光鹦绿色。”因此取名清碧溪。
	
项目东侧为上末村,大理环洱海发展的村镇形态,均采用街、巷、坊、院、场这几种元素组成,统一的构成元素和构成方式,使得大理城镇获得了规划、建筑、景观的有机融合。
	

◎大理民居风貌

◎街+巷+坊+院+场
	
由于存在着苍山洱海的缘故,所以当地建筑一般不像普通民居一样朝着正南北,而是顺着山势改变朝向,从而获得充足的日照。
	
另一个影响朝向的原因就是风向,大理民居地处苍山洱海之间,终年风吹,所以建筑选择背靠苍山来抵挡春冬季风。
	


◎面向洱海的建筑朝向
	
	
布局
“ 规划依山而建 ”
_
	

	
基地位于马龙峰和圣应峰之间,地块有多处陡峭的山坡,设计的重点之一是要尽量减少对地貌的破坏,尽可能依山而建,以建筑群体的错落布置呼应山势的起伏。
	
借鉴大理传统民居院落形式,屋顶错落,树木参差其间。
	

◎总体规划草图
	
“正房要靠山,才能坐得起人家”的思想至今影响着一辈人。大理地处由北向南的横断山脉帚形山系形成的山谷坝子,依山傍水,必然坐西向东。主房按照东西轴线布置房屋,重院则按照南北轴线深入。
	



◎不断升高的台地
	
项目根据现实地形,层叠上升的建筑布局,与苍山层峦叠嶂、绵延的山脉呼应。
	
起伏的屋面与山形融合,悬山顶勾勒的屋顶线条在层叠的白墙中绘出一幅精妙的山水画。
	


◎规划依山而建,屋顶错落有致
	
面朝洱海,在洱海这个地方,你可以暂时远离城市的喧嚣,沉静在这宁静温柔的景色里。
	

◎拾级而上的小径
	
	
院落
“ 三坊一照壁的大理白族民居 ”
_
	
白族传统民居的布同,以“三坊一照壁”为主。这是由一幢两层楼的正房,两侧各配一座楼房,以及正房对面的一堵照壁,共同围成一座封闭式的院落。这种布局的民宅,都在正房对面砌起一堵照壁,以围成院落,中心称“天井”。
	
◎三坊一照壁白族民居形式

	
构成院落的基本元素是单体建筑,而组成院落群的基本单元是“院”。
	
大理白族院落式民居的平面构成元素包括单体建筑(“坊”)、庭院、照壁、廊道及院墙。其中“坊”是白族民居建筑的基本单位,通过“坊”的排列组合能够依据实际地形、朝向需求等进行多种形态的构建。围合封闭的院落就是以坊封闭围合而成,通常的形式主要包括L、凹、等。
	


◎各种不同尺度院落和天井
	
	
材料
“ 传统的白族民居元素 ”
_
	

	
大理民居,白墙青瓦,多用石块、木料和筒瓦建成。当地有一民谚说:“大理有三宝,石头砌墙不会倒。”村民既用整齐的石块垒房,也能用卵石砌起高墙,并坚固异常。白族人民高超的建筑技艺,由此可见一斑。
	
白族民居建筑材料以木结构为主,外墙材料多用砖、石、土培等,石材一般作为墙基。墙一般以白色为底色,屋顶则铺瓦片。石基、白墙、青瓦是构成大理白族民居的主要基调。民居建筑整体外观雄浑朴素,内院采用木结构,并有较多的雕镂装饰,具有精巧的特征。
	


	
白族人无论大家小户,都十分讲究门楼的建筑。大门座选用海东青山石精凿成芝麻花点,砌出棱角分明的基座。基座上面架起结构严谨、雕刻精细、斗拱出挑、飞檐翘角的木制门楼。
	
整个门楼的屋脊、墙脊、屋檐、门窗、照壁无一不是精心雕刻的杰作。用大理石、花砖、青砖、木雕等共同组成斗拱重檐,屋脊、墙脊做成翘角,远远看去整个门楼好像振翅欲飞,在动感中体现出宏伟壮观的气势。白族人家对美的追求、对美的享受似乎都集中在这个门楼上。
	


	
	
结语
“ 纯粹的设计语言和苍山景观 ”
_
	

	
中国传统民居建筑能够与自然环境很好的融合共生,能够最大程度的利用周围的自然环境和资源,这是我国传统民居建筑的精髓和魅力所在,是我国劳动者技术和智慧的结晶。
	
面对现代建筑技术和材料的飞速发展,大理白族传统民居建筑如何在不丢掉自身传统特色的基础上不断进行创新发展,在保留地域文化特点的基础上利用现代先进的技术来改造传统民居,使现代先进技术很好的融入到大理白族传统民居建筑当中,将是一个不断进行的课题。
	

	
	
技术图纸
_
	

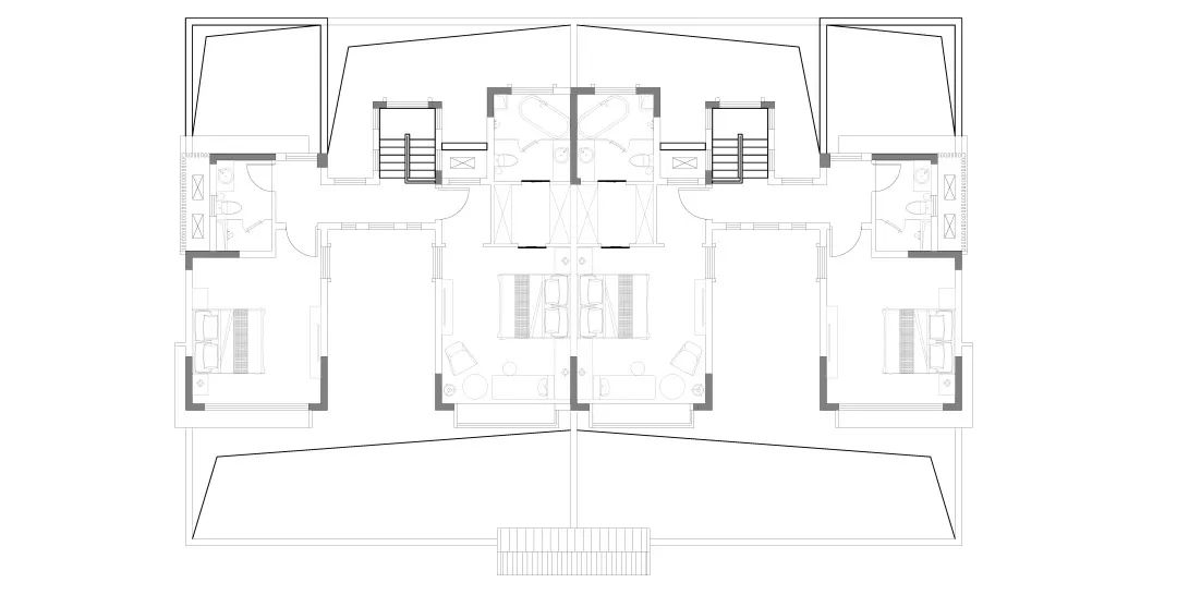
◎145㎡一层平面图
	

◎145㎡二层平面图
	

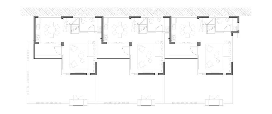
◎120㎡一层平面图
	

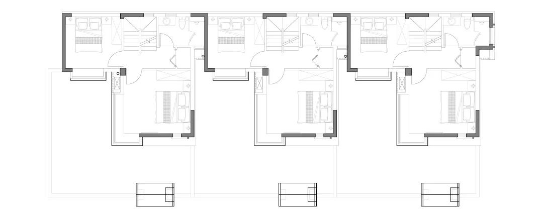
◎120㎡二层平面图
	

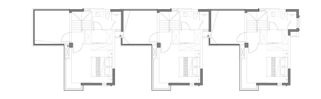
◎120㎡三层平面图
	

◎145㎡东立面图
	

◎145㎡西立面图
	

◎145㎡南立面图
	

◎145㎡北立面图
	

	

◎墙院示意图
	

◎120㎡南立面图
	

◎120㎡北立面图
	

◎120㎡西立面图
	

◎120㎡东立面图
	

◎立剖面图
	
	
	
工程档案
项目名称 | 大理苍山小院晨夕苑
项目位置 | 大理市下关镇214国道西侧
业主单位 | 大理实力集团
甲方团队 | 李智 尹琪 高松
建筑设计 | 上海日清建筑设计
设计总负责 | 宋照青 熊星
设计负责人 | 于卫东 吴一超 古韬
设计团队 | 王绍光 王康 余钟祥 廉馥宁 付帅斌 李晟 李少洪 江涛 杜赫 师德山 张宇 李一洪
施工图设计 | 云南泛亚工程设计院有限公司
景观设计 | 成都漫格景观
室内设计 | 深圳知白室内设计有限公司
建筑面积 | 10030㎡
景观面积 | 8400㎡
建筑摄影 | 张虔希
	





