
南京东原印长江
RIVERIA IMPRESSION
中国,南京
Nanjing, China
-酒店是生活的延伸-
“酒店的设计不仅是为使人宾至如归的极致体验,
更应该是生活本质的自然延伸。”
——TonychiStudio

◎城市酒店
深入目的地的肌肤之下,探本溯源,体验真实。
城市酒店,向来以文化和在地体验的卓越策划作为核心哲学,为思想潮流者们打造一次具有仪式感的入住体验,成为城市的灯塔。

◎城市酒店
借鉴于此,我们在本次住区设计中,更关注居住社交的本质,从而重新定义城市核心住区设计的思维模式,也由此有了更触及人心的空间力量。

◎鸟瞰图
场所精神
_
本项目地块位于南京河西最繁华的区域,燕山路集庆门大街,南京的十字中心。周边住宅配套成熟,地铁直达交通便捷,紧邻万达广场、金鹰、吾悦广场等大型综合体。

◎项目区位
我们带着对艺术与文化、空间与情感等相关联系的思考,艺术与美学碰撞,缔造尊崇归家艺境, 呈现出具有时代温度的场所精神,赋予居者生活仪式感。
设计挑战与解题策略
_
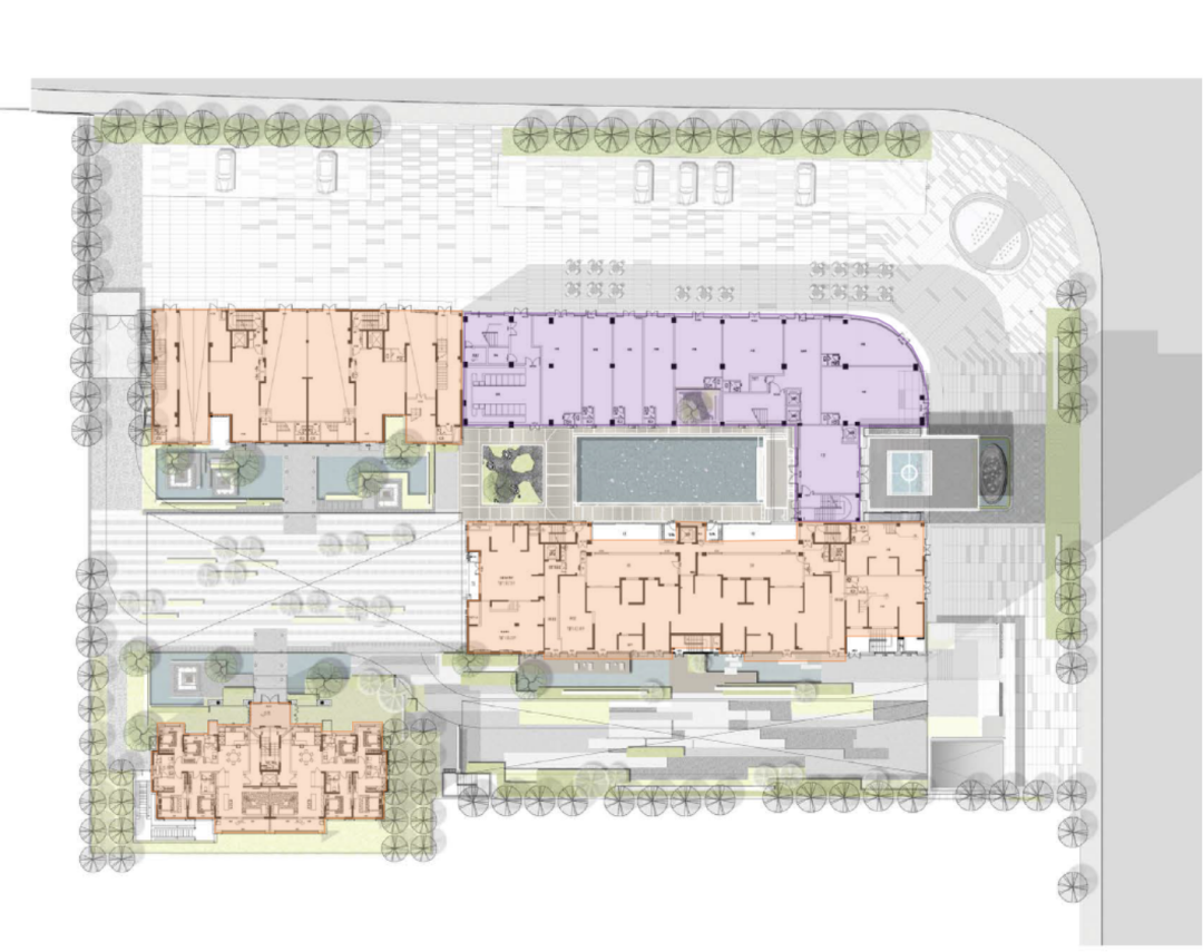
项目用地面积仅10008.8㎡,容积率高达5.0,加上地块北、西、东三侧都已被建成楼盘环绕,在总图规划中,除了考虑对北侧和西侧现有住宅楼的日照遮挡外,还要避开东西两侧住宅楼对本地快的日照遮挡,同时也要预留南侧待建设用地日照退距。在如此苛刻的条件下,总图基本上只能有唯一解。

◎项目现状
依据日照推算,最优化户型分布,总图上排布了三栋塔楼,北侧两栋分别为T4,T5两栋百米高层,西南角为T2,9层住宅。

◎总图分布
北侧两栋高层法线错开,让出东北角做出5层商业配套,包含服务于自身的酒店化泳池健身剧场等配套功能。最终,在这极小极严苛的用地条件下,实现了各功能空间合理排布,并做出了城市酒店的品质感。

◎鸟瞰夜景
设计理念——“酒店化”住宅
_
设计基于场地的感知与理解,总体设计风格采用隐奢的酒店化的设计风格,以新加坡度假风格整体呈现,给业主入住酒店般的仪式感和尊贵感,展现酒店式住区的美学气派。

◎方案效果图

◎街角实景

◎整体完成实景
归家空间组织方式
-酒店式入口-
入口7m超尺度门头,白色基底穿插雅致黑条纹,空间格局显得愈加纯粹与强烈。非常规的入口雨棚尺寸结合标志性的白色灯膜设计,时尚精致且呈现出如艺术品般的高级感。

◎酒店入户效果图

◎酒店入户实景
雨棚细节借鉴宝格丽酒店做法,通透亚克力吊顶,奢华铜制大门,配以精致的标识logo。整体展现出优雅,精致的酒店化入口氛围。

◎入口雨棚细节
景观叠水搭配入口叠级大台阶来打造仪式感,律动引人探索,兴趣促人迈足,简约大气,为业主带来酒店式归家体验。

◎入口景观叠水
-内院廊架归家-
风雨连廊精致的格栅、雅致的地面石材、富有质感的金属顶部,组成了一个充满仪式感、设计感的中庭空间。星光流转,熠熠生辉。

◎内院入口

◎内院入户实景
从酒店式入口到入户空间,延续仪式感的打造,使入户界面更加具有震撼力,制造与众不同的奢华精品感。

◎内院实景
水面、天光、景物、四时融为一体,晴雨从容。连廊中庭的光影表达中利用水面形成倒影空间,实体建筑与虚体屏风形成实需空间重叠程度不同,产生富有层次的空间效果。

◎内院风雨连廊

◎内院屏风
-中心景观庭院-
内院连廊出来后为中心景观庭院。另外两栋楼的入户也在此接续。

◎花园实景
搭配简约高级的小品雕塑,增强社群互动性,营造了舒适休闲的氛围,给邻里家人一个欢聚的能量场域。

◎花园实景
通过多种形式的植物配置,打造了高低错落。具有跌宕起伏韵味的植物景观,营造了高品质的休闲放松空间场景。


◎花园实景
从酒店式入口到入户空间,延续仪式感的打造,使入户界面更加具有震撼力,制造与众不同的奢华精品感。单元入户精致典雅,私属定制的细节标识,从最细微处体现匠人精神。

◎入户基座实景

◎入户门头实景
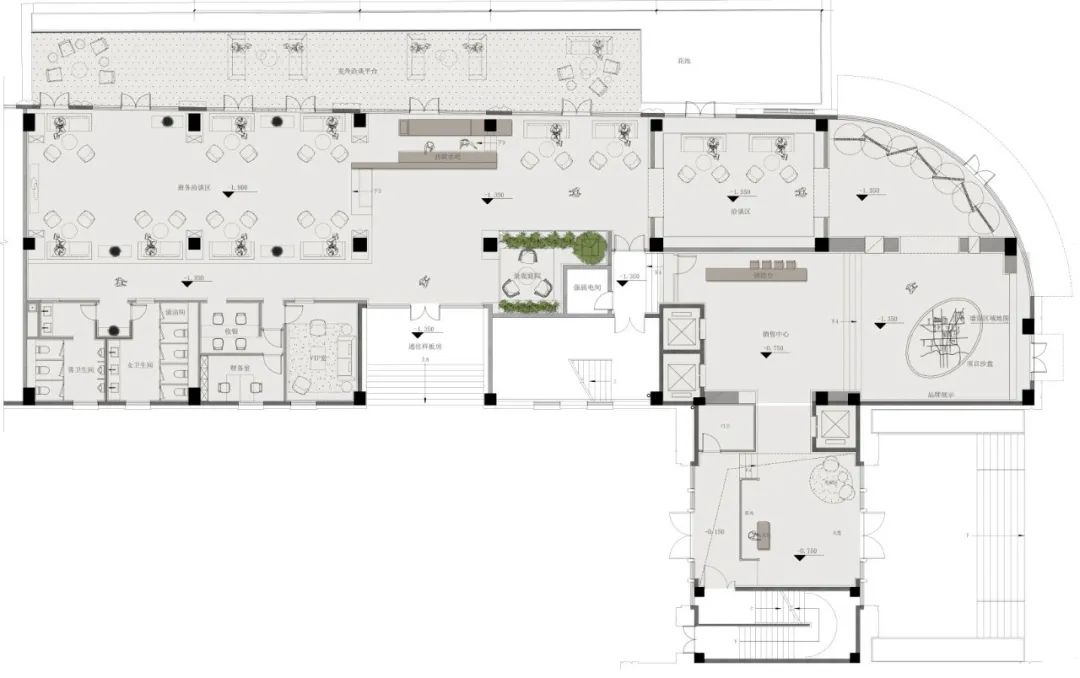
原·聚场——酒店式配套
_
除了对归家空间极致体现外,本案还有一个核心的亮点:社区原聚场。拥有国内首个社区社群实体空间,通过社群连接社区内人与人关系,构建社群实践载体,筑造有温度、有价值的社区生活,这就是原·聚场的意义。

◎配套实景

◎街角实景

◎立面细节
原·剧场空间主要场景以剧场、图书、咖啡为核心,打造共享知识交互空间,辅之以烘焙、阶梯教室、社交休息区、策展区等多个相互穿插又彼此独立的小空间,让社群理想变成可能。

◎弧形展厅

◎咖啡吧

◎小剧场

◎社交空间
技术图纸
_

◎总平面图

◎一层平面图

◎1#、2#楼立面图

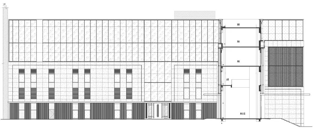
◎3#楼立面图

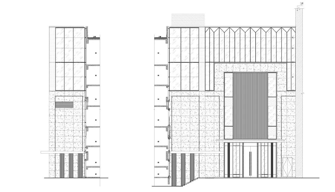
◎配套立面图

◎配套立面图

◎配套立面图
工程档案
项目名称 | 南京东原·印长江
项目位置 | 南京市建邺区燕山路98号
项目功能 | 综合住宅
业主单位 | 东原南京房地产开发有限公司
业主团队 | 李鑫 唐凯鹏 刘道明 罗冉 王斌 林金飞 黄树军 刘斌 朱祥宇
建筑设计 | 上海日清建筑设计有限公司
设计总负责 | 任治国
设计团队 | 陈军 崇嵩 朱刚良 孙长德 周飞 毛润明
施工图设计 | 南京建筑设计研究院
景观方案、施工图设计 | RDA景观设计事务所
室内设计 | 上海丹健环境艺术设计有限公司 上海董世建筑设计咨询有限公司
建筑面积 | 67100㎡
设计时间 | 2015年12月
竣工时间 | 2021年7月
建筑摄影 | 行知影像





