
南宁万科瑧湾悦
Nanning Vanke Elegant Mansion
中国,南宁
Nanning, China
近年来,从户型角度来说越来越多的高端大平层项目颠覆了人们以往对豪宅的定义,逐渐代替别墅成为豪宅市场的主流产品。从居住氛围来说人们心中的住所也不再是富丽堂皇的传统豪宅,而是更加渴望住所在享受现代便利的同时能够感受到传统的禅意,想要在忙碌的繁华都市中留存一个舒适静谧之地。





◎疏影横斜水清浅,暗香浮动月黄昏
项目根据万科瑧系高端改善型客群定位,及独一无二的用地条件,规划放弃了传统的高低配构图,采用纯大平层,户型设计为一梯一户的纯板式设计,是五象首个全板式的纯碎大平层项目。
大平层不同于其他住宅,细节满满:
• 位于城市核心地段
• 顶级配套坐享绝版资源
• 建筑立面“公建化”
• 景观资源“最大化”
......
南宁万科瑧湾悦,将中国传统空间秩序性与现代居住设计融合。诗意般的居住空间,让居者在悠久文化中体验现代全新豪宅。
地利人和成就城市豪宅标杆
_
项目位于南宁市,地处五象湖综合生态开发带。兼具区位优势,与五象三中仅一条水系之隔,在家打开窗户就能看见孩子们在课堂上求知的脸庞。交通便利,地块西南俩侧,河湾及绿地环绕,社区楼栋享受城市极致资源。为高端定制而来,延续瑧系品质,补位五象顶豪 ,世界纯粹如瑧。繁华中的静谧,静享城市生活。


◎周边实景图
房子只是载体
场景才是社区生命力
_
项目规划结构清晰,充分强化水系景观优势。让中心庭院拥有足够进深,让住宅与景观相互串联,住所嵌入景观,景观又融入住所,层层递进,传递深居的意涵,颇具国人含蓄之意味。

◎设计理念

◎鸟瞰效果示意图

◎社区景观庭院示意图
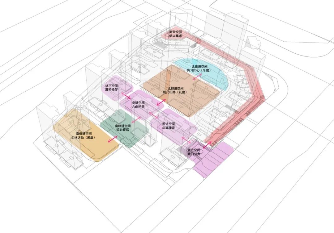
万科·瑧系在社区打造上,营造了入口尊享空间,印象花园空间,森林度假空间,冥想静思空间,景观动力空间等。同时,又细分为酒店式入口归家空间、水疗庭园、童享庭园、艺术庭园、富氧庭园、会客庭园,以及芳香花园、岩石花园、静谧花园、运动花园、康养花园。五大庭园五大主题花园空间,形成五进次归家仪式感。通过实现功能与景观的全方位融合,营造别具一格的人居体验。
中式礼序 东方意蕴
_
项目注重私定客户对景观的心理、精神、美感多重需求。通过角度及楼栋的错位变化最大化利用南侧及西侧的景观资源。利用空间变化和景观穿插形成了五进归家院落。

◎中轴分析图

◎形体分析图

◎分析图
壹
/ 去尘 /
_
初入瑧湾悦,气韵同文人雅士一般,谦逊温婉。瞬时抛开尘世的浮光掠影,由市井喧闹过渡到园居清雅。迎向回家之门,心之所往。



◎ 一进实景图
贰
/ 见山 /
_
穿过步道,空间被戏剧性的放大,第一进的半围合式庭院结合现代酒店式落客区,疏朗开阔。落脚前庭,雅致的入口观感强烈,引人踱步前行。前方,别有天地。



◎二进实景图
叁
/ 游园 /
_
穿过大堂,绕柱环廊,售楼处的形象映入眼帘。一池、一石、一树,一廊,勾勒出独特的水墨意境。一汀、一阑、一柱、一亭,创造出隔而未隔,界而未界的图景。



◎三进实景图
肆
/ 登堂 /
_
东方建筑的核心精神,屋顶下的灰空间,一处可与自然与时空对话的心灵栖所。沿水系景观汀步至售楼处,片墙与框洞酿造出建筑与自然的均衡之境,空灵悠远。方寸之间,仿佛化身文人墨客,在此吟诗作对,雅意盎然。



◎四进实景图
伍
/ 入画 /
_
售楼处通过垂直交通将人流引入会所,空间豁然开朗、别有洞天。地下会所围绕中心的下沉庭院展开,随着步入者视线的流转,洽谈区、艺术长廊、泳池等不同的画面在眼前铺开。这种手法漫溯探索,即是“犹抱琵琶半遮面”的含蓄,也是“悠然见南山”的欣喜。

◎分析图
创新产品 重新定义空间“关系场”
_
人们对于户型的需求,不仅在于房子的大小,而更在于户型带来的生活方式。房子的基本价值是功能上的满足,高级价值是居住者的愉悦感和优越感。设计从“引景入户”,全新的LDKG公区设计、搭建情景化生活场景、全面屏朝向景观、私密性等方面探索舒适的人居居住体验。
户型分为两种类型。针对255㎡的户型,提出一个空间“关系场”概念,创造居住的一种高级“愉悦感”—在核心地段享受珍贵的资源、独特的景观、舒适的空间。把“引景入户”的设计手法做得淋漓尽致。户型整体不仅仅是空间的奢侈,更关注自然精神需求。公建化立面设计,让外界的景观、阳光与室内交互;超高的窗墙比,换来了更宽的瞰景视野;超大边厅,L型270度视野,大面落地玻璃窗,加强吸景入户。

◎255㎡户型平面图


◎255㎡户型起居空间实景图
在这个户型中,采用公区LDKG一体化设计,观景阳台-客厅-餐厅-岛台-中西厨,共处一个开放空间,通透性、可视性、互动性更强,构成家庭的核心区域。
宽阔的客厅起居空间,满屋都是宽银屏,超宽客厅可以是家庭影院,除了自己的娱乐空间闲暇时间也可以邀请朋友过来聚会开party,享受社交快乐。中西双厨,让整个空间真正的融合。一体化设计的厨房可开合,还可以做西厨中岛,让厨房更能融入进客餐厅。封闭式阳台,有野心的宽阔阳台。提供全面屏观景体验,做到了“全面屏”观景理念,结合外立面近乎满窗设计,增加了室内的通透性与感光性。

◎255㎡户型局部放大图
双套房豪华主卧,奢华享受。项目的卧室区与公区做到了明确的的动静分离,卧室的私密性不受公区影响,保障卧室区的隐私,采用双套卧设计,让家庭成员各自有天地。主卧,总统式的豪华套房,由休息区+独立衣帽间+分离式五件套主卫组成,在奢阔的同时保留居住者的隐私。
设计实现两方面的创新:景观资源室内更大化、家庭社交关系处理的更舒适。

◎255㎡户型局部放大图
针对210㎡的户型,配备豪宅主卧标配超大落地窗 ,全系明亮空间,私梯入户。

◎210㎡户型平面图



◎210㎡户型起居空间实景图
双套房设计,主卧将步入式衣帽间,豪华独立卫浴,储藏空间等豪宅标配均纳入其中,与此同时,主卧与玄关的使用非常灵活,丰富的房间结构有更强的居住独立性及舒适感,让居住体验更升级。

◎210㎡户型局部放大图
私梯入户,独立入户电梯厅,与同层另一户没有动线交集,形成“一梯一户”的归家效果,乘梯成为一种尊贵享受,提升了入户的私密性和舒适度。主卧奢享玄关,处于私密与公开的边界,它有“收纳”、“缓冲视线”“入门印象”等功能。
一个超大的玄关尺度,设有独立行李间和玄关柜。满足舒适度的同时,具备足够的收纳量,这才是豪宅应有的配置。入口与厅之间视野过渡更为精妙,穿过玄关,餐厅前的整幅大窗,如同一面超高清宽幕,即时播放无边景观,实现了真正的“对景玄关”。

◎210㎡户型局部放大图
立面公建化
_
立面采用现代风格,强调简洁清晰的体块关系,去除繁复的材料和线条堆砌,使用大面积玻璃,淡化建筑与自然的界限,营造与自然融合,轻松悠闲的生活氛围。整体构图在传统三段式基础上,重视比例、色彩、细部的处理。结合户型的优化设计,大面的落地窗户及玻璃阳台结合简洁的横向线条构图,尽显现代豪宅品质,为城市礼献一个静谧雅致的生活港湾。


◎高层住宅立面效果图

◎沿那黄大道东侧效果图

◎鸟瞰效果示意图
结语
_
本案旨在以传统礼制观念的营造出一种秩序化空间,实现现代居住环境从物质世界和精神世界的结合,使人们可以从外到内完成从理性到情感的升华。传统的延续并非建筑的复刻,而是重新构造集体记忆,唤起每个人对于城市文脉和地缘文化的沉思,找到心中清简之道,心之居所,实现情感共鸣。
工程档案
项目名称 | 南宁万科瑧湾悦
项目地点 | 广西南宁五象新区那黄大道与良玉大道交叉口
业主单位 | 广西万科企业管理有限公司
南宁万科 | 李华 毛羽洁 朱朋武 屈明娇 陈宇靖 田孟迪 谢建标
万科南方区域 | 刘多伦 余旸 刘倩云 陈芝丹 曾健聪 吴佳伟 韦占洋
建筑设计 | 上海日清建筑设计有限公司
项目总负责 | 宋照青 赵晶鑫
项目负责人 | 陈良鹏
大区设计团队 | 周伟 袁小川 佟冬 邓云琴 王文慈 陈琪 任俊涛 杨国栋 程建雄
示范区设计团队 | 汪丽霞 陈琪 关林欢
施工图设计单位 | 洲宇华洲
景观设计 | 上海朗道景观规划设计有限公司
硬装设计 | 上海集艾 上海牧笛
软装设计 | CCD 上海牧笛
建筑摄影 | 行知影像 三棱镜景观摄影
建筑面积 | 168000㎡
建成时间 | 2021年12月





