
乾务糖厂博物馆
Qianwu Sugar Factory Museum
中国,珠海
Zhuhai, China
前言
_
城市更新中,对工业遗存的场所精神保护和营造本质上是对场所自身特性的肯定,赋予工业遗存场所精神即赋予了场所活的灵魂,是工业遗存改造的关键之处。一个地方的特征是由发生在那里的时间所赋予的,建筑和城市要紧的不只是其外表形状、物理几何形状、而是发生在那里的事件。是时间的对话,记忆的场所,找回群体的认同感与归属感。

◎博物馆鸟瞰
设计环境—工业记忆
_


◎乾务糖厂原貌
珠海市斗门区乾务镇中心偏西的近郊,北靠大岭鬓,南侧紧临乾糖湖。上世纪五十年代,珠海生产生活条件很差, 土地盐碱度太高,无法种植庄稼,建设者通过种植甘蔗,征服了盐碱地,1981年,建造成立了糖厂,至2014年,乾务糖厂停榨。近半世纪以来,制糖工业一度是乾务的支柱产业,是乾务人心中最鲜明的工业文化记忆。


◎场地区位环境
如今, 旧的糖厂建筑已经全部拆除,保留除尘塔及一座卸货桁架作为历史建筑修缮保留。


◎保留的除尘塔及桁架
一个工业时代记忆与文明的体现,居民对工业文化精神遗存的情感,不只是建筑,而是留存于这个地方的工业气质。
设计初动力—工业对话
_

◎糖厂历史要素
场所精神主要表现在“方向感”和“认同感”,即场所的环境特征能让人知道自己身处何处场所,并明确自己与场所之间有何关系。乾务人的心里,重要的不是保留老的厂房建筑,而是在于糖厂共同奋斗的工业历史记忆,制糖的工业流程,于这片土地上辛勤创造留下的文化氛围。

◎建筑与运输桁架的对望
建筑设计成挺拔的体量,给与观者直接的震撼体验,想通过创造一种乾务居民现代生活与工业生活时空的对话感,以历史叠合为前提,保留并传递这份工业记忆的原始感情,创造认同感、归属感。

◎博物馆入口映像
形态—新旧与虚实的对照
_
设计师认为,不需要过多的建筑语言去还原原来糖厂工业建筑的旧貌,而是大开大合,只取用朦胧的形式。两侧的实体,代表的是糖厂历史,内部作为开放性的展厅,展出糖厂保留的珍贵工业机器等。中部通高的玻璃体量,寓意现代乾务人的文化生活,多个观景露台的打造,形成城市生活和工业历史对话的“窗口”,和旧的糖厂工业建筑形态形成精神上的对照。

◎体块生成

◎虚实的对比与窗口的打造

◎虚体的框景

◎工业遗产的映射
体验—以旧事业为轴,直接体验与记忆体验
_

◎博物馆的体验概念图

◎博物馆与场地的关系
博物馆建筑作为内敛的空间,具象为静谧的时间点,湖、桁架(工业遗产)、公园(公共活动场所),塔(工业遗产),在场地上形成直接体验与记忆体验的轴线。

◎糖厂旧貌

◎博物馆与场地关系

◎博物馆与场地的关系
新建建筑与本就属于这里的物件组合,使得场所精神“具象化”,能够更好的体现人们的生活气息,进而内化并传递出糖厂工业记忆的文化感情,设计师想通过体验上的共情来实现工业功能向城市功能的转变。
艺术的交互 — 精神场所
_

◎精神场所概念
营造一个自由舒适的放松空间,与除尘塔的对话,形成某种对照,通过柔和的光线使得参观者在进入时获得空间上的安全感。

◎塔内部精神空间


◎塔外部 & 塔施工过程
在这个空间里,不做功能性的要求,设计师希望人们在走进这个博物馆的时候,不仅仅是为了看博物馆所展出的东西,而是将这个塔作为将艺术品抹去的存在,抛去物质载体,本身就是艺术,旨在进入这个空间里,就与那个时代的工业场景在发生交互。

◎塔内部
艺术的交互 — 形式转译
_
在通高中庭的设计上,拟在通过光影的叙述,抽取的是旧糖厂内部场景的工业感形式和空间形态,阵列的通高柱体,使参观者沉浸在某种状态里,与其产生氛围上的交互而不是做一个密闭的空间来放置展品。宏观上来说,有种“你站在桥上看风景;但远处看风景的人认为你也是风景的一部分“的意味。



◎概念与糖厂内部原貌 & 博物馆中庭施工过程
艺术楼梯的形态设计,是对设计师对工业致敬的实质载体,螺旋向上,聚基为一股多角度冲击感官的力量,行走其上,博物馆内部媒介和外部景观媒介相互交融,强化直觉感知以及博物馆的象征意义。


◎中庭内部的光影叙述


◎艺术楼梯对照

◎艺术楼梯

◎艺术楼梯


城市更新的意义在于对客观存在实体的保护与改造和对各种生态、空间、文化、视觉、等环境的改造和延续,而不是老建筑的复刻。乾务糖厂博物馆的落成,其在作为乾务人制糖工业记忆意识载体具象化的同时,也是近半个世纪来空间形态和人文理念的变迁。

◎室内


◎展陈
博物馆作为陈列和展示历史物品及痕迹的建筑物,我们不希望他只作为一个展示旧物的“展台“,而希望他本身就能够具有延续历史记忆和遗产生命的功能。
技术图纸
_

◎总平面图

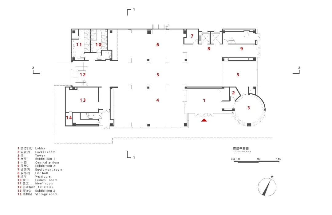
◎首层平面图

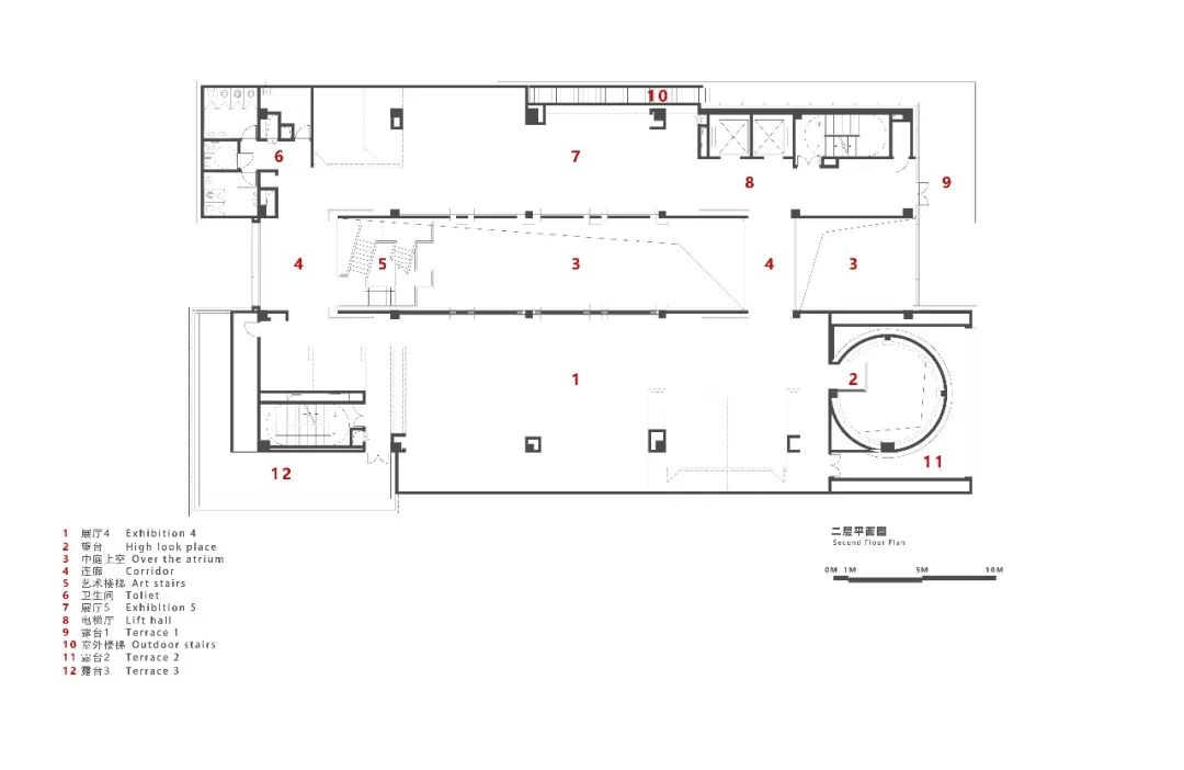
◎二层平面图

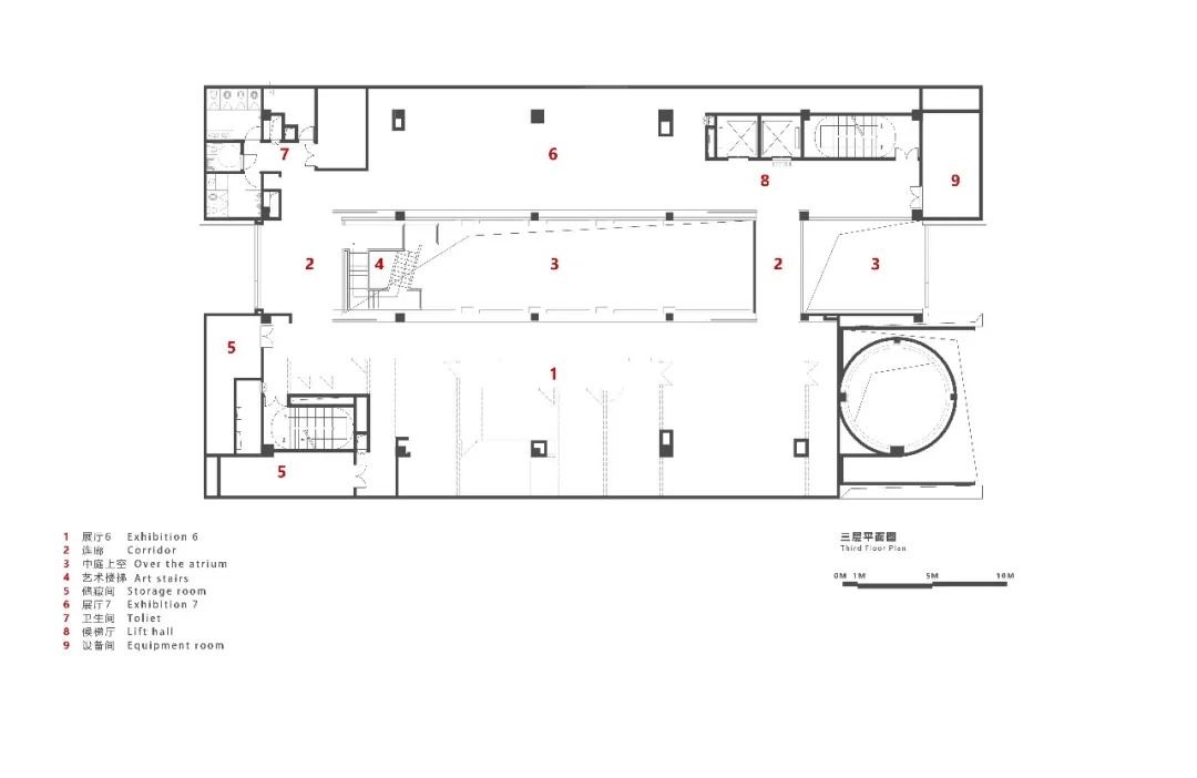
◎三层平面图


◎立面图

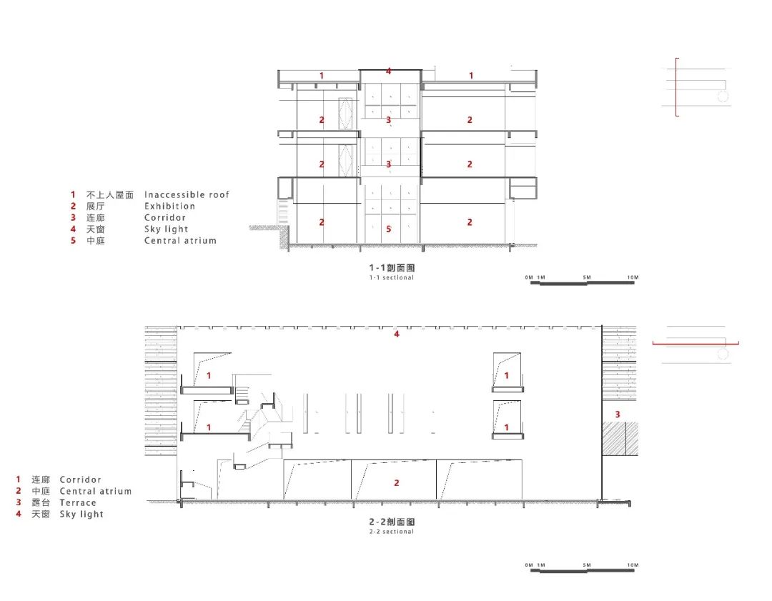
◎剖面图

◎企口安装节点图
企口安装节点:
材料拼缝宽度控制在1-1.5mm,解决传统石材留缝打胶的观感。面板与背面的拼缝形成自然错位,提高防水效果。
工程档案
项目名称 | 乾务糖厂文化博物馆
项目位置 | 广东珠海
业主单位 | 星河地产
设计单位 | 上海日清建筑设计有限公司
项目总负责 | 熊星 林琼华
设计团队 | 章志武 李观如 周昊 邢宇 程敏 蔡子宸
业主团队 | 邓立 陈丽莹
主要材料 | 水泥板、玻璃、仿锈铝板、仿混凝土涂料
建筑面积 | 3404.71㎡
设计时间 | 2021年3月
竣工时间 | 2022年4月
室内设计 | 广州共生形态工程设计有限公司
景观顾问 | 广州林德景观规划设计工程有限公司
施工图设计 | 广东省建筑设计研究院有限公司
摄影 | 九里建筑摄影





