
——引言
通过一个实在而轻巧之物悬于景观之上,在几处庭院之间限定出一个无边的空间。项目几经推敲之后,最终实现的成果可概括为一亭、一桥、三院及一池浅水,引申下去则有更多重的探索在其中。

现代建筑营造与园林意向的“时” “空”对话
——简介 INTRODUCTION
苏州吴江旭辉社区中心位于苏州市吴江区南部,距离吴江区中心10公里,是一片新兴的生态城市片区。设计力图为周边居住组团注入活力,活跃人群并凝聚社区精神。建筑沿鲈乡南路这一城市主干道布置,绿色生态廊道置于其中,让城市绿地资源接入地块,扩展了绿地边界,并激活了这一优越的城市资源。
◎ 总平面
屋与园的意向重组
——空间秩序 SPACE ORDER
由建筑空间围合而成的庭院是千百年来中国传统建筑的重要空间构成,培养传承了一代又一代中国人的居住习惯和审美情趣。本次设计中也尝试进一步深入挖掘隐匿在建筑形式背后的人文精神的同时让建筑使用符合时代的需求。
◎ 一亭、一桥及一池浅水
每一个苏州的园林都是一个微观的世界,在这些园林中,“建筑”本身并未占太多的比重。我们并不能理解为建筑在园林中不重要,而是园林之美本就在于建筑与景观的渗透与重组,建筑即景观,景观也是建筑设计的重要组成部分。
◎ 书院主立面透视
旭辉书院作为这一住区未来的主要入口,是居民的视线聚焦之处,起到衔接城市空间,统领片区风貌精髓的整合作用。设计中用“像素化”的手法将中式大屋顶抽象为了一片连绵舒展的挑檐与三个起伏的体块,每个体块在功能与尺度上都有所不同,或为天窗、或为办公所用的二层阁楼。
这样一来满足了形态上的多样性,契合和园林中亭台楼阁的交相呼应之景,同时也满足了对屋檐之下不同空间使用方式的暗示。屋檐之下,四面通透,毫无遮蔽的将四周景观纳入建筑内部,体现了中正对称和现代极简的审美统一。

◎ 书院主入口
多层次庭院的叠合
——空间与流线 SPACE & FLOWLINE
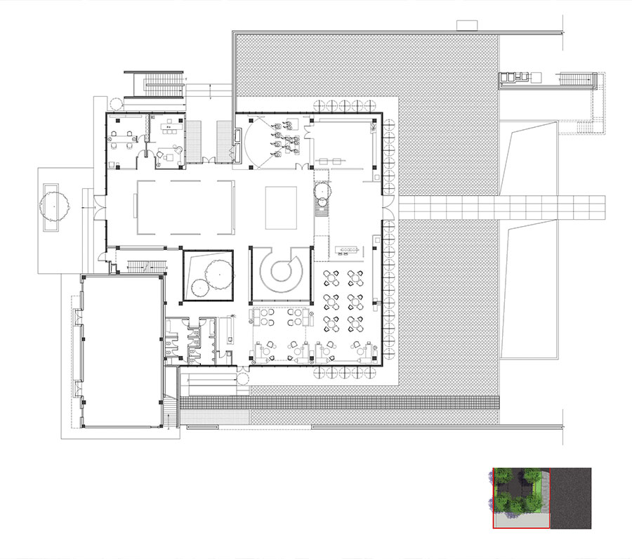
在现代的建筑设计中,有这样一个趋势,随着城市变迁的节奏普遍加快,怎样让寿命几十年甚至数百年的建筑在敏感市场的调控下以不变的姿态迎接千变万化种使用功能的要求?这一问题即便是在设计之初就已经显现了。在一个较短的时间内,这一建筑将经历展示与销售、社区服务以及健身会所等多重功能需求,单是几个阶段的功能平面研究,在设计初期就研究了数十稿之多。

◎ 首层平面图

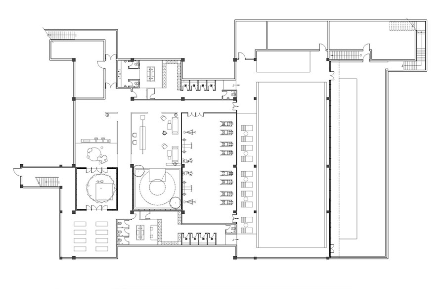
◎ 地下一层平面图
◎ 剖面一

◎ 剖面二
我们的策略是在看似平整统一的立面之后,通过塑造一个有流动性的平面空间,点缀以不同尺度的庭院,打造不同的空间围合,承载个人休憩和公共活动功能,体验亲切包容的人文关怀态度。
这一做法与当代多位建筑家的实践作品有共通之处。例如屈米在拉维莱特公园中以点阵坐标的形式在无序空间中植入参照点,为各个空间赋予独特性格;再例如石上纯也的神奈川科技学院活动中心,在消隐的立面后,数百颗细柱疏密有致的排列在流动的平面上,组合出各式不同的院落空间、不同程度的独立而又彼此联系。
这类手法起到了让空间之间进一步弱化封闭感,加强了功能流动与序列引导作用,将前庭、中院、后堂等传统空间错落于其中。

◎ 书院内景
◎ 书院北院

◎ 院中院

◎ 旋转楼梯
此营造方式让室内的空间序列依旧呈现院落般的递进与起承转合。同时也让景观傍水造园,相互映衬,力求内外空间互通互融。这样让室内外层层院落的叠合与联通藏风聚气,亭台楼阁、水榭连桥等各个元素一起,在城市主界面上反映出了公共空间到私密空间的完整转换。

◎ 书院入口空间
设计手法营造多维度的空间渗透
——建筑景观一体化 ARCHITECTURAL LANDSCAPE INTEGRATION
很长一段时间,建筑和景观都是作为相对独立的,甚至是互相割裂的二个元素存在着,使用不同的语言逻辑,表达各自的哲学。旭辉吴江项目,日清力求在同一场所中取得建筑与景观的平衡和相互渗透。

◎ 前院入口提示

◎ 前院照壁


◎ 建筑与景观交织共生
建筑与景观需要在设计意图上达成统一。密斯凡德罗的观点,建筑最佳的处理方法就是尽量以平淡如水的叙事口吻直接切入到建筑的本质,形成既分割又连通,既简单又复杂的空间序列;室内室外也互相穿插贯通,没有截然分界,呈现奇妙的建筑景观“无界”状态。项目中,透过似有若无的建筑玻璃幕墙,我们可以看到“越丘陵、过双桥、渡山水”后,悠然“抚琴、闻香、品茶”等层层递进的景致关系。不仅仅是自然景物自远至近、大观尽而现小雅的变化。

◎ 前院主景观

◎ 书院南院景观



◎ 泳池及下沉庭院
建筑中的景观与景观中的建筑。用植物造景的风景意向拓展建筑内部的景观空间。中庭,自负一层而起且无顶部遮盖,光线便很好地穿透下来,通过玻璃幕墙把禅意的植物景致反射,再反射,像汇聚于钻石之上的光晕般将景观往建筑的四面八方层层叠叠扩展开来。地下室内泳池,玻璃幕墙之外的下沉庭院中,三面垂直绿墙,通过不同色彩、叶型的植株布局出山水浮云的自然形态,令使用者感受到被景观包裹的建筑场所私密与安全。

◎ 庭院、水景与建筑层层呼应
精致构造设计营造现代中式意境
——手法与材料 TECHNIQUE & MATERIAL
营造中式建筑不应是简单的符号模仿,现代建筑也不仅仅是玻璃幕墙与金属面板的堆砌,而是要突出建筑深层次的文化内涵和历史底蕴,体现对传统符号所指代的精神的传承,对传统空间发展变化的诠释。

◎ 书院立面局部
建筑师Colin Rowe与Robert Slutzky在其共同的著作“透明性”一书中表达了对格罗皮乌斯的建筑手法的不满,认为在包豪斯学校建筑上大量运用的玻璃幕墙是毫无意义的,因为透过幕墙只能看到玻璃后复杂的金属铰链和建筑结构。他们的理论认为格罗皮乌斯的手法只是表达了玻璃材料的“材料性”透明属性,并没有强调玻璃作为墙面的“现象性”属性。
玻璃幕墙可以为建筑提供一种水平与纵向的延伸感,也可以为观者的提供视觉上的一种感觉,即几层空间与事物的活动透过玻璃相互渗透却不彼此破坏。本项目的立面与平面设计为实践这一建筑手法提供了可能性,为玻璃墙面提供一种张力,达到透明性的“现象”属性。

◎ 可开闭屏风
◎ 屏风纹样大样(局部)
为了完整实现这一初衷,玻璃幕墙本身的设计需要尽可能的干净与轻巧,尽可能的删除不必要的结构,让玻璃幕墙完全消隐于室内与室外空间之间。因此采用了橱窗式玻璃肋玻璃幕墙形式,并在转角处通过上下入槽的构造方式达到了转角无柱的空间效果,进一步消隐了结构感。为了加强室内外渗透的效果,悬挑的铝板屋檐下设置了与玻璃面垂直阵列的凹形灯槽,利用反光原理营造了屋顶的内外联通的效果。
除此之外,还在玻璃幕墙外设置了建筑的第二层表皮,即一系列可旋转开闭的屏风。这一设置在不仅在视觉上增强了建筑立面的进深感,也进一步削弱了玻璃分缝带来的视觉阻碍。不仅在这面向东面的主立面上,由早晨的阳光透过它投出丰富多样的光影,也在建筑节能与文化属性上提升了建筑品质。
同时,极简的建筑语汇离不开细致的节点控制。建筑涵盖了一系列复杂的节点设计让建筑在复杂的气候条件下轻松应对。由于建筑有四米的挑檐,为了保证挑檐端部的纤细尺寸,在设计之初就有屋面自由排水的想法,但是很快就被否定了。为了保证有组织排水向内找坡,挑檐被的结构被设计为两段,由混凝土柱伸出的第一段为混凝土挑板,兼顾天沟的作用,再由挑板伸出钢结构挑梁,最终实现了有组织排水的同时达到了最初的造型设计要求。类似的细节处理还有很多,他们一起让建筑可以再风雨中同样保持着宁静与沉稳。
结束语
——CONCLUSIO

最终形成的建筑立面不仅是一个建筑形态的表达,更是建筑与景观园林的一体化表达。在这其中刚劲简练的建筑本体、抽象精简的中式屏风、室外景物小品、室内光影、以及参与室内外活动的访客,共同在建筑立面之间构成了一副被压缩的浅景深画作。这景致是吴江旭辉社区书院所有从设计到落成参与的各专业同仁的智慧结晶,他也将记载苏州人现代生活与园林情节的时空对话,成为吴江人生活的缩影。








