河岸的生活与艺术
“运河的苏州,苏州的运河 ”
_
苏州是一座建在运河上的城市。运河三横四直的水道通往千家万户,同与这些水道并行的陆路系统一起,构架了河街相邻、水陆并行的双棋盘格局[1]。京杭大运河在澹台湖分为东南两路,向东一路擦过独墅湖,再向南转入镬底潭。

区位图
本案就坐落在运河独墅湖-镬底潭段上游东岸靠近独墅湖出水口的位置。沅有芷兮澧有兰, 河畔深出募禅园[2]。用艺术的方式表达生活是项目既定的任务,而凑巧,建筑本身就是生活的艺术。

©是然建筑摄影 Schran Images
水得石,石得水
“石梁横卧画图中,澄碧琉璃映彩虹 ”
_
初到用地时,沿河迤逦,一路拂石栏看水色,不免想做石与水的文章。寻觅慢慢,读到苏州石湖有名桥者行春,有诗赞:“石梁横卧画图中,澄碧琉璃映彩虹;最是中秋明月夜,玉钱片片落环洞。”
大概是说八月十八这一天,月光初起,入桥洞中,其影如串,游石湖登行春桥者,倾城而出,游船如织,歌舞音乐之声通宵达旦……[3]

©是然建筑摄影 Schran Images
来不及理会原文的巧思,“石梁横卧”“澄碧琉璃”两只短语已将艺术馆未来的样子描绘了大半。不否认这样的象征性看起来有些取巧,需要找到一种方法,把这种轻巧炼得精纯。

©是然建筑摄影 Schran Images

©初子圆
立体构成
“长方体与长方形”
_

©是然建筑摄影 Schran Images
本案中建筑的生成就像细胞的分裂与分化。一个长方形,分裂成上下平行的两张:下面的继续分裂成四片叠在一起,上面的膨胀成为长方体,再分裂成三瓣儿堆放;四叠儿变成水面,又伸出了路;三瓣儿成为质色各异的盒子,并留下了门窗。逻辑是设计的灵魂,简洁但不一定简单。

体块生成
场所整体的呈现基于一面倒映着环境的水面,就像苏州这座城,似乎所有动人故事发生的场景都离不开各种各样的水面。我们让水面褶皱起来,但不剧烈,预示着某种气场的存在。

©是然建筑摄影 Schran Images
建筑大体由三个体量堆叠而成:浅灰色的首层体量扁平舒展,浅卧在水中,吐纳三个方向的人流;银白色的体量漂浮于首层之上,透明的经折朝向运河徐徐打开,展示山水也拥抱山水;灰黑色的体量继续上升,但不会离开,作为前两者的背景,展现着器度与分量。



©是然建筑摄影 Schran Images
诗里的空间,空间里的诗
“你在桥上看风景,看风景的人在楼上看你 ”
_

©是然建筑摄影 Schran Images

©初子圆
你站在桥上看风景,
看风景的人在楼上看你。
明月装饰了你的窗子,
你装饰了别人的梦。[4]
在卞之琳的《断章》里,人与时空三者之间的相对性被象征性地启示。这种相对性不仅是浪漫的,也是现实的,存在于我们所有人生活中的现实。 建筑的意义便不会留于表面,得到艺术性的升华。

空间分析


©是然建筑摄影 Schran Images
建筑的功能性不是唯一的目的,建筑是环境之间的“桥”与“窗子”,帮助使用者发现“月亮”,找到“梦”。



©是然建筑摄影 Schran Images
在各个面向上,建筑为观察者提供不同可能的瞬间,不论这种瞬间是不是建筑的本意,却往往能丰富本意。或许可以不再急于直抒胸臆,通过碎片的积累,逐渐建立越来越清晰的印象。


材质分析图

结构分析图
结语
“地震与湖底的潭”
_

©是然建筑摄影 Schran Images
后来知道独墅湖的成因是宋朝时期的一次大地震。也是后来才知道,镬底潭,用传统的苏州话说来就像“湖底潭”,一片隐藏在湖泊下的潭。在地壳震荡与介质分层之间,湖天之下横卧清潭的三道石梁倒成了一种偶合。
参考文献:
[1]俞绳方. 杰出的双棋盘城市格局——“苏州古城风貌”研究之一[J]. 江苏城市规划, 2006(4):13-17.
[2] 佚名. 楚辞·九歌[M]. 2013.
[3] (清)顾禄撰.清嘉录[M].江苏古籍出版社,1999:250.
[4] 曾一果, 曾一桃. 爱情永恒 风景长存——卞之琳《断章》创作原意解读[J]. 名作欣赏, 2001(3):18-22.
技术图纸
_

总平面图

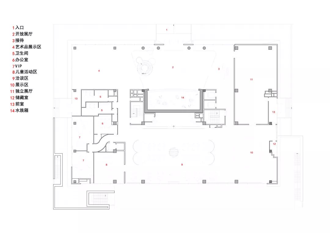
一层平面图

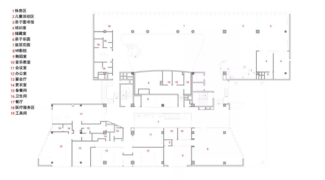
二层平面图

地下一层平面图

北立面图

西立面图

东立面图

剖面图

墙身节点





