
石家庄万科翡翠书院
Vanke Emerald Academy
中国,石家庄
Shijiazhuang, China
海德格尔诗中描述的诗意生活,道出的是每个人心中对于生活的向往,与自然为舞、与花鸟相伴,去簇拥生活,感知生活的点滴——这就是我们向往的生活。
曲目
“ TARCK ”
_
项目突破传统的建筑设计方式,整体以营造生活方式,使人找回遗失已久的归属感和亲切感为设计主题,围绕“从文化荒漠到高知社区,学院派美学生活的营造”展开设计。建筑融合了古典美学以及现代化风格,营造了多元文化和高知的氛围。芝加哥红砖建筑辅以现代建筑风格和美式学院派风格,整体给人以高尚端庄,温文尔雅之感。

◎以人为本、重塑文脉、美学生活©是然建筑摄影 Schran Images

◎项目规划©由甲方提供
序幕
“ 沿街入口 ”
_

◎最美遇见©是然建筑摄影 Schran Images
沿街界面延续高营大街的“遇见”街角风格,大体量的精神堡垒,增强了昭示性。

◎体块分析图
入口震撼呈现7米之宽的旋涡水景,层层下跌的水景集声、光、视觉享受于一体,拥有强烈仪式感的入门体验,并以绿化界面、围挡形象、增设道旗及岗哨等手段靓化沿街界面。


◎沿街形象©是然建筑摄影 Schran Images

◎视觉享受©由甲方提供
主音
“ 示范区 ”
_
示范区建筑立面以米黄色石材、红色面砖、深灰色金属铝板、玻璃为主要建筑材料,呈现出古而新的学院风格,其将怀古的浪漫情怀与现代人对生活的需求相结合,兼容华贵典雅与时尚现代。


◎示范区——华贵典雅与时尚现代©是然建筑摄影 Schran Images
由入口接待引导区进入荣誉长廊,挺拔的室内高度,带有古典气质与细节的顶棚,呈现出了示范区整体古典庄重的氛围,而矗立视觉中心的是在西方历史中隐喻知识与智慧的雕塑艺术品。

©是然建筑摄影 Schran Images

◎荣誉长廊©由甲方提供

◎门廊层层迭迭©由甲方提供
美式家居作风的元素也正好逢迎了时下的文化资产者对于糊口方式的需求,即:有文化感、有贵气感,还不能缺少自在感与情调感。

◎美式家居©由甲方提供
随后步入艺术长廊,半弧形的拱廊采用了贴近自然的实木,层层迭至,延展开来。书架上摆放着各种类型的图书,坐在淡黄色的暖光之下,窗外点点绿意透过大面积的玻璃窗映射出来,优雅文艺的氛围油然而生。

©是然建筑摄影 Schran Images

◎艺术长廊©由甲方提供
重音
“ 围合庭院 ”
_
内庭三面空间的围合,形成了中心半私密半开放的空间,中心空间的下沉增加了整个内庭空间的流动性。



◎交流互动空间©是然建筑摄影 Schran Images
北边的餐吧区和南边的景观空间互通有无,闲暇时的一杯咖啡,或站、或坐、或漫步、或交谈,入目的都是精致的花镜、融入科技感的装置和动态的雕塑艺术,整个空间达到了人与自然和谐互动的效果。

◎功能分析
间奏
“ 沟通之门 ”
_
项目的东侧是通向翡翠书院样板房的大门,立面以红色面砖和米黄色石材为主,显得大气端庄,半圆形的拱和矩形的入口,打破了传统立面的单一和呆板,突出了建筑的层次感和空间感。傍晚时分,配上淡黄色的壁灯,整个空间显得温暖典雅、豪气内敛。


◎沟通之门

◎空间感的呈现©是然建筑摄影 Schran Images
和弦
“ 常春藤公园 ”
_
穿过东侧的大门,展露在眼前的是一片绿色。美式庭院设计中喜欢把自然的元素拿来使用,让整个空间亲近自然,融入其中身心是轻快活跃的。美式庭院风格在随性中又追求规律之美,让所有元素配合整齐,达到视觉上的韵律之美,无形中营造她的自然美。

◎自然之美©由甲方提供
常春藤公园以其轻松自然的景观环境与西面建筑的浓烈形成对比,开放的草坪上放置着的小舞台有着夸张而饱满的艺术造型,柔中带刚,曲线的形式给人以欢快的气息,给人们提供了良好的交流互动的平台。


◎柔中带刚©由甲方提供
尾声
“ 风雨连廊&商业 ”
_
项目南侧独立商业提前落地V-food/learn/sport,前置向客户呈现丰盛配套。商业和东侧的大门通过一条风雨连廊相连,连廊融汇古今建筑经典人本精髓,人们在这里,或遮风挡雨闲庭信步,或谈笑风生联通邻里情感,这是翡翠书院洞察美学人居奢适本质后的细节彰显。

◎风雨连廊©由甲方提供
一道风雨连廊,是自然与生活的连接线。通过情境廊架的铺设,将室外风光有效延展,置身廊架之下,休闲座椅之上,仿若沉浸在生态自然之中,花木在侧,鸟鸣啾啾,清新怡然。

◎配套商业©是然建筑摄影 Schran Images
结语
“ CONCLUSION ”
_
翡翠书院融合美式学院派和现代建筑风格,注重建筑细节,带有古典情怀,具备化繁为简的自然美。壮观大气的建筑围合布置,最充分体现了中国传统“天人合一”的思想,建筑立面在看似平常的处理中透露出一种直率的美感和低调的张扬,并在对绿色的原始向往中,创造了人、自然与建筑的和谐共生。

©由甲方提供
技术图纸
“ CHNICAL DRAWINGS ”
_

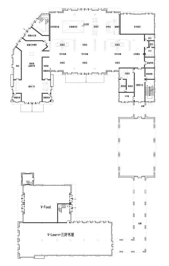
◎一层平面图

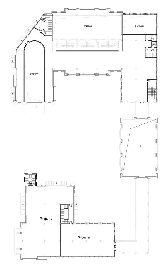
◎二层平面图

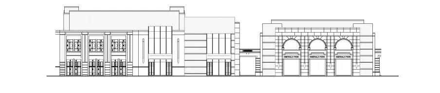
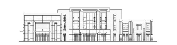
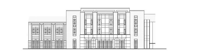
◎北楼西立面

◎北楼东立面

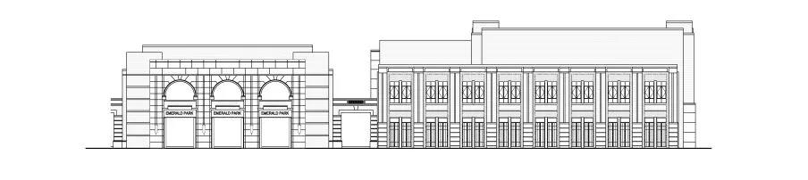
◎北楼南立面

◎北楼北立面

◎南楼北立面
工程档案
项目名称丨石家庄万科翡翠书院示范区
项目位置丨石家庄 长安区 高营大街
业主单位丨石家庄万科文泽房地产开发有限公司
建筑设计丨上海日清建筑设计有限公司
设计总负责丨宋照方
设计团队丨易爱生 徐大伟 汪晔 李文科 王克文 张腾腾 崔娟 高伊娜
建筑施工图单位丨河北拓朴建筑设计有限公司
景观设计单位丨北京凯盛上景景观设计有限公司
室内设计单位丨上海意嘉丰室内设计有限公司
建筑面积丨6000m²
建筑摄影丨是然建筑摄影


