
缘起:秩序美学的场所与艺术
境非独景物也,喜怒哀乐亦是人心中之一境界,故能写真景物,真感情者,谓之有境界。
---王国维《人间词话》
◎美学艺术馆
美学艺术馆择址安徽合肥市包河区北京路与龙川路交口,地理位置优越,抵达合肥各大核心区域快捷便利。
主院-美学艺术馆 | 星映玲珑
“ 翠竹法身碧波潭,滴露玲珑透彩光 ”
_

◎体块生成
用地所在地区都市化程度越来越高,设计出发点是希望人在城市中,希望能够获得和风景的交流,蕴酿自然与建筑间交互体验的场所空间。


◎洞天画廊
从结构和树木的限制中,创造出相互嵌套的组织空间。在相对局促的现有环境中,创造了相对围合的空间,遮蔽了周围嘈杂的环境,与周围的建筑协调,又在统一之中有所变化,展现出一种别具一格的轻盈感。

◎星光历历
" 仿佛若有光,初极狭,才通人。
复行数十步,豁然开朗。"
弧形廊道顶面边界限定天际,以一种庇护的形态给予安全感与关怀。场所空间内建筑与景观相互应和,整体空间纯粹简洁。

◎清越玲珑
建筑主展示面的旋转玻璃楼梯,采用高透超白玻璃,使室内与室外形成一种无隔绝的空间渗透。加之室内空间氛围的营造,使得玻璃旋转楼梯散发出“静如水,薄如纸,亮如灯”的一种玲珑之美。

建筑师首先通过推敲建筑体量上虚实间的关系,来划分立面上的虚实比例,然后再将立面划分方式按一定基本模数关系展开,立面材质以同一模数划分,寻求严谨几何关系,强化景观新传统属性。
后庭 - 虹道 | 花语茶庭
“ 办得春风共花醉,尽教蝶闹与蜂喧 ”
_

“虹道”串联着二层平台与室外的流线,“虹道”的景墙隔绝外界城市环境的吵杂。使得后院自成禅意画面。


◎花语茶亭
秩序,作为几何美学的基础,是古典建筑与现代建筑的内在精神。美学艺术馆以秩序为魂,思考艺术与场所间的对话,为参观者构建特有的精神所落。
室内 - 灵动的艺术 | 居 · 巢
“ 空到处皆诗镜,随时有物华 ”
_


◎“灯笼”
在室内设计上,从植物生长状态来找起点,在整个作品中都有向上生长的力量,就像植物破图而出的感觉。
强调现代融合的建筑风格,横向延展轴线关系,向外极致的园林庭院景观,融合整体的设计语汇构筑空间形态,并适时注入艺术的灵动性、文化的包容性。

觅得佳境·层叠渐进
“ 空间与流线 ”
_
景墙内各个院落,一院一暻,一暻一季。美学艺术馆通过建筑中的场所ˎ模数ˎ细部的角度思考,相互结合设计,定义秩序美学的场所与艺术。

以简驭繁·巧工独匠
“ 建筑细部构造 ”
_


◎立面法则
立面标准单元细部整体统一关系,对于细部转角作用主要是处理材料之间的过渡关系。


◎模数控制
石材间关系以单块石材0.5M*1M为最基本模数进行组织,再利用金属扣条对大面石材进行再次模数划分。

◎“玲珑”节点
在材料色彩与质感上的选择,清水混凝土的廊道和宝石蓝石材的建筑外表面,营造出静谧,清幽的场所氛围。同时秋日里,带着“黄金”的水杉点缀在秋水之上,尽显秋日之美。

©汪家京
技术图纸
_

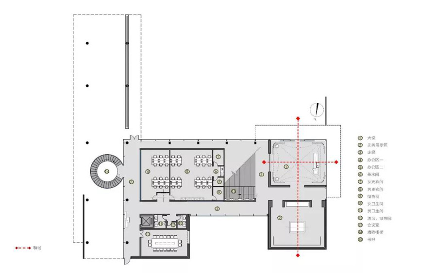
◎一层平面图

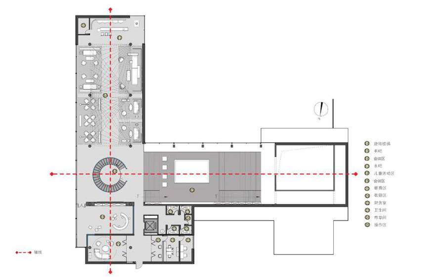
◎二层平面图

◎西立面图

◎北立面图

◎剖面图
工程档案
项目名称丨合肥金地时代领峯 · 美学艺术馆
项目位置丨安徽合肥市包河区
业主单位丨金地集团·禹洲集团
建筑设计丨上海日清建筑设计有限公司
设计总负责丨任治国
设计团队丨吕祝青 甘洁伟 余振华
甲方设计团队丨祝峥 王桦 李予青 刘小强 彭华园 曲仕公 王振宇 杨军
景观设计丨北京创翌善策景观设计有限公司
室内设计丨于舍设计
幕墙设计丨上海安雷幕墙工程(顾问)有限公司
建筑面积丨1274㎡
竣工时间丨2019.11
建筑摄影丨是然建筑摄影 Schran Images&汪家京





