
绿地大西安艺术中心
Greenland Xi'an Arts Center
中国,西安
Xi'an, China
把历史视为集体记忆,视为集体及其地点间的联系,其价值在于它帮助我们把握城市结构的意义,它的个性,以及这种个性的形式——它的建筑。
—— 阿尔多 ·罗西
由古至今,每个存在的城市都有其或多或少的历史脉络,通过自身独特的历史痕迹向人们诉说着曾经历的或繁荣或蹉跎的岁月。
“取其精华,弃其糟粕”是城市发展进程中必不可少的要素,文化历史作为一个城市的底蕴,可视为“精华”,其与新事物的融合构成了城市的新发展,即为历史的进步。
项目背景
“ 肩负历史使命的文化空间 ”
_


本案位于高速发展的西咸新区规划区。建筑将作为西安历史和文化的载体,见证和延续着人们的记忆。
场地为较细长的长方形,两面邻路,东侧紧邻城市绿化带。在这样的场地环境下,建筑与环境融为一体,激发场地的空间活力,最终以一个城市空间的姿态迎接市民。
创作初衷
“ 建筑艺术的抽象性表达 ”
_

◎ Malevich
马列维奇 ——“至上主义”的组成元素为圆和方,而“方”等同于建筑的实用基本形“直角”,因此在建筑的创作设计中引入马列维奇艺术作品中的基本几何形作为建筑形体,并引入其艺术作品中的色彩丰富建筑。

◎手绘稿
作为艺术中心,建筑本身也是艺术品,以展示肩负了历史使命的西咸新区的深沉文化内涵。


如何展示其艺术性?在拥有深厚文化底蕴背景的西安,设计通过艺术的抽象性表达建筑崇高感,同时注重建筑的实用性。这一理念正好与俄罗斯先锋艺术家马列维奇的“至上主义”相契合。

建筑形态与构成
“ 空间的艺术性表达 ”
_

◎体块分析图
引用马列维奇抽象画中几何体交错叠加的组合方式以及长方形场地限制,最终形成以三个基本长方形交错叠加组合的形体舒展地坐落在场地中,以一种雕塑般的姿态回应场地环境和城市环境。

◎结构分析图
建筑立面虚实结合,以玻璃的“虚”,结合白麻石材的“实”。立面设计继续延续马列维奇的抽象画,以白麻石材为“画板”,玻璃窗为“几何体”,部分几何体延伸到屋顶,窗框赋以红、黄、蓝三原色,构成一幅立体“至上主义”抽象画。


空间序列
“一体化”的空间体验 ”
_
室内空间以“至上主义”为宗旨,打造实用、灵活、一体的趣味空间。
所谓“实用性”,“像细胞核一样,从中心开始,向外生长,而不是将每种建筑的各个功能强行放入一个通用的形式中,为满足眼睛或联想的需求,采用一个与内在布局无关的外部造型”。简约的建筑形体与内部简约的空间形态相辅相成,两者共同构成“一体化”的建筑空间序列。

◎剖透视图
主入口处的垂拔空间凸显了空间感。空间既是世界之中的某一事物,建筑师可对其践行操作;又是一种精神构件,透过它人类意识可以理解这个世界,由此又完全外在于建筑时间的领域。主入口的垂拔手法赋予了空间精神性,与建筑的文化精神相衬。


南侧为全开敞空间。全开敞意味着可变,既灵活性——在一定程度上服务于功能主义并使之切实可行。这种通透的空间通过构件进行功能性分割,打造了小空间之间相通又不相互影响的可变模式。
在后续的使用中可通过各种不同的手法对空间进行分割,进行二次开发。全开敞的交流区域体现了空间感与精神性,既符合“一体化”的宗旨,又体现了场所精神。该全开敞的空间与主入口的垂拔空间相连通,二者之间虽相互连通,但因体块而区别。


北侧充满人文气息的开敞式书吧,以通高的大台阶连接二层空间,凸显了舒适性。台阶使用暖色系的木材,给人亲近感,将市民停留在这个空间进行阅读活动。不似传统的台阶,仅仅拾级而上,而是将部分台阶进行合并、错列,形成可供人们停留休憩的阅读空间。
这些大小不同、形态不同的平台通过随机而又有规律的手法散布。台阶两侧通高的书架加强了空间的竖向尺度感,同时也增强了书吧的文化气息。


开敞式书吧与二层悬挑的特色大露台、红褐色折形坡道相连相通,使得室内外空间相通。悬挑的大露台同样采用拾级而上的台阶式,以达到不同的空间体验。

主入口的垂拔空间、南侧的全开敞空间、挑空的开敞式书吧与大露台相连相通,形成“一体式”的空间序列,以室外空间开始,又以室外空间结束,完美体现了“一体式”宗旨。
景观与建筑构成关系
“ 景观建筑一体化设计 ”
_
将马列维奇抽象画中的几何体置换成景观元素——铺装、水池和植被等。以铺装的变化对空间进行切割,引导人流。

与建筑、铺装相邻的水池用以烘托建筑氛围,同时加强了铺装对人流的引导。


种类多样的植被根据建筑走向趋势及铺装的形态布置,营造出多层次的景观,提升空间品质。
材料节点
“ 提升细节的质感 ”
_
项目以白麻石材为主,灰麻点随着距离的缩短慢慢显现,增加细节与质感。玻璃则采用了两种不同的玻璃,应用在不同的位置,表现不同的展示面。

一层大面玻璃采用的是超白玻璃,是一种超透明低铁玻璃,为了区别于一层的高透玻璃,二层的条形窗玻璃采用的是乳白色彩釉玻璃。
为了突出乳白色彩釉玻璃的几何形体,对其进行铝板包边。建筑中折形坡道及部分墙体采用了锈钢板——锈化处理的钢板。


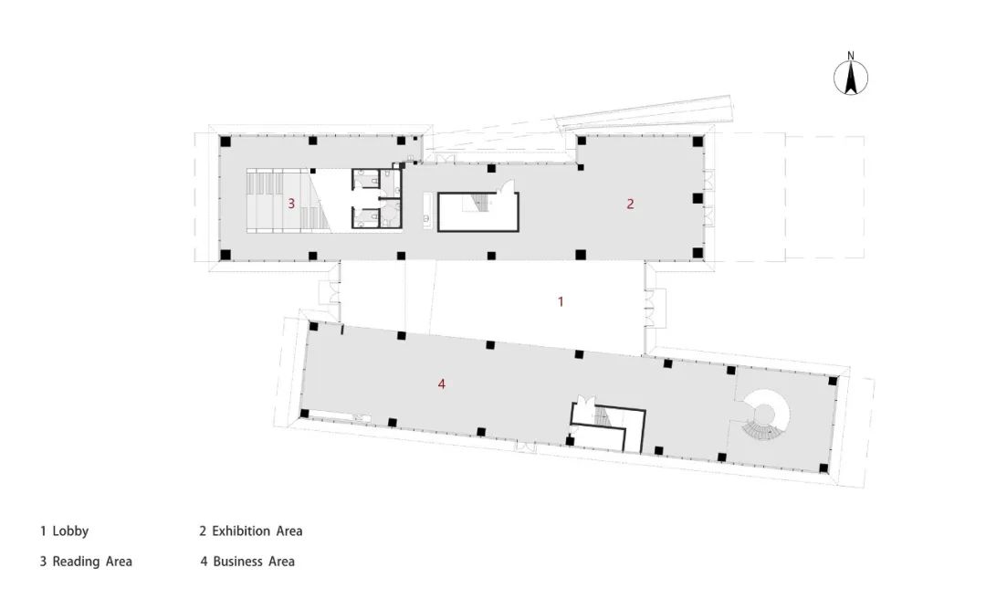
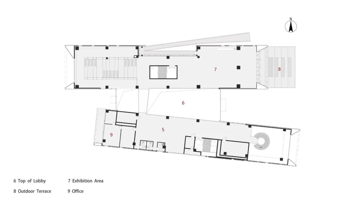
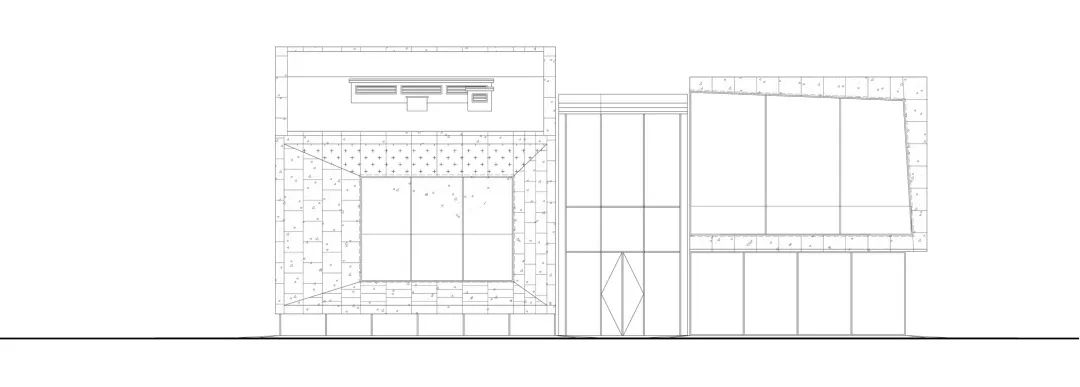
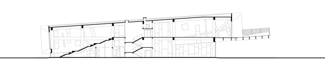
技术图纸
_

◎一层平面图

◎二层平面图

◎北立面图

◎南立面图

◎东立面图

◎西立面图

◎剖面图
工程档案
项目名称 | 绿地大西安艺术中心
项目位置 | 陕西省咸阳市西咸新区
业主单位 | 绿地西北事业部
业主团队 | 王萌 徐妙荣 陈铭宇 张思敏
建筑设计 | 上海日清建筑设计有限公司
设计总负责 | 宋照青
设计团队 | 李晟 刘振睿 李颖超 张润阳 于明明
施工图团队 | 深圳大学建筑设计研究院有限公司
景观设计 | 上海日清景观设计有限公司
景观团队 | 章翼 张晔 向阳 杨丹丹 魏猛 刘明空
室内设计 | 上海集艾室内设计有限公司
照明设计 | 上海福思照明设计有限公司
幕墙设计 | 上海高腾幕墙设计有限公司
建筑面积 | 2200㎡
景观面积 | 13896㎡
建筑摄影 | 是然建筑摄影 Schranimage
- 往期回顾 -
- Lacime Map系列 -
LACIME Architects 日清设计
删 繁 就 简, 溯 本 清 源





