
安徽阜阳大河城章
The Upper Riverside
中国,Anhui, China
将现代主义可归纳为某种类型或从中结晶出某种语汇,融入雕塑化的形体,不逃避中心透视法则也不受限于此,忠于简练的几何也不沉溺于此,致敬经典但不跟随。
一个时代的终结
_
后现代主义建筑思潮推动者的查尔斯·詹克斯,在1977年出版《后现代建筑语言》(The Language of Post-Modern Architecture)书中写道:“1972年7月15日下午3时32分,现代主义建筑在美国密苏里州圣路易斯城死去”,借(Pruitt-Igoe)普鲁伊特—艾格大厦的失败与爆破宣告一个时代的终结。

受益于现代主义建筑运动,如今人们对良好的物理环境与简洁的建筑空间已经习以为常。而它也曾给整个世界带来到处是方盒子的恐怖景观。当后现代这一页被匆匆翻过之后,建筑师才开始在“诗意栖居”的意境中徘徊不已。设计尝试消除主客体的分离,用一种诗意来为自我和世界增添意义。
实际上,自20世纪20年代包豪斯开端,现代主义建筑和它派生出的国际主义风格活跃至今,现代主义的设计精神和表现形式为当代设计提供着源源不断的灵感。现代主义精神未灭,新语汇,新技术,新思想充盈着它的羽翼。

楔形思考
_
本文的主角位于颍河的东岸,与阜阳三角洲公园隔水相望。
涡阳南路与河岸线匆忙地照面便分道扬镳,留下的楔形地块冲着河边豁口大开,有一种劲想要摆脱束缚。顺着这股劲,建筑堆积起最原始的体积,将主要的分量向临河的一端集中,进深越大高度越大,从西南角望去,就像从远处冲来的巨型列车,冻结在眼前。

致敬经典
_

◎美国国家美术馆东馆
当现代主义最后一位大师贝聿铭与世长辞时,贝老留下所专有的“贝氏”建筑语言,简化建筑的形体,尽可能去掉那些无用,多余的成分,用最简洁明了的体块关系,创造出最纯粹的建筑形式。设计试图去致敬经典,用清晰的几何构图,回应复杂的场地与设计任务,删繁就简正本清源。

◎生成分析图
柯布西耶在《走向新建筑》中提到“建筑正处在一个改变了的规范面前,结构已经出现了如此大的革新,使仍在缠着我们的古老风格不能再笼罩着它,实际使用的材料背叛了一般装饰艺术的做法,新的结构方法创造了新形式,新韵律,新的工业创造了新的总体布局与规划,我们再也不能对建立在体量,韵律与比例的建筑的真正深刻规律视而不见,所谓经典的风格已不复存在。”


◎手绘稿
在书中,柯布西耶提出的底层架空,自由平面,自由立面,横向长窗,屋顶花园新建筑五点,在日后也成为了经典。

◎萨伏伊别墅
经典永远不会随着时间的流逝而被人遗忘,从经典中寻求灵感,渴望能像经典一般流传,不因时间而褪,反而更显珍贵。


◎横向长窗,自由立面


老子在《道德经》上曾说:“凿户牅以为室,当其无,有室之用。故有之以为利,无之以为用。”围合的墙面与屋顶所形成的入口灰空间吸引着到访的游客,在岸边停驻片刻,品味流淌的潺潺水声。


简单几何形体间的叠加,挑台而出的玻璃盒子,平行于水面,建筑为场所中不同的观察者提供不一样的视角,在经意与不经意间感受建筑最本质的状态。


对功能的过度推崇可能是个历史性错误
_
身处多元的时代,面对变幻莫测的国际思潮,以及建筑所特有的功能与形式的复杂性与矛盾性,建筑功能与形式间的内在逻辑在当代依旧是逃脱不开的话题。

◎功能流线分析图
当沙里宁提出“形式追随功能”成为现代主义所推崇的流行准则时,答案似乎初见端倪,无论是后来密斯的“功能追随形式”还是菲利普约翰逊的“形式追随形式”。


ETH建筑系主任Dietmar Eberl(迪特玛·艾柏利):“我做了400多个项目才发现现代主义建筑对功能的过度推崇可能是个历史性错误。”
即便所有的可能性已经被列尽,争论也从来没有过停歇,对后辈建筑师而言始终是解不开的谜题。笔者在此无意去讨论何者为第一性的问题,建筑师想通过此案作出些许尝试,力图证明功能与形式间关系的思考在当代依旧有其存在的价值。

现代主义在当代的意义不仅仅是提供一种范式,这个世界也不需要再多一些萨伏伊别墅去完美地诠释新建筑五点。

致敬现代主义,并不是一定要把建筑设计成为一个传统意义上现代主义风格的建筑,对于现代主义而言,如果仅仅是定义成某种风格或者样式未免过于狭隘,对于建筑本身批判性思考,在某种意义上讲,也是对于现代主义的一种传承和敬意。
◎施工过程照片
向左滑动查看更多←
结语
_
建筑是社会活动的产物,也是艺术创作的结果,建筑师们有一个小小企图,多年以后希望这里的情节仍然被反复提及,不论是来过这里的人还是留下的人:那座架在空中的林中跑道,那只挺向河边的巨兽,还有巨兽背上的星星……
技术图纸
_

◎总平面图

◎景观总平面图

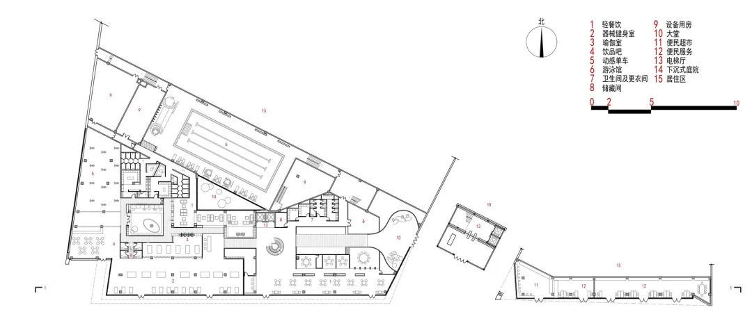
◎一层平面图

◎二层平面图

◎三层平面图

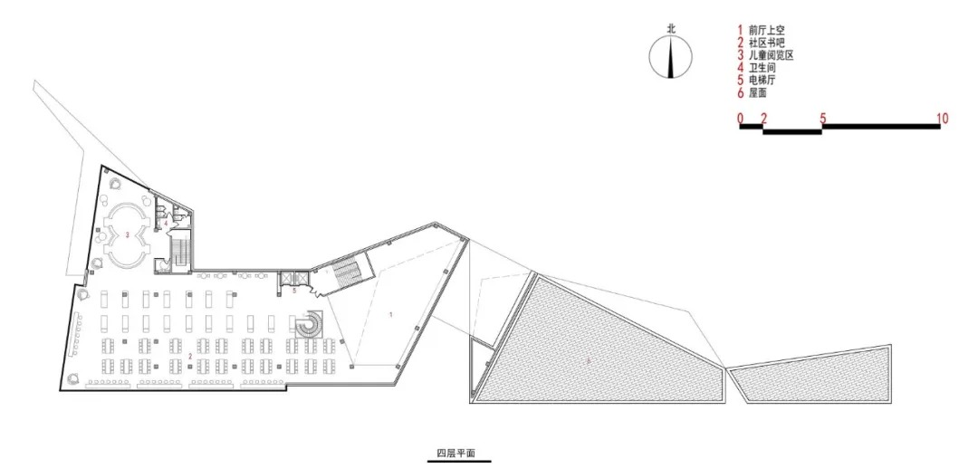
◎四层平面图

◎南立面图

◎节点图
工程档案
项目名称 | 富力皖投·安徽阜阳大河成章
项目位置 | 阜阳·颍东区涡阳南路
业主单位 | 富力集团安徽公司&安徽皖投置业有限责任公司
建筑设计 | 上海日清建筑设计有限公司
设计总负责 | 宋照青
设计团队 | 初子圆 刘泽华 许克福 赵晓雪
景观设计 | 上海澜道环境设计咨询有限公司
室内设计| 上海牧笛室内设计工程有限公司&卓艺设计顾问有限公司&则灵艺术(深圳)有限公司
建筑面积 | 8623㎡
景观面积 | 19065㎡
建筑摄影 | 行知影像
图表设计团队 | 刘家豪 刘芸 林逸恺










