
万科·深哈万科城
Vanke· Shenzhen Harbin Vanke City
中国,哈尔滨
Harbin,China
对话城市
“ 城市之镜 ”
_

◎ 大区鸟瞰图
项目位于哈尔滨国家级新区及自贸区,处于城市主发展方向,与老城区共同推进哈尔滨建设国际化大都会。
展示中心位于一期大区中心,是进入深哈·万科城的门户,向西面向城市科技体验主题公园——拾光公园,成为社区生活场景的第一张名片。

深哈产业园作为城市新兴的区域,承载了无限的可能。而万科城的崛起就像一面镜子,映射着“深哈芯城”乃至松北新区的快速而茁壮的成长。


展示中心的设计追求极端简洁的现代主义美学的同时也兼顾了古典式的均衡和传统仪式感的并置,光圆与镜方的对比、幕墙与拱廊的交错,使来访者在步移景易的游览体验中获得强烈的视觉冲击而最终归于心灵的平静。

大道至简,大象无形。摒弃繁复的形体堆砌,大刀阔斧切削出干净至极的璞玉浑金。一道月下廊桥连接城市与镜像、幻境与现实、热情与平静。

《看不见的城市》里的城市是如此轻逸(Leggerezza),这是卡尔维诺在《文学未来千年备忘录》中论述的至为奇妙的气质。这面“城市之镜”映射着晴空浮云、芳草葳蕤、流水潺潺、楼宇交错,整个城市在这面青脂玉珀上化为静止。物质与精神在这里融汇,时间与空间也在这里交错模糊,记忆的秩序赋予城市运转的动力,一座新的、动人的城市由此诞生!

建筑空间
“ 幻映廊桥 ”
_


建筑主体的玻璃盒子围合方正;一圈拱廊营造出的灰空间打破了室内外空间的界限,在纵向上形成不同的空间层次和虚实变化。


主体展示面采用白色高反玻璃和镜面金属挺,以同一模数进行竖向分隔,从而寻求严谨的几何关系,展现出轻逸的独特气质;围合主体的拱廊采用木纹铝板,精致而富有细腻的人情味。

主体的围合与拱廊的开放、玻璃的轻盈与木纹的厚重,虚与实、冷与暖的相互映和,整体空间散发出一种纯粹之美。


建筑不仅是城市的展示面,也是承载人们生活的容器。在近人尺度的空间营造中,我们试图创造一个符合万科品牌对美好生活追求理念的场所。
承袭了古典气质的拱形片墙一字排开,共同撑起微微上翘的木色连廊,城市与自然的对话,时间与空间的交错,为参观者构筑了能够驻足的精神场所。


白色高反玻璃在表皮上的应用令建筑具有极高的辨识度,每块玻璃的交接处被镜面金属挺扣盖覆盖,浑然一体。

咖啡色铝板包裹的拱廊由亚克力灯带勾勒出轮廓,薄如纸、静如水,为哈尔滨这座冰雪之城注入一份温暖与情怀。
后期改造
“ 兼容并蓄 ”
_

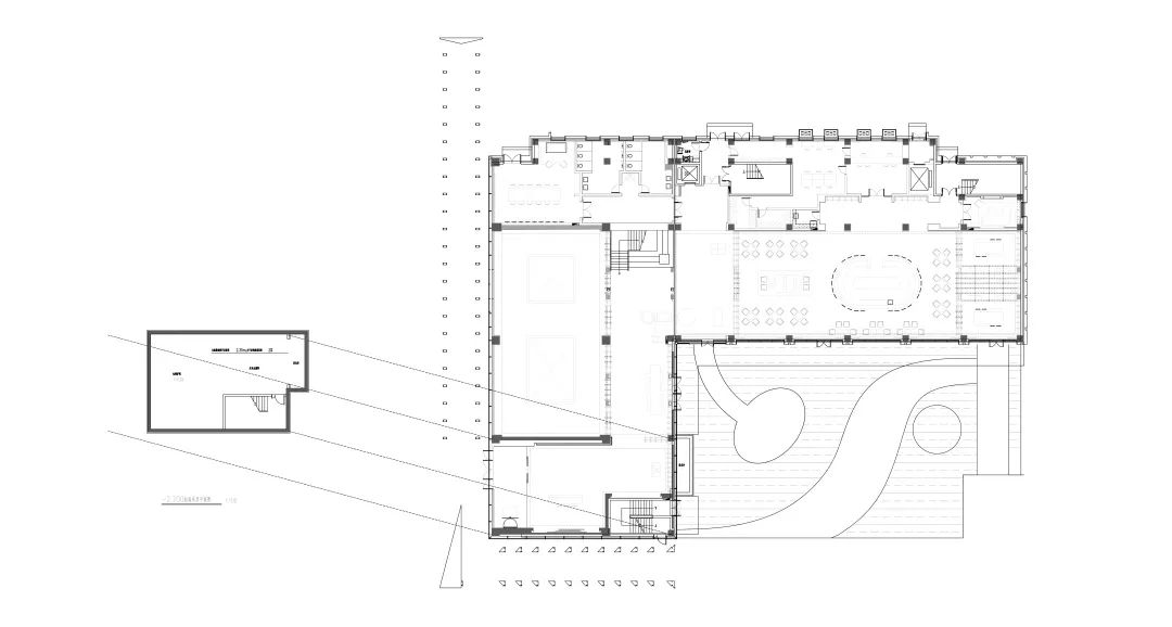
建筑平面采用L型布局,利于展示中心后期改建为幼儿园。既兼顾展示中心面对城市的展示需求,也完全满足改建为幼儿园后教室和活动场地等空间对采光、功能和环境的要求。
室内空间
“ 内外延续 ”
_

室内的设计延续了建筑的整体格调,以原木、金属、石材和亚克力营造出文艺、科技、富有未来感的空间氛围。


展示中心除了基本的接待功能,还包含了咖啡吧、书店、宴会等功能。在平面的设计中分区明确、流线清晰,同时又呈现灵活多变的空间组织方式,利于后期使用。
技术图纸
_

◎总平面图

◎首层平面图

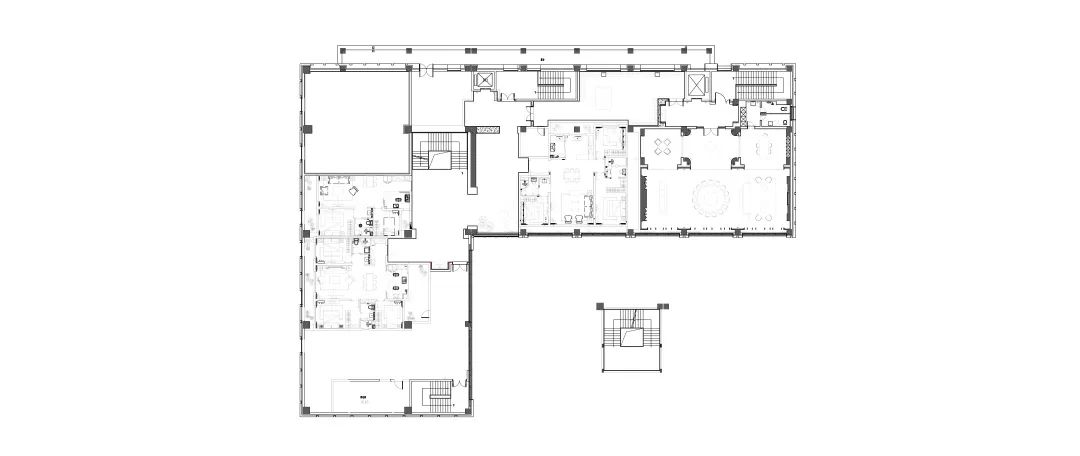
◎二层平面图




◎立面图
工程档案
项目名称 | 哈尔滨深哈 · 万科城
项目位置 | 哈尔滨市松北区西至智谷四街南至规划178路东至规划207路北至规划路
业主单位 | 哈尔滨万科
甲方团队 | 裴雷 高文亮 姚宁 吕凤霞 刘丽慧
建筑设计 | 北京日清建筑设计
设计总负责 | 宋照方 张强
示范区设计 | 吴曙光 王小飞 张会民 董梁臣 潘培成 徐涛 娄立明
大区设计 | 上海日清:陈波 葛伟 郝文晓 方厚超 张殿 王小飞 郭雨宁
施工图设计 | 哈尔滨工业大学建筑设计研究院
景观设计 | 深圳市派澜景观规划设计有限公司
室内设计 | 上海意嘉丰建筑装饰有限公司
幕墙设计 | 楷宴建筑咨询(上海)有限公司
建筑面积 | 4200㎡
景观面积 | 15161㎡
建筑摄影 | 是然建筑摄影





