
竹林里
The Bamboo Forest
中国,常州
Changzhou, China
引 言
_
“最好的建筑是这样的,我们深处在其中,却不知道自然在哪里终了,艺术在哪里开始。”
——林语堂
文化是文明的积淀,常州是一座拥有三千二百年历史的文化古城, 素有“三吴重镇、八邑名都”之称。千篇一律的钢筋水泥现代建筑取代了传统街区,常州的地域特色和文化正逐渐消亡,在此之下,路劲竹林里提出城市“聚落空间”的概念,打破封闭,重构功能,传承与发展常州传统建筑文脉。

◎西立面
竹林里位于天宁区竹林北路与庙湾村西路交叉路口东侧,基地被青龙道路及庙湾村路切割分散。现状条件衍生出能辐射周边的开放性场所——多元灵活、开放共享的“叠合市集”。

◎区位图
“叠合市集”在垂直方向高低错落,水平方向有机散布,堆叠营造出一个个不同高度和大小的聚落灰空间。

◎功能概念图
打破传统的建筑模式,由一系列带屋顶花园的盒子叠加而成。在它们的缝隙交错间,形成社交空间与街巷体验,丰富内部环境,内外渗透,尺度更加友好,形成一个开放共享、贴近生活的城市公共空间。

“叠合市集”的概念雏形包含“城市、邻里、垂直聚落、复合空间、共享开放、生态”六大主题,旨在创造一个丰富却不失内涵的社会性公共空间,助力开放性社区乃至城市周边区域的发展升级。

街、巷肌理
_

◎建筑肌理图

◎建筑模型
城市 城市的复兴需要共享、开放、生态的空间,具有生命力的邻里空间能为城市和周边区域注射活力。以此我们想打造一个带动城市活力的公共空间,激活整个周边社区。

邻里 邻里空间继承了江南传统聚落所形成的各种维系社群纽带的交往空间。通过推敲街巷的尺度和每一个社区盒子之间的关系,意在重构江南水乡的街巷空间,打造一个能吸引人且乐于驻足的空间。

垂直聚落 体块在垂直方向高低错落,在垂直空间上体块堆叠,营造出一个个不同高度大小的灰空间和室内外空间,以丰富的立体空间形式达到移步异景的体验。

复合空间 我们设计了一个生动有趣的街道,这个街道可以将公园,广场和公共建筑作为街道特性的一部分来使用和,从而强化街道用途的多样化以及空间的复合性,并将这些用途紧密的编织在一起。为居民生活带来了多种多样的趣味性体验。

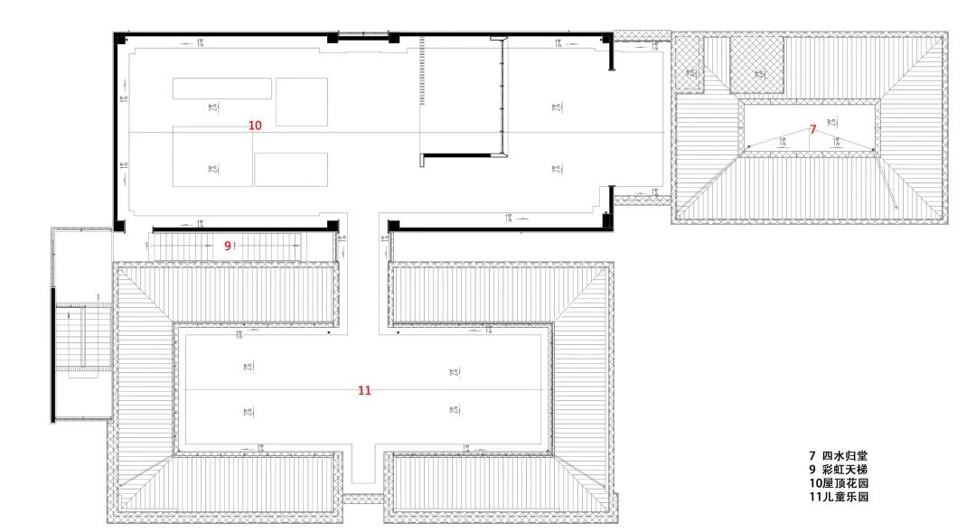
共享开放 室外大台阶,水景,各级平台,以及从三层通往屋顶的窄巷空间,屋面的运动儿童游戏等场所,形成了一系列开放共享空间。



生态 公园和建筑的结合是我们的一个目标.采用多层次立体绿化的设计,为城市提供一个生态交流的场所。结合各级台阶及各层绿化平台以及天井,屋顶绿化,我们打造儿童老人全龄化的绿化活动空间。


竹林里完成了公园和建筑的结合,多层次立体绿化设计,各级台阶、天井、屋顶绿化,景观层层叠加,为城市提供一个生态交流的场所。
细节之美
_
天井 每当下雨,屋顶内侧坡的雨水从四面流入天井,寓意水聚天心,称四水归堂。引入了自然,可以感知气候、光影、时间的变化,晴时阳光洒落,雨时水流沿四檐跌落,风、光、雨、雪,汇聚一处,四时皆景。

镂空砖 石材间隙的变化形成了渐变肌理,其逻辑与传统砖砌花格墙吻合,同时为室内引入静谧柔和的光线,根据时间的变换,室内的光影也随之变幻,加强室内的舒适感。

编织网 槅扇一般由立向的边梃和横向的抹头组成框架,抹头又将槅扇分成槅心、上下绦环板和裙板三部分。槅心大都由棂条拼缀成各种图案,而绦环板和裙板则多雕刻各种装饰图案。槅扇既有通风采光之功能,又极尽空灵通透之美感。


古今云游一梦,让木槅扇技艺之美,用新的技术与技艺,将传统审美与工艺引入现代建筑肌理之中。

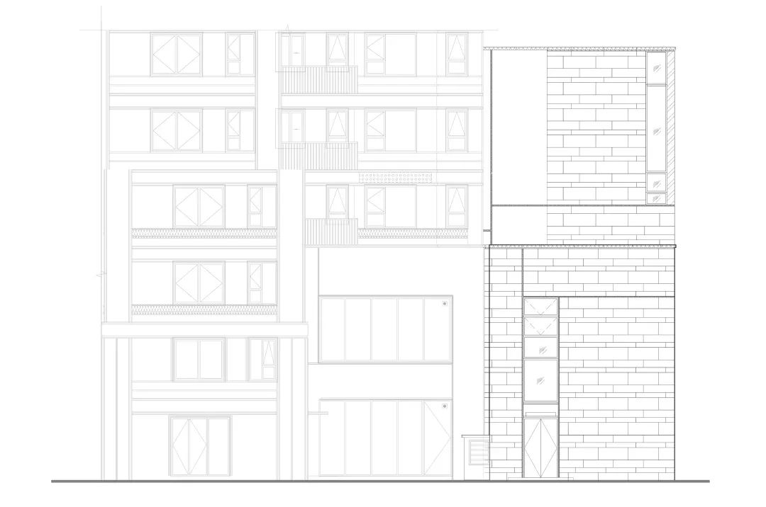
头部建筑根据建筑体量与功能进行清晰的划分,一轻一重,一虚一实。采用的编织网将呈现一种“半透的轻盈感”与石材二者不会形成强烈的反差,可以在不同的光线变换下演绎出丰富的温度与表情。
竹林里的布局和构思直接地呼应了古城街、巷的环境肌理,利用空间上的层叠递进,打造绚丽的城市节点,促进城市文化升级。竹林里是我们在城市更新,城市聚落的又一大探索与进步。
技术图纸
_

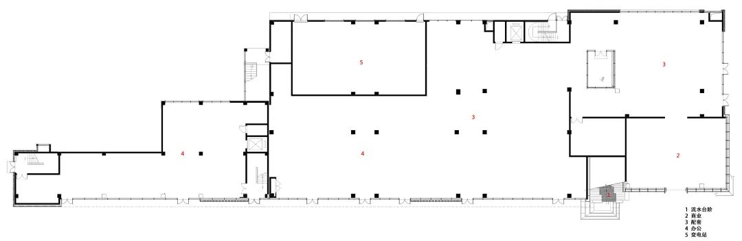
◎一层平面图

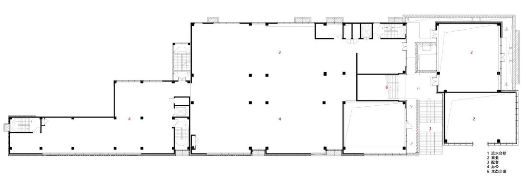
◎二层平面图

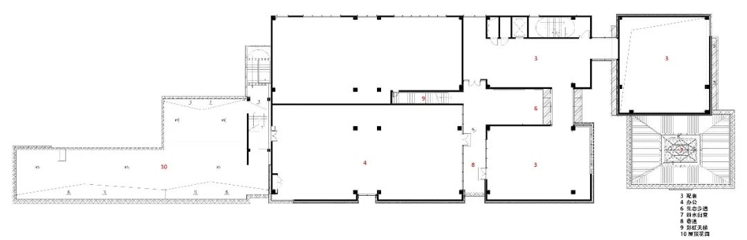
◎三层平面图

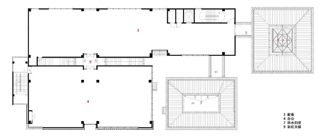
◎四层平面图

◎屋顶层平面图

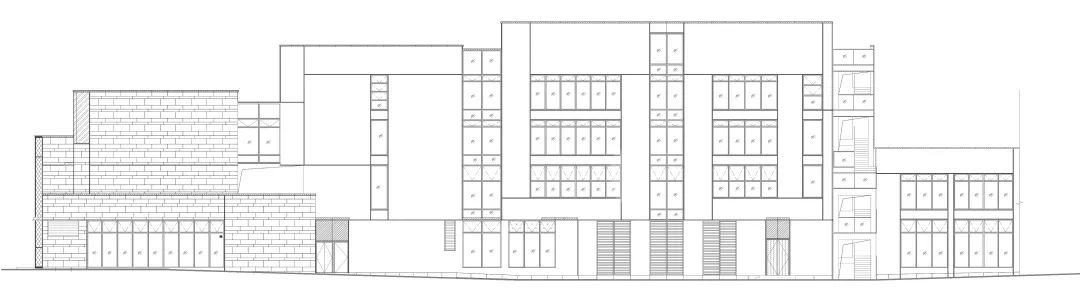
◎西立面图

◎东立面图

◎南立面图

◎北立面图

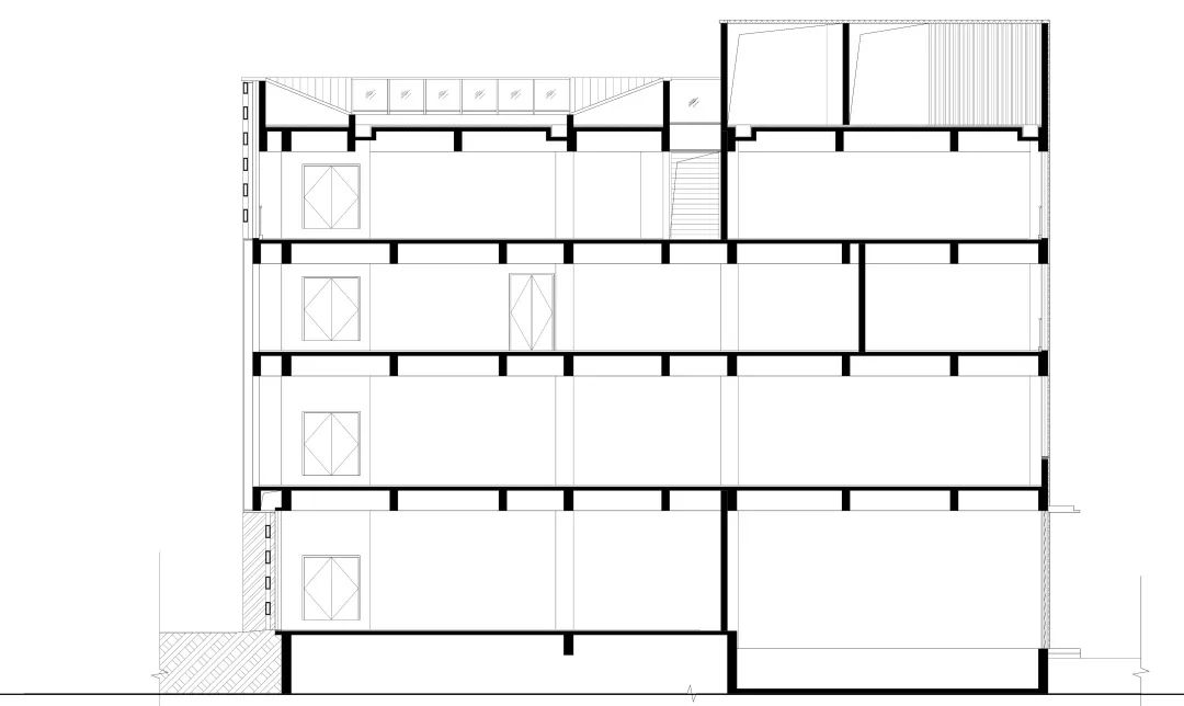
◎1-1剖面图

◎2-2剖面图
工程档案
项目名称 | 竹林里
项目位置 | 江苏常州
项目类型 | 商业办公
业主单位 | 路劲地产宁常区域公司
业主团队 | 王国栋 唐小波
建筑设计 | 上海日清建筑设计有限公司
设计总负责 | 熊星 吴笛
建筑团队 | 陈炯鹏 付忠国 杨静雯 薛嵋月
建筑施工图设计 | 江苏远瀚建筑设计有限公司
景观设计 | 上海澜道佑澜环境设计有限公司
室内设计 | 梁志天设计师有限公司 梁志天生活艺术有限公司
幕墙设计 | 上海盛斯建筑设计有限公司
建筑面积 | 5548㎡
设计时间 | 2020年7月
竣工时间 | 2021年3月
专业摄影 | 时差影像


