
宁波天阳·月湖天第
SUNNY Moonlake Mansion
中国,宁波
Ningbo, China
随着时代的发展、人类的进步、科学技术的日新月异,人类对居住环境的美观舒适是近乎苛刻的。不同价值取向需要满足多样化的追求,未来的居住建筑势必将呈现出集美观、舒适、实用、环保而又个性化的高科技现代化景象。

整体鸟瞰 ©山间影像

◎区位分析
项目地块位于宁波市海曙区,老城区的市中心区域。海曙区内有四百余载翰墨书香的天一阁,是宁波的城市印记和文化之脉;基地旁的月湖是市中心开放式的江南山水园林;距离项目1KM的宁波高铁站,是城市生活的重要交通枢纽。

街景 ©山间影像
场地周边多为多层的老旧居住小区,北面为新建高层住宅;周边建筑年代、高度、功能均各不同。因此场地是身处高速现代生活与旧城市井生活之间。如何在规划及建筑设计中体现面向未来城市生活的格局和尺度,是设计思考的原点。
街区型的住区
划定清晰的沿街界面,以此达到商住平衡
_
小区内共有6栋住宅,打破行列式住区中匀质的空间形式,采用几乎正南北方向的排布,也同时避免正面面对高铁铁轨,视野也更为开阔。立面风格统一连续的建筑顺应道路布置,形成完整的城市界面。

正顶视角 ©山间影像
建筑底层为沿街商业和社区服务配套,对城市敞开。住宅建筑在完成自身营造的同时,也为街道空间提供围合,共同组成一种可容纳多种日常生活的积极空间。

◎规划分析演示
建筑本身与用地红线之间的夹角,在一层裙房的屋檐下形成一个个连续的,完全对城市开放的灰空间。创造了在裙房屋檐下,居民能停留交谈、商业外摆等多义空间,营造可感知的城市边界意向。以建筑手段打造街道界面,以多样功能填充街道内容,使街道空间成为满足日常需求及汇集多样活动的场所。


街景 ©山间影像
与封闭性的大规模居住小区相比,街区型住区在城市的关系上更加亲切友好,在营造多样性城市风貌、缓解城市交通压力、打造舒适街道空间等方面具有明显的优势。
城市中心区是一个城市交通最繁忙、商业氛围最浓厚、最具活力的地方,这个地段的住区就需要较小的规模及一定程度的开放混合。


社区内部 ©山间影像
宁波月湖天第项目总用地面积为1.2万平方米,容积率为2.0。本地块作为片区街区的基本单元,与片区小尺度交通网络结构相融、与城市共享服务设施及景观系统。因此在地块的规划设计中,希望本小区能成为城市整体功能和空间构成的有机组成部分,使住区不再独立于城市空间、城市交通的孤岛,而是与城市肌理相融、与城市生活相亲的生命体。

社区泳池 ©山间影像

社区连廊 ©山间影像
街角地标的塑造
隐藏在地下的售楼处
_

街角地标 ©山间影像
城市街角是城市的焦点。为避免车库出入口影响小区内部环境,总图规划设计时利用规划限定的车行出入口位置,将地库出入口布置在地块东西两个街角。而东部的街角无疑是整个小区最重要的展示面之一。于是设计利用看似不利的车库入口,结合一层金属顶部镂空屋檐,创造一个绝无仅有的街角形象。这一街角地标,在项目初期用于销售功能。

◎地下售楼处
与地面平行的镂空金属屋顶由一个倾斜的反V字结构支撑起角点,这一特殊的结构设计,使得整个街角的屋顶完全悬空。极薄的檐口,菱形的镂空图案,倾斜的V型支撑体现出富有张力的结构美感。坡道的玻璃维护自成体系,两种不同质感的玻璃互为折角,从屋顶底部“冲向”街角地面,与V字斜撑结构斜度发向, 展现出独特的工业美学韵味。


售楼处入口 ©刘澈

镂空雨棚 ©刘澈

售楼处内景 ©刘澈
内与外的协调统一
高技派的住宅立面
_
一栋特色的建筑凝聚着设计者和建造者的心血和智慧。新的住宅旨在寻求现代建筑所具有的精致直白的观感,简洁的金属板材和玻璃,屋顶花园、共享庭院、私家落客区......在不同层面和维度上诠释建筑与未来的理念。

去除多余的装饰语言,住宅的立面与科技工业风的街角地标保持着统一。在户型设计时,简洁的平面空间关系,使得建筑外轮廓平整,立面呈现简洁的建筑表情。




立面细节 ©山间影像

◎阳台节点
以银灰色铝板、金属型材、蓝灰色LOWE玻璃作为立面主要材料。工字型截面型材大量运用在建筑立面上,独特的阳台栏板的节点设计使住宅建筑拥有了独特精致的工业美感。局部点缀亮色,给冷峻的建筑立面增添一笔色彩。

住宅入户 ©山间影像
结 语
_
土地资源的稀缺、城市生态环境不佳,是当代中国城市发展面临的现实困境。住区作为居住空间是城市职能的重要组成部分,与人的生活休憩相关,居住环境的优劣直接影响居民的生活质量。随着物质和精神文化水平的不断提高,人们从起初对住房建设数量的追求早已过渡到对居住质量的追求。创造一个合适的居住区环境已成为时代的要求,并具有迫切的现实意义。

©山间影像
技术图纸
_

◎总平立面图

◎住宅南立面图-1

◎住宅南立面图-2

◎住宅沿街东立面

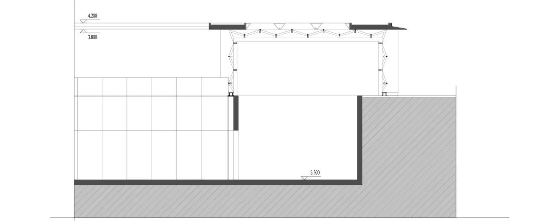
◎住宅剖面

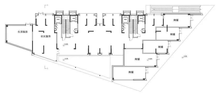
◎沿街住宅一层平面图

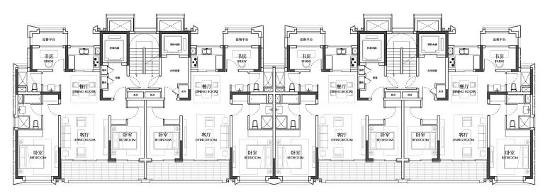
◎住宅标准层平面图-1

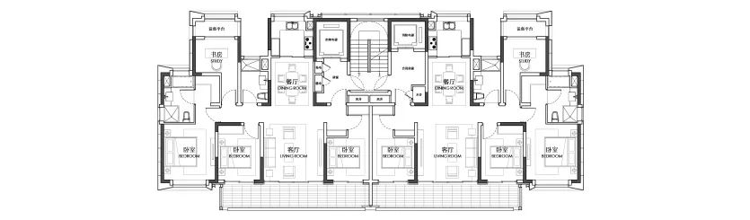
◎住宅标准层平面图-2

◎售楼处北立面图

◎售楼处东立面图

◎售楼处剖面图
工程档案
项目名称 | 宁波天阳·月湖天第
建设地点 | 宁波市海曙区三市街与长春路交叉口
项目功能 | 住宅建筑
业主单位 | 宁波天杭置业有限公司
业主团队 | 高立 汪证
设计单位 | 上海日清建筑设计有限公司
总建筑师 | 宋照青
设计团队 | 李圣 魏文渊 樊兆峰
施工图设计 | 深圳华森建筑与工程设计顾问有限公司
建筑面积 | 35002.43㎡
设计时间 | 2017年10月
建成时间 | 2020年12月
专业摄影 | 山间影像 刘澈





