
成都温江科创城雪山会客厅
Chengdu Wenjiang Sci-Tech Innovation City Snow Mountain Lounge
中国,成都
Chengdu, China
温江光华新城旧貌
_
光华新城,位于成都西部温江新区,紧邻温江行政区,西接大学城,是衔接老城区和新城区的纽带位置。与中国大多数城市的发展一般,这类区域属于过去的郊区工业区,与城市核心区距离很近,但发展又不及更偏远的新区,成为亟待改善的区域。


公园城市的规划理念
_

上位规划设计响应成都五级公园体系,秉承了全域公园绿色发展的理念。形成1个城市级中央公园、5个社区级绿廊公园及若干口袋公园,为居民提供约50公顷高质量绿地空间,并对接北侧市民中心及东面公共绿地,真正实现公园城市的设计意图。
温江科创城先行区规划
_

温江科创城项目是整个板块的先行区,整体规划设计遵循上位规划及城市设计的原则,改变旧有的“产业拉动人口带动居住的”老模式,转变为“以人为本,生态吸引人口带动产业”的新模式。首先致力于从区域小气候上改变旧有的工业区的形象,注入新的以绿廊公园做为核心的轴线关系,先改变区域环境,从而去发展产业、商业、教育、居住等功能,实现全域公园绿色发展的整体定位。

产城融合 公园先行
_
基于以“公园城市”做为核心理念的设想,温江科创城的绿廊公园是激活整个板块活力与能量的第一把钥匙。公园犹如一条绿丝带,愈合了曾经破败的工业区土地,连接了周边各个地块,蓬勃的生机使得整个区域焕发活力。

©是然建筑摄影
绿廊公园往北连接市民中心,往南连接中央公园,是带状的城市公园,公园两侧道路均为9米的红线宽度,为城市慢行交通系统,行人可以经由公园自由穿行在商业、办公、居住、教育各个地块。为了实现便捷的人行系统与公园的渗透,绿廊公园的整体规划呈现菱形的交叉网格体系,各类主题功能与配套建筑嵌入菱形场地内,场地内部依据功能形成不同的高差变化的场景,运用大地景观的手法将建筑与公园融为一体,实现城市公园丰富的界面。


绿廊公园的主要服务对象为周边的各类人群,同时要承载整个成都周末及节假日短途微旅游的客群,因此公园的功能也呈现工作日和节假日两种模式:日常状态下,这里是居民休闲、观展、运动的场所;节日状态下,则能承接大型会议、竞技比赛、各类演出。公园开放后,越来越多的人在这里聚集游玩,温江光华新城已渐渐摆脱了破旧污染的工业区的旧有印象,成为人们心中生态宜居的区域新中心。



©是然建筑摄影
雪山之下的雪山会客厅
_

“窗含西岭千秋雪,门泊东吴万里船”,在成都,远眺西岭雪山是冬季晴朗时收获的最好的风景,雪山会客厅是我们给予这座雪山下城市的一抹白。
雪山会客厅是绿廊公园的配套建筑,位于绿廊公园的东南角,主要的功能是用于展览、会议及便民服务。建筑运用地景的手法,与公园的菱形单元融为一体,北侧只在花海之上可见山峰,南侧则将山体与地面贴邻,呈现完整的建筑形态。



©是然建筑摄影
建筑呈半围合形态,主体建筑简洁又赋予力量,远观是洁白的雪山山峰,近看与水面倒影相映,宛若晶莹剔透的水晶。裙房建筑镶嵌在花海之下,与自然景观坡地相连接,与整个公园融为一体,在自然空间里以雪山的抽象符号吸引着人们前来探索。在主体建筑的二层可以走到景观花海的最高点俯瞰整个绿廊公园,欣赏公园城市的生机活力,憧憬城市的未来生活。


©是然建筑摄影
建筑的色彩非常纯粹,白色铝板与玻璃幕墙构成整个建筑的立面材料;环境的色彩则是缤纷绚烂,紫色的鼠尾草、木色平台、绿草坪,这些自然的色彩附着于建筑之上,让纯净的建筑沾染四季的颜色,显得格外生动。




©是然建筑摄影



©井旭峰
细部见质
_

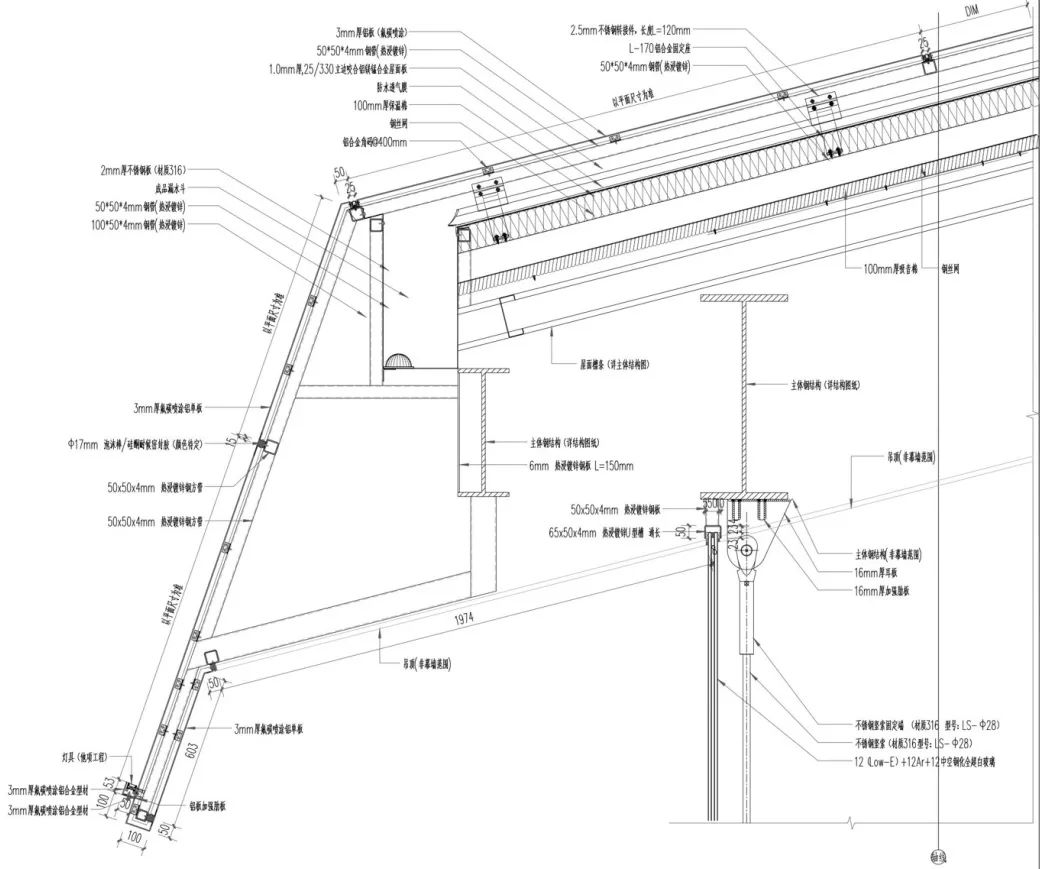
①拉索幕墙系统:大面积的玻璃幕墙,采用了简洁的拉索幕墙系统,取消了传统的的横向拉索布置,仅保留竖向拉索与玻璃分隔对齐,简洁的矩形夹具将“删繁就简,溯本清源”的建筑哲学贯彻其中。


②立面幕墙系统 :建筑立面采用简洁的白色铝板,三角形简洁分割,凸显建筑的简洁与纯粹。


③屋面幕墙系统:主体建筑屋面采用双层架空金属屋面系统,面层为3mm白色铝板,简洁的三角形划分随机布置了翘起的三角形灯光,犹如雪山之顶的点点星光。

公园与社交热度
_
建筑、场地以及景观三者的协调统一,将自然融合建筑的同时也拉近人与建筑的关系,回归建筑为人所服务这一简单质朴的理念,漫漫的花海将周边的居民及游客吸引于此,人们这里聚集欢笑。建筑作为背景,作为服务人的存在,默默的远方矗立,将人的感受融入设计,以致于任一角度下的雪山会客厅都是如此的融于自然又美于自然。



©山间影像
在人们愈发依赖社交网络的今天,我们也在重新思考建筑与社交热度、网络传播之间的关系,通过与景观设计结合,营造”网红“热点的特定打卡角度,提高区域热度及社交网络讨论度,在今天看来,都是一个更正向的选择。

©是然建筑摄影

©山间影像
社区音乐节、草坪露营、喷泉广场、户外运动、树荫集市等丰富多彩的活动在绿地公园及雪山会客厅脚下举办,人们自发的前来参与,点燃了社区的活力之火。

打造以”生活场景为主,生产消费场景为辅“的新型示范街区。





实际使用的现场活动 ©业主提供
未来可期
_


©是然建筑摄影
绿廊公园及雪山会客厅的建成,打开了温江光华新城一个全新的历史篇章,从此开启了属于星河温江科创城的纪元。未来我们的绿廊公园将串联起城市的中央公园、市民中心,串联起超高层办公区、花园产业园区、创意特色商业街区及未来的居住、教育社区。越来越多的人通过绿廊公园认可这个区域,一个全面、生态、美好、富足的温江新中心正在逐渐形成。

技术图纸
_

◎一层平面图

◎二层平面图



◎立面图






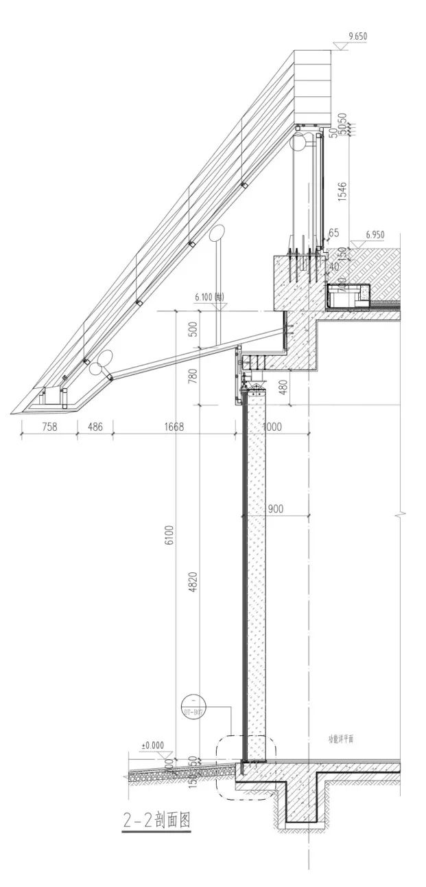
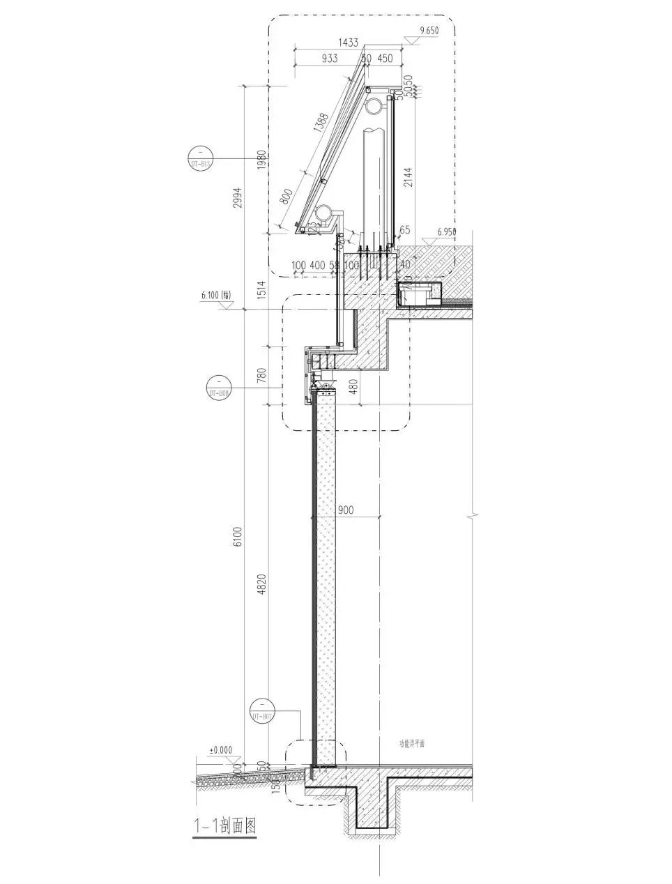
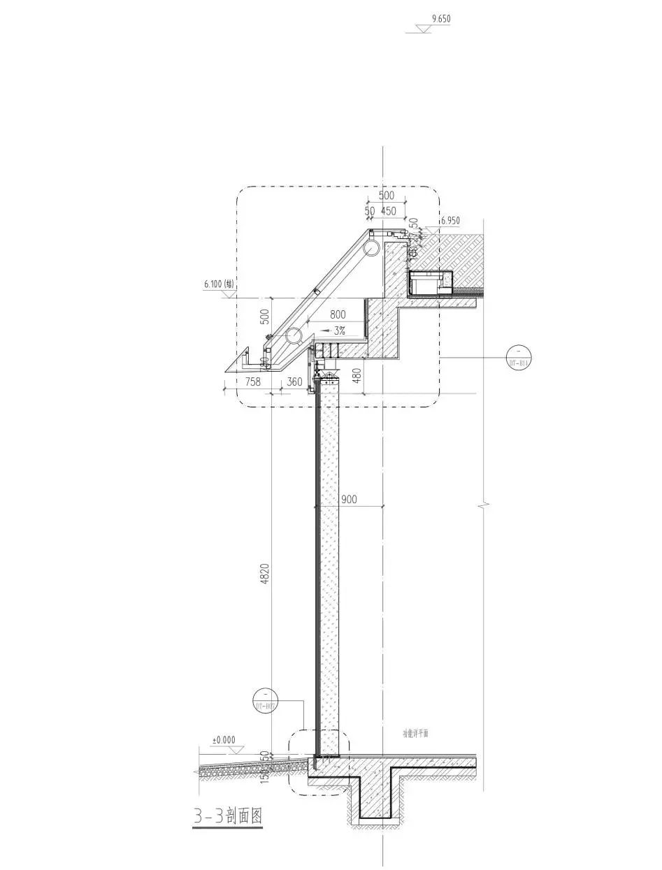
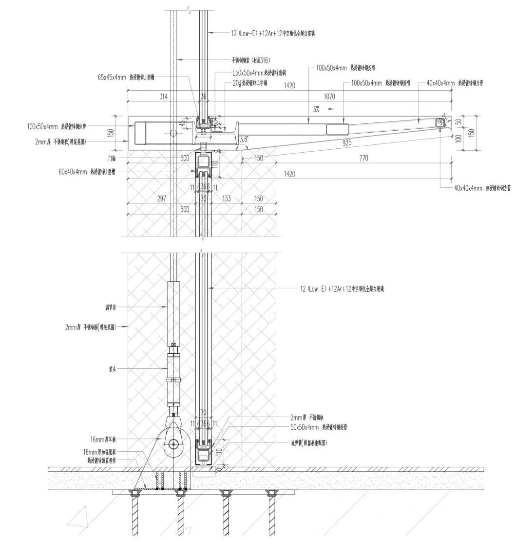
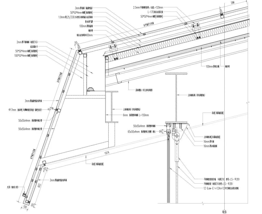
◎节点图
工程档案
项目名称 | 成都温江雪山会客厅
项目位置 | 四川省成都市温江区浩瀚路7号
业主单位 | 成都星河九联公园城市建设有限公司
业主团队 | 邓俊明 陈晓 钟浩
建筑设计 | 上海日清建筑设计有限公司
设计总负责 | 林琼华
规划设计团队 | 石璐 鄢文龙 王培培 张驰 熊瑞 陈侠 刘伟
雪山会客厅设计团队 | 张驰
景观设计 | 上海广亩景观设计有限公司
室内设计 | 深圳市昊泽空间设计公司
幕墙设计 | 成都弗思特幕墙技术咨询有限公司
施工图设计 | 四川中泰联合设计股份有限公司
泛光设计 | 深圳市粤大明智慧科技集团有限公司
用地面积 | 31554㎡
建筑面积 | 3809㎡
设计时间 | 2020年8月
开放时间 | 2021年5月
建筑摄影 | 是然建筑摄影 山间影像 井旭峰





