
苏州嘉骏峰
Suzhou Jiajun Peak
中国,江苏
Jiangsu, China
苏州高新区
_
苏州高新区(虎丘区)位于苏州城西部,辖浒墅关镇、通安镇和狮山街道、横塘街道、枫桥街道、镇湖街道和东渚街道。作为苏州的北大门,浒墅关镇一直承担着苏州地区重要交通枢纽的功能。沪宁城际铁路途径浒墅关镇,其中间站正是苏州新区站。苏州轨道交通3号线,苏州高新有轨电车2号线都途经苏州新区站,每天迎来送往着铁路轻轨乘客 。



项目基地位于站前广场的北侧,广场南侧为苏州汇融广场,东侧紧邻城际路,西侧为社会停车场。整体城市空间被沪宁铁路和城际路隔断,形成南北纵向伸展的城市空间。

◎当地交通及连通性

西片区与东片区主要以居住区为主,形成南北朝向的城市肌理,部分建筑与城市道路呈现一定的夹角。中间片区则是以高铁站为核心,南北依次分布着商业、办公、居住社区等,整体空间呈现两侧密而低、中间稀而高的特点。


重塑广场空间
_
伴随着轨道交通和高铁的日益发展, 城市公共空间围绕交通枢纽向周边延申。不同物业类型的建筑围绕高铁站建设并发挥着自身的能量,方便于城市市民的工作生活。苏州高新区站已然成为了城市发展的焦点之一,如何塑造站前广场的空间界面,同时提供508个可售居住单元,是设计师需要面对的问题。


项目基地两侧的轨道交通站点由广场地下通道连接,高效便捷。广场地面空间不同的人流汇聚以此,南侧已建成的汇融广场,由两栋平行于广场且成对角线布局的高层塔楼和裙房组成。塔楼的功能为酒店和办公,裙房业态为商业。


◎通达性极强的高新区站
项目的规划条件要求地块内设置两栋100米高的建筑,与周边环境相适应,同时地上计容面积不少于58495平方米,建筑师尝试了多种空间组合关系来推敲站前广场的城市界面,空间平衡性。
建筑规划形态的设计性和居住建筑的使用性上往往有一定的矛盾冲突,居住建筑对日照,采光,朝向,通风,噪声,私密性,视野等都有较强的要求,而建筑规划形态的标志性,肌理,界面,空间丰富性等也会反约束于居住建筑。在这中间要找到一个平衡,需要兼顾多方面的因素。
空间体块研究
_


◎4单元双V型布局 & 4单元双板错开式布局


◎ 5单元板与L型布局 & 4单元双L型布局


◎4单元V型布局 & 5单元双板平行型布局
在多方案的比较当中,我们把城市公共空间的塑造排在首要的位置,同时居住建筑的基本要素也得以很好的解决。在五单元双板平行型布局的方案基础上,深化出了定稿的方案。新建的两栋高层建筑与广场南侧两栋塔楼形成轴线对称布局,高铁站两侧的停车场,中间的步行广场及四栋塔楼使得整体空间均衡和谐。

◎定稿模型 ©菁迪模型
两栋板楼尽量错开,避免视线干扰,争取最大的采光面。配套商业沿广场边界布置,形成完整的商业界面,两栋楼的腹地形成最大化的绿地空间。苏州现行的规划条例对建筑的宽度有55米上线规定,此案的两栋建筑至少需要每层8个居住单元才能够满足目标建筑量,居住单元主要已两居室和三居室为主,为了居住的舒适性和室内空间布局的合理性,标准层的面宽接近70米,再多轮不同面宽的平面及建筑空间体量模拟的论证下,政府审批通过了此建筑面宽。在城市空间形态和居住单元的销售性上取得平衡。


立面的功能性
_
为呼应高铁站及周边现有建筑,现代简洁的公建化立面方向是本案立面设计的目标。先从建筑体型着手,优化建筑平面,形成方正均衡的建筑外轮廓。采用集中式交通核,功能空间围绕其周边布局,最大化采光通风面。

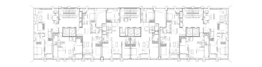
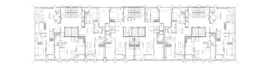
◎标准层平面图

立面上的横竖线条是对城市线性空间的回应,大面积的玻璃窗给室内带来足够的光线,通透的玻璃减弱了巨大建筑体量对空间的压迫感。苏州当地传统建筑给我们在设计细部语言上提供了灵感,层间横向线条的起翘,白色竖向线条的微弧,让建筑在近人尺度上更加雅致。

◎局部立面大样图


建筑材料选择了色彩明快的香槟银色铝板和蓝灰色玻璃做为主面用料,使得建筑整体观感现代简洁。

◎土建结构外侧的彩釉玻璃与中空low-e玻璃色调一致

◎视觉样板

◎重叠渐变的层间横向线条增强了建筑典雅的气质
入口大堂位于建筑的南立面,双层挑空设计,让更多光线进入室内,波浪形不锈钢雨棚更是增强了入口的昭示性。



◎大堂立面大样图
第五立面设计,高层屋面将太阳能板,机房,管廊,支撑结构等统筹布局,利用女儿墙及檐口收住屋面层空间。低层裙房将上人屋面绿化活动空间与大地景观统一设计,形成完整的动线及图底关系。

拓展的生活空间
_
由于项目基地空间有限,建筑师将高层首层架空,裙房做上人绿化屋面,创造出了网球场,漫步跑道,儿童活动天地,邻里会客厅,公共礼仪草坪,架空非机动车库等丰富的社区活动空间。



嘉骏峰项目的落成,重新塑造了站前广场的空间形态,突出高铁站为核心点,站前广场为轴线,两侧均衡平行的城市空间。现代简洁且极具识别性的立面语言给了苏州新区站一新的记忆。



技术图纸
_

◎场地平面图

◎一层平面图

◎标准层平面图

◎立面图

◎剖面图

◎户型图


◎模型图纸 ©菁迪模型
工程档案
项目名称 | 苏州嘉骏峰
项目位置 | 苏州高新区
设计单位 | 上海日清建筑设计有限公司
项目总负责 | 宋照青
设计总监 | 王艺
设计团队 | 李一弘、聂际昌、欧侯鹤、李枫(实习)、包玉柱(实习)、胡若楠(实习)、汪海豹(实习)
设计顾问 | 于卫东
主要材料 | 铝板、low-e玻璃、彩釉玻璃、涂料
建筑面积 | 83321.3m²
设计时间 | 2018年1月
竣工时间 | 2021年9月
业主单位 | 嘉华国际集团有限公司
业主团队 | 茅勇创、吴姬、陈松
景观设计 | 上海日清景观设计有限公司
室内设计 | 梁志天设计有限公司(售楼处)、壹舍室内设计(上海)有限公司(居住单元)
施工图设计 | 启迪设计集团
幕墙设计 | 迈孚希锘佰建筑结构技术咨询(上海)有限公司
灯光顾问 | 苏州规划设计研究院股份有限公司
施工单位 | 上海绿地建设(集团)有限公司
摄影 | CL-studio-吕晓斌


