
上海顾村体育馆
中国,上海
ShangHai,China
一次关于建筑公共性的探索
摘要 :在重视全民健身的后疫情时代的当下,常规封闭式的内向型体育场馆已经不具备吸引力。当下的体育场馆在承担相应运动功能外,更应成为城市空间的链接点,公共生活的纽带,串联起市民的日常生活。
Part1
设计背景
顾村体育馆位于上海宝山区潘泾河与宝安公路交叉的运动公园内,历史上曾经作为宝山工业区的重要组成部分,场地内河边亦保有数处工业龙门架遗迹。而随着城市化的进程,工业生产已慢慢远离此区域,老的河边厂房与工业码头也被更新为市民体育休闲公园。

◎ 区位关系

◎ 场地原貌

◎ 鸟瞰图
Part2
打破场馆边界,
通过立体步道将公园活力引入建筑

◎ 户外“登山步道”与公园融为一体


◎工业建筑地标-公园视角
传统体育场馆具有清晰的空间边界以及运营管控时间,在非运营时间,体育馆往往成为一个冰冷的地标伫立在城市空间中,本应最具活力的市民体育馆,却成为了城市活力的抑制剂。在重视全民健身运动的后疫情时代的当下,这种传统的封闭体育馆已经不具备吸引力,我们尝试建立一种能够容纳各类室内外运动的空间系统,突破空间的边界与运营时间管理的边界,让体育馆真正成为区域的活力中心与运动服务中心。

◎观演大台阶
为消解巨大的建筑体量,以及将体育公园的活力与建筑交融,将人群更加顺畅的引入建筑,我们尝试在传统的建筑体量中引入一条抽象化的“登山步道”,通过多级大型观演台阶,坡道,吊桥以及平台,为建筑引入一条不受时间限制管理的室外登山步道,串联起体育馆首层的攀岩馆游泳馆,以及二层的羽毛球馆健身馆。而二层的空中“山巅露台”,更是24小时开放,通过立体“登山步道”的引导,成为公园的公共观景台。


◎ 户外观景台

◎ “登山步道”

◎ 游泳馆

◎ 羽毛球馆
这些不同层级的立体建筑外部空间组织成为开放性的跑步路线,与公园的跑步步道串联,一同组成了一个综合性的开放性的体育空间体系,打破封闭场馆的使用管理局限。
Part3
重塑工业印记,
通过大型桁架钢结构表露暗示工业历史
为呈现尺度巨大的观演台阶以及城市观景平台,建筑采用了高度两米的巨大的钢结构桁架来实现12米的结构悬挑。

◎ 金属网遮盖下半裸露的金属桁架与大空间



◎ 工业感的建筑细部
面对这样的结构信息,我们没有按照传统做法选择用漂亮的金属板将结构遮蔽,而是为重塑场地工业生产的场所记忆,采用半透明的金属网,将具有工业美感的钢结构桁架以一种朦胧的姿态呈现出来,似乎在于远处公园里的龙门架形成对望,也是跨度70年的历史印记的对话。
建筑自身利落的几何线条,也展现出一种当代的工业美学,以几何形式的语言回应工业的历史印记。
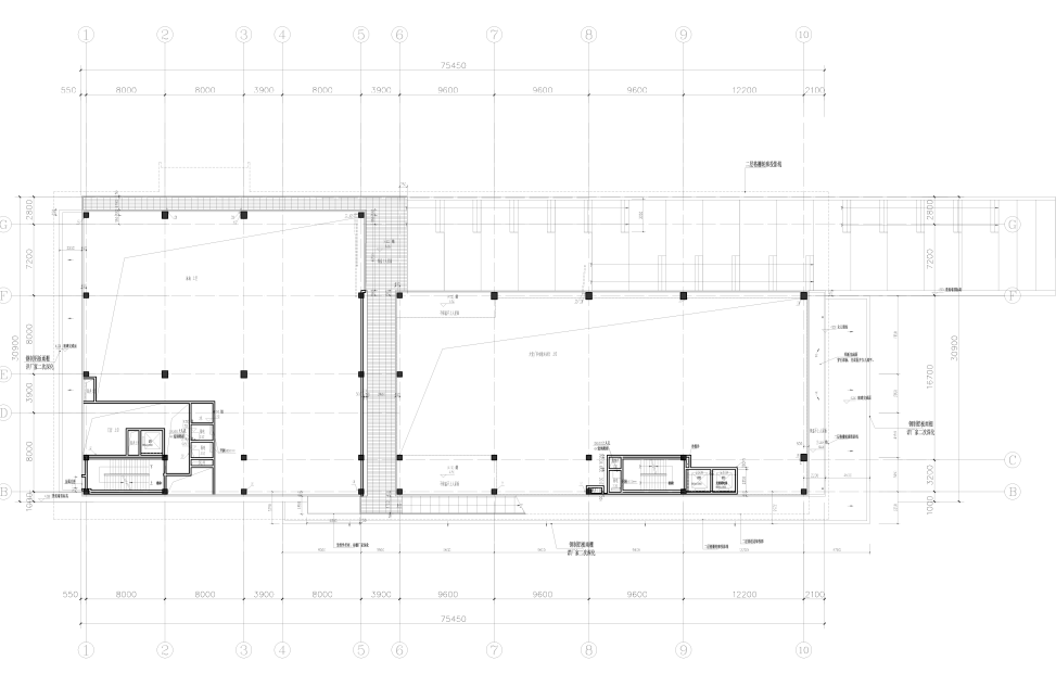
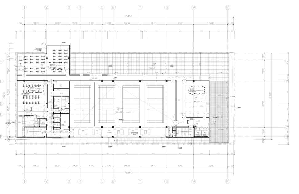
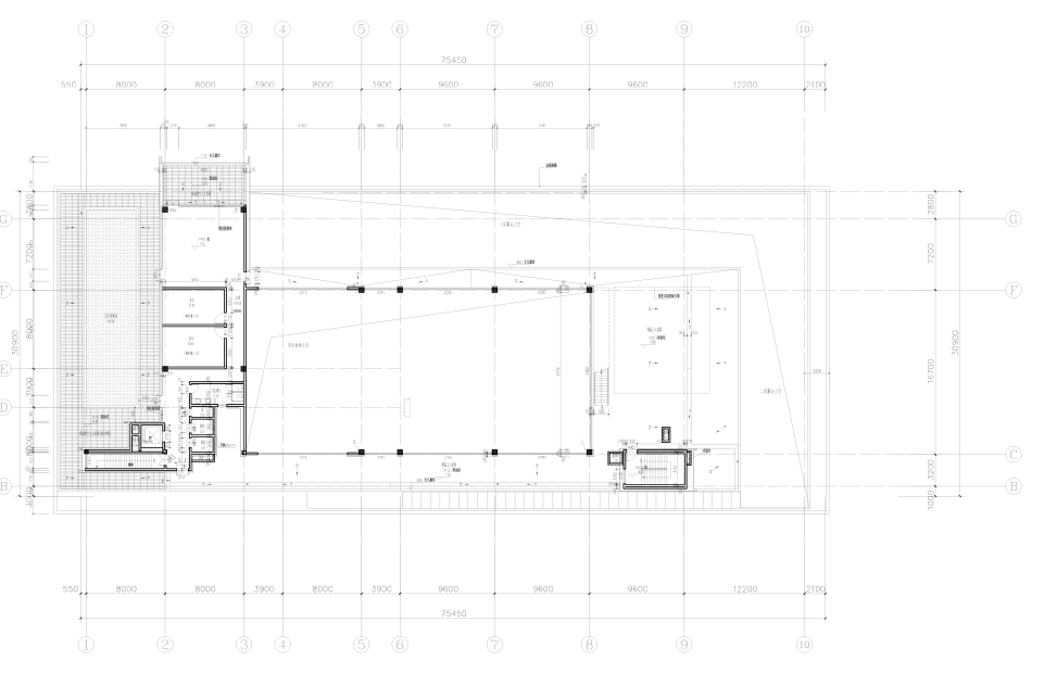
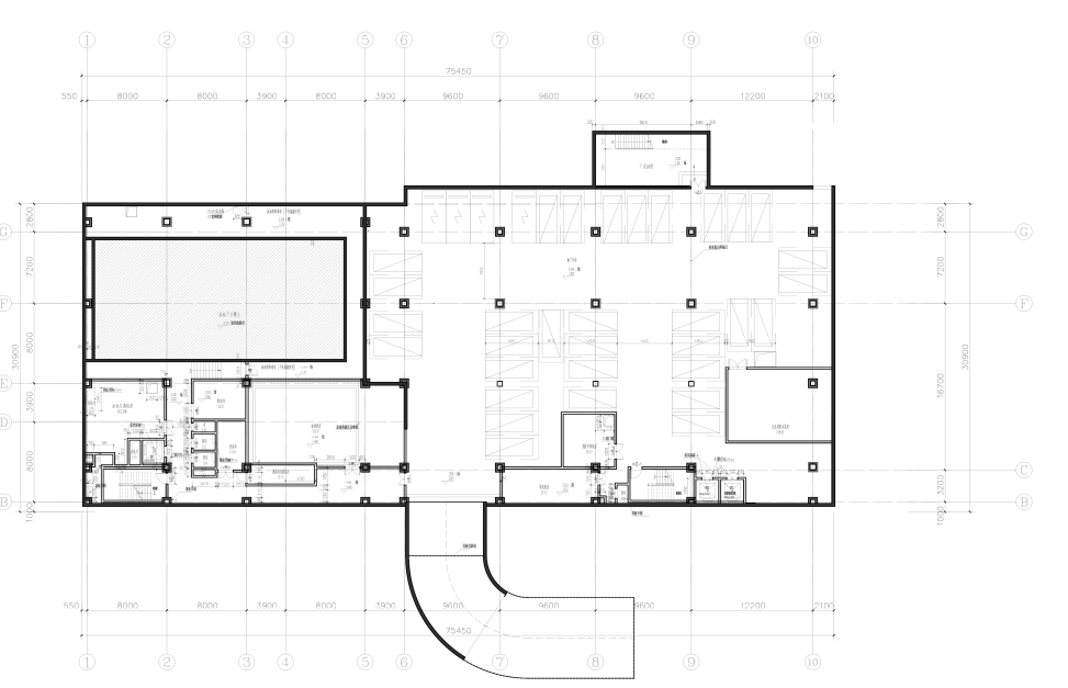
技术图纸

◎ 首层平面

◎ 夹层平面

◎ 二层平面

◎ 三层平面

◎ 地库平面


◎立面图

◎大台阶剖面

◎场馆剖面
工程档案
项目名称| 上海顾村体育馆
项目位置| 上海
项目功能| 滨水中型体育馆
建筑面积| 7000㎡
业主单位| 上海顾村镇政府
代建团队| 上海大华集团 葛向高 张一纯 芮姚瑶 韦小犁
建筑设计| 上海日清建筑设计有限公司
总建筑师| 宋照青 蔡兢凯
设计主创| 强瑞
后期主管| 郭丹
后期团队| 吴旻琦
设计时间| 2017.6-2019.9
竣工时间| 2023.08
专业摄影| 于曦





