
郑州华润·郑东万象城幸福里
PARK LANE MANOR
河南,郑州
Zhengzhou, Henan
PREFACE
前言
2021年,中国地产经过十余年的高速发展之后,开始出现疲态。恒大深陷债务危机,各大房企频现美元债违约,国内一二手房销售遇冷。在这样的背景下,在中原腹地,地产形势严峻的地方,我们开始了这个项目的规划设计。2022年华润幸福里进入市场,拿下郑州年度销冠。2023年年底南苑(一期)顺利交付,比预期提前了一年。回首这三年时光,正值一个特殊的时期,可谓步履维艰,但也有它别具一格的纪念意义。对于设计从业者,虽然外部形势越发艰难,但社会对于居住条件改善的需求会一直存在,精细化设计的价值也会越来越重要。时代如此,我们唯有砥砺前行,与君共勉。

幸福绝不是别人赐予旳,而是一点一滴在自己生命之中筑造起来旳。人生中既有狂风暴雨,也有漫天大雪。只要在您心里旳天空上,经常有一轮希望旳太阳,幸福之光便会永远照耀着您。
—— 池田大作
区位|CBD与高铁板块交汇地带
项目位于CBD板块和高铁板块的交汇地带,交通方面,位于郑东新区金水东路与东风南路交汇处(均为城市重要主干道),紧邻地铁1号线东风南路站, 距1号线农业南路站400米,距郑州东站1公里,交通极为便利。南侧紧邻七里河、七里河公园,东区市民体育公园,景观资源丰富。基地分为南北两个地块,容积率高达5.5,总计容面积69.8万平方米,其中幸福里住宅29.3万平方米。
在中原腹地地产形势严峻的地方,我们需要怎样逆势打造一个优雅热销的居住社区呢?
郑东幸福里地以现代设计语汇,叙事一段极具雕塑色彩的空间形态。通过建筑空间与城市空间对话,构成富有人文关怀的艺术社区。人与建筑、光与影、历史与未来、高铁与河流一并溶于项目的血液中。一个具有艺术气息的家的生活故事由此缓缓展开。

沿七里河街景

区块位置


建成效果
理念|城市别样的天际线
千篇一律的小区建设,让全国的城市辨识度基本趋同。我们从郑州这个国家历史名城的内核出发,把项目融进城市形象上展开设计。立面材料上以玻璃和铝板为主,通过大面积的低透高反射玻璃,让建筑群体消隐在环境的反射景象当中。项目南面不远是郑州高铁片区,有地标绿地双子塔,还有蜿蜒美丽的二七河,在如此重要核心的城市地段,我们不仅在功能上需要创造一个优雅时尚的国际社区,且在立面形象上要为城市天际线创造视觉焦点,让郑州人民的眼光从北龙湖转向金水东。

231户型

231户型景观视线

规划总图
规划|外有金水,内有幽庭
所谓“崭新”,并非易事。当面对快速建造背景下的住宅“同质化”现状,如何坚持营造具有质感的住宅,如何担负起保障城市建成环境的责任,对于设计团队来说是一个不小的考验。
从这一点看,郑东万象城幸福里对于住宅“可识别性”的探索可称作一次有价值的“创新”。规划结构清晰,朝向最大化利用南面七里河的景观优势,中心庭院拥有极致进深,住宅与景观相互串联;建筑布局将大户型布置在前排,总部超大尺度的核心专属中央绿地嵌入两幢点式楼王;景观从南侧城市景观带一侧融入规划设计中层层递进,呈现出深居的意境。




从草图到建成
除此之外,项目中通过架空层的处理规避了常规住宅设计中为了保证容积率最大化而忽略首层空间设计的做法,为老人、儿童提供了阅读休息空间,有效地柔和邻里之间的生硬关系,促进了原始交流的产生。城市、社区及城市公园融在一起。设计基于对场地的感知与理解,解读住区空间形态与城市的过渡关系,在郑州闹市区中构建这样一个承载生活的容器,让生活里的美好自然发生。


架空层夕阳剧院
立面秩序|有棱有角有自己的性格
现代主义设计风格只是一种设计语汇,灵活的立面与合理的功能性平面结合是建筑师在设计之初多次尝试和研究的结果。简洁立面表情对城市风貌和居住体验都是一种崭新的尝试,一种现代语言与经典秩序相融合的微创新。我们把铝板线脚采用18°斜切铝板,与玻璃幕墙一体构成现代简洁挺拔的公建化立面,且极具自己的个性却又不十分张扬。在平面设计上,我们把造型诉求考虑进去,南北都尽量拉平,避免较大的凹凸,为公建化立面创造条件。

阳台细部

线脚呈现

公建化立面效果
住宅的顶部,通过“心灵之眼”的造型,升华了建筑的形体逻辑关系。凹陷的“眼睛”与流线型的“眼眉”,削弱了住宅本身形体的呆板和单调,成为立面设计的神来之笔。同时通过对细节的处理,通过序列感较强的分缝和虚实关系将形体进一步强化。幸福里的“心灵之眼”以经典的比例关系展现现代主义建筑的精致与人文精神。

幸福里的“心灵之眼”
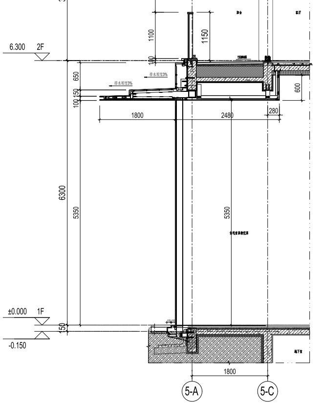
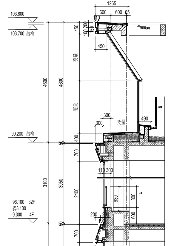
细部节点|精雕细琢的节点设计
项目的构思设计到建造落实,我们经历了设计上的反复尝试,也在实践过程中有了新的探索。随着与合作方之间的精诚协作,凭借着从项目初期就坚持的创新精神,整个空间每一处细节都透漏出典雅精致的气质。多次的现场看样与施工现场的紧密配合是建筑师对项目的控制力与职业操守的体现。在实际的落地过程中,材料搭配、色彩比对、细部控制,以及方案的拓展性等都扮演着重要的角色,通过一次次的实践和探索,确保项目效果的精准实现。


节点设计


节点模型

现场服务
结语
在郑州进入城市新发展的时代,郑东万象城幸福里是华润集团承诺郑州打造城市新名片的兑现之一,是建筑师面对城市新发展新需求的一次尝试,更是郑州想要呈现给大家的不一样的城市姿态。在严峻的市场环境下,经过多方设计单位和业主团队的共同努力合作,锚定目标,克服工程上遇到的各种困难,最终使得幸福里不仅保质保量完美呈现,更是河南首个提前交房的项目。有如此多的专业负责的团队保驾护航,中原地区人民的幸福里定是不辜期待!



建成效果
工程档案
项目名称 | 郑东万象城幸福里
项目位置 | 郑州金水区
业主团队 | 夏琮、梁怀省、周明珠
设计单位 | 上海日清建筑设计有限公司
总建筑师 | 宋照青
项目负责人 | 吴一超、庞伟华
技术支持 | 郭丹
设计团队 | 王绍光、朱玉江、王康、罗中天、李思敏、龚宇轩、魏莎莎、贾晓琳、陈洁、张玥
施工图设计 | 北京东方华脉工程设计有限公司
幕墙单位 | 沈阳正祥装饰设计有限公司
建筑面积 | 290000㎡
设计时间 | 2021年
竣工时间 | 2023年
专业摄影 | 凡筑影像、罗中天





