
项目获得2017江苏省土木建筑学会建筑创作奖二等奖
并被苏州市相城区政府定为相城区规划展示馆使用
初识基地,独具特色
苏州是一座具有二千五百多年历史的文化古城,不但为中华民族创造了丰富的物质财富,也为中华民族优秀传统文化写下了光辉灿烂的篇章。“上有天堂,下有苏杭 ”,苏州有“风物雄丽为东南冠”美誉。“典雅端庄”的气质成为苏州建筑的特色。
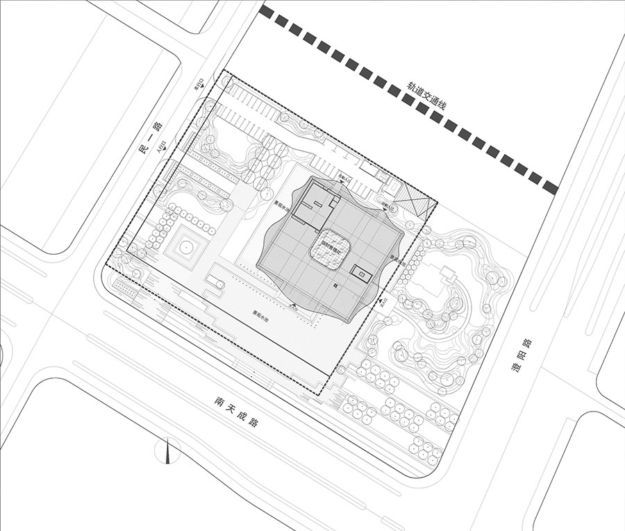
新城控股·MOC芯城汇展示中心位于高铁苏州北站东侧,位于空旷基地,南临南天成路,东临澄阳路,北靠京沪高铁,用地面积1.17公顷,建筑面积6030㎡。


每年流经苏州北站的客流量达上亿量级,高铁进站前减速,正好将展示中心一览无余!区位的优越性决定其独特性:建筑各个看面都非常重要。我们进行了两种思路研究;一种是园林式,用一些围和元素进行空间限定,达到空间有序变化;显然类似园林式售楼处的做法很难实现建筑所承载的含义。我们选择了另一种思路,做一个点,整而不散,让其成为城市地标,视觉焦点!
拉开帷幕,开启新篇章

整个苏州高铁新城项目共计27个地块,总建筑面积近200万㎡,空中俯瞰,这些地块宛如一只展翅高飞的凤凰,展示中心是这27个子项目中的第一个,从形象上看也占据了凤头之位,作为整个大项目的先锋、首开区。它的精神含义是非常重要的!

简洁有力的形状是建筑设计的出发点,我们希望这个简单纯粹的方形建筑能够为业主、政府和所有为高铁新城项目奋斗的人揭示出“信心”的深刻含义,外层幕墙由竖向构件组成飘逸、灵动的效果,寓意为“大幕拉开”,从这个建筑落成开始,整个高铁新城项目就进入到一个火热的建设阶段,建筑的精神属性得以升华。

由简入深,矗立新地标
抱着研究的态度去研究一个独一无二的建筑,切入的想法和手法必须独具特性!建筑的形体到肌理需要严谨推敲。
过程方案 —— 扬帆起航

过程方案 —— 书卷

经过很多轮的方案比选,最终选定了方形建筑方案。方形建筑要做到干净大气必须掌握好比例、研究好肌理。这样,把1.17公顷的基地作为“面”,把京沪铁路作为“线”,把建筑作为“点”让点、线、面在这个项目里完美地组织在一起。


建筑的高度尤为重要,我们把建筑高度定在与高铁上的人视线齐平。高度确定,经比例推敲,结合柱跨和各方因素最终决定,长宽定为46米。
外表皮肌理采用铝方通杆件,外表皮大小与间距组成的标准片段与建筑柱网严格对应。每根杆件分为五等分,内侧做暗纹处理,同时杆件端部做卷起处理,使建筑更增柔美灵动。

在项目景观打造上,我们强调水景的应用,为保证倒影的完整,将通往建筑主入口的道路设置在侧面,建筑飘逸的曲线外衣倒印在水中,显得那么的迷人,外表皮的形象构思来源于一种乐器,叫马林巴琴,建筑是凝固的音乐,我们希望这个小建筑能在水天的映衬下奏出美妙的乐章。

建筑室内




平面与立面

◎ 总平面图

◎ 一层平面图

◎ 屋顶平面图

◎ 正面图

◎ 侧面图





