——引言
不同于传统的售楼处,本案在整体格局上传承苏式园林的婉约,建筑设计上融入现代轻奢理念,打造“度假酒店式示范体验区”。

苏式格局,古韵新风
——简介 INTRODUCTION
本案位于苏州南城吴中区,北与苏州古城接壤,西衔太湖。不同于传统的售楼处,本案在整体格局上传承苏式园林的婉约,建筑设计上融入现代轻奢理念,打造“度假酒店式示范体验区”。出檐深远的金属屋面,半室外的亲水走廊,结合大面积中央水景,于窗花百叶的光影摇曳中营造出典雅苏州味道的空间氛围。既体现现代建筑的简约时尚,又蕴含姑苏园林的古典美。

◎ 建筑主立面

◎ 建筑主立面
水榭亭台,烟雨长廊
——空间与流线 TECHNIQUE&METERIAL
建筑主体由一栋三层的南北向主楼和一栋二层的东西向辅楼围合而成,中央庭院以水景为主,辅以绿树红花点缀其中。水院以南一字排开四间实体样板房,囊括了即将销售的主力产品。整个空间布局有开有阖,建筑与水景互为阴阳,藏风聚气暗含风水,释放了场地环境的最大优势。

◎ 总平面图

◎ 景观入口
门厅的精细化设计是本案的一大亮点。入口的两扇铜门高达6米,采用拉丝铜质面,大气庄重。两侧的金属格栅脱胎于古典中式花格的形式,却更加凝练内敛,与入口的景观长廊遥相呼应。门框和吊顶的设计采用了精品橱窗的手法,在高透白玻背后衬上曲面金属装饰板,辅以暖调灯光的烘托,整个空间仿若丝绸缎带般灵动优雅。


◎ 入口铜门
穿过门厅,由销售大厅步入南侧外廊,宽阔的镜面水池充盈视野。飞檐柱廊倒影深深,宛若立于水中的亭台楼阁。镜面水的特质放大了院落的空间,风过掀起的涟漪让影像还实为虚,却也正是水院的迷人之处。

◎ 水院

◎ 水院夜景

◎ 水院夜景


◎ 内院 长廊
粉墙黛瓦,花窗漏影
——手法与材料 TECHNIQUE&METERIAL
建筑主体采用钢结构,立面由玻璃幕墙,金属幕墙与石材幕墙相互结合而成。
石材选用亚光面的葡萄牙砂岩,质感细腻典雅,与石墨色的金属屋檐搭配,暗合苏式的粉墙黛瓦。石材的水平分隔辅以深香槟色金属线条,让立面更增细节。

◎ 石材效果
金属花格和百叶格栅的运用是本案的点睛之笔,这些半虚半实的装饰构件,让建筑于公共和私密之间产生一种暧昧的空间。某种意义上,这种源自苏式窗漏的设定过滤了光线,甚而记录时间行进的轨迹。当阳光穿过格栅与花格的缝隙,最终化为墙上的落落光影,我们仿佛能听到它们在诉说流逝的光阴。

建筑细部节点上,正立面和山墙面的转角处,玻璃幕墙和陶板幕墙的交接是又一个设计难点。此处我们期望达到山墙在靠近玻璃幕墙一侧逐渐收分,我们在收分处特别设计了一个小型的桁架柱,最终达到两种材料零度相交的效果。


◎ 金属花格
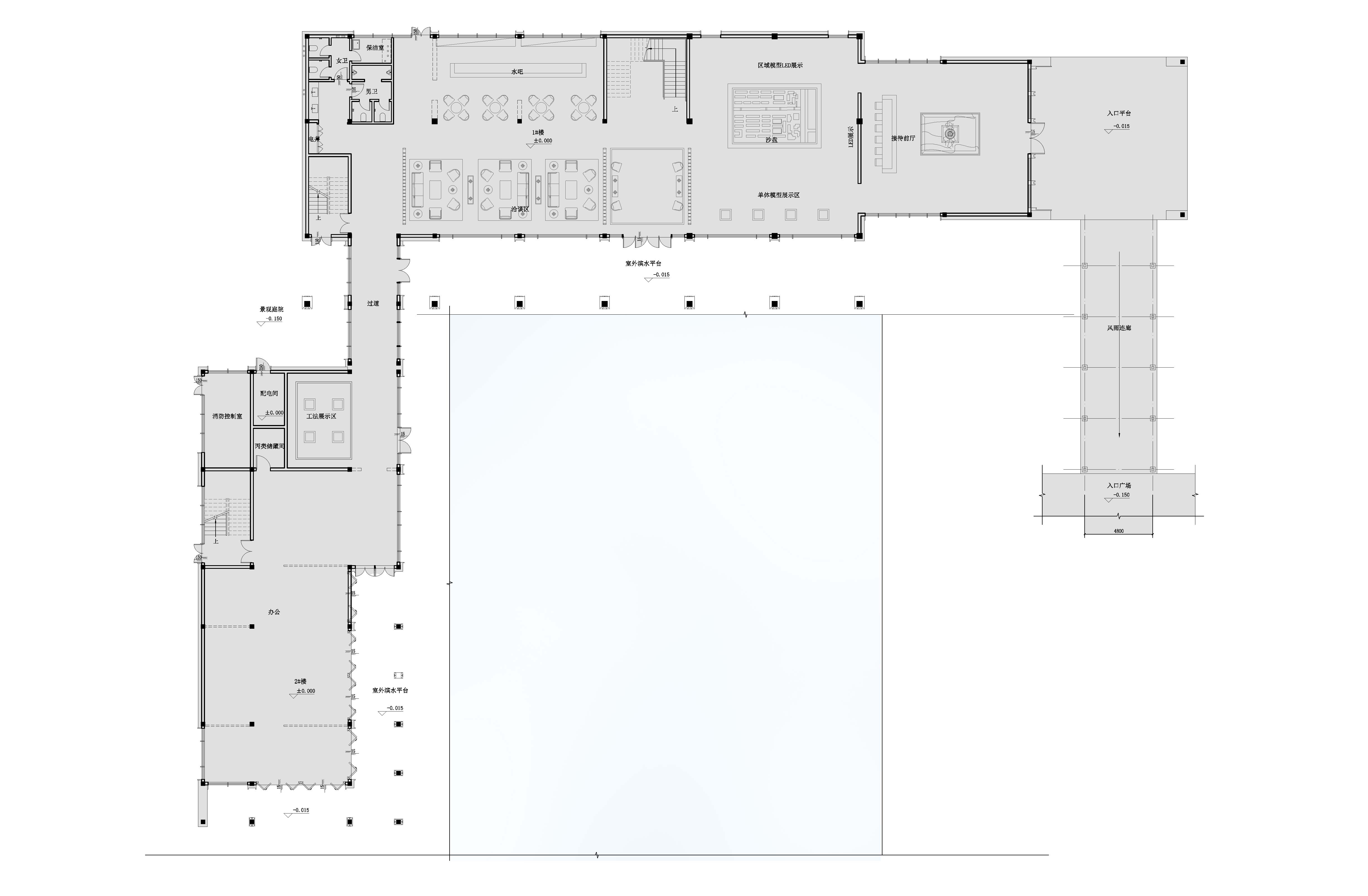
平面功能PLAN

◎ 一层平面图



◎ 室内效果






