前言 INTRODUCTION
“画廊金粉半零星,池馆苍苔一片青.踏草怕泥新绣袜,惜花疼煞小金铃”不到园林,怎知春色如许,而苏州园林更是中国古代园林艺术最闪耀的瑰宝,它有“虽由人作,宛自天开”的自然山水,有“雨惊诗梦留蕉叶,风载书声出藕花”的诗情画意,有“有限中见到无限,又于无限中回归有限”的道趣禅味,更是中国人自古崇尚的“天人合一”民族文化之所在。


项目位于上海浦东祝桥核心区,北邻浦东国际机场,南拥商飞总装基地,西接迪士尼,地理环境优越。本项目,以苏州园林为蓝本,进行了一次造园实践,秉承“巧于因借,精在体宜”之园冶精神,撷“清风明月本无价,近水远山皆有情”之园林意境,以现代建筑语汇筑造现代园林之空间典范,实现与古典园林间的时空对话。


庭院深深深几许,正在曲径通幽处
——空间与流线 SPACE&FLOW LINE
园林布局讲究的是师法自然,在有限的空间内亭台轩榭融合山水花木布景铺陈,于曲径通幽处体现精巧的构思,雅致的情趣。

借由沧浪亭的经典游园线路将基地内的功能区块有机串联,还原古典园林的游园体验,移步换景,引人幽深玄远之思。

形体生成
Form Sharping




取其精,初营其形制
—— 墙 Wall
园林之妙,即在将无尽自然“锁”于院墙之内,成为镜龛中的山水。
“墙”即边界。本次设计中,墙除了沿袭士族园林的墙的区域限定的功效外,也在局部开放视觉通透的可能性,保留神秘感又引发好奇心。

—— 进 Compound
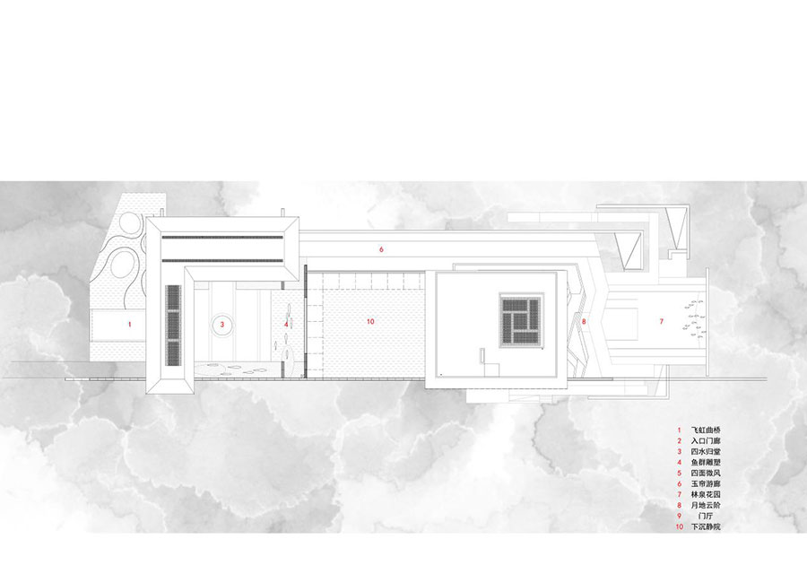
院墙之内,以中轴串联功能,形成“进”之深。古宅之“进”,以房围合而出,而园林则是通过轴线上的各种景来体现层次,即为景深。在本设计中,设计师取江南名园环秀山庄之神韵,以轴线为介质,将四个重要的设计场所相连,形成“山之阶——要之房——水之院——石之庭”的布局,重现环秀之韵。

—— 径 Path
叠山理水之后,“园”之所以能成,无疑还需为游园者提供一种“观法”。此时,“径”就尤显重要。园林中所谓的移步换景,正是“径”的曲折变化所致。本设计致敬这种手法,将行走路径有意设置的曲折蜿蜒,让人既经过每一个场所,却又无法穿越,只能停步观望,形成“可见而不可达”的空间属性,充分体现中式园林的固有叙事结构。

借其魂,皆呈其风韵
—— 对景 Faced Scenery
过桥入门,视线越过落水影壁依稀可见漂浮的盒子,犹如是沧浪亭里翼然凌空于山顶上的素朴苍古的石亭,露而不尽。

—— 框景 Enframed Scenery
过庭进园,即可见通高的展示厅。透过玻璃,特意挑高的内厅空间,让室内外的场景反差感进一步拉大,身处园中的游园者仿佛在通过这个镜框窥探里面的另一个世界。
—— 入景 In Scenery
经园绕道至后方,进入主建筑之内,游园者就进入了此前窥探的世界。然而此时,他们也成为了后来者的窥探对象。“看与被看”的关系在这一刻被确立,而主体与客体的边界也在这一刻被模糊。

初心在方寸,咫尺在匠心
——手法与材料 TECHNIQUE & MATERIAL
抽象性山水,现代性解构
为了充分“致敬”园林,设计师提出“解构山水”的策略,即以现代建筑的设计方法来将山水元素进行抽象,从而进行精细化设计,这个思考过程大致经历了三个阶段,即“标准抽象→图形具象→解构抽象”,主要针对的细部设计集中于入口格栅和主楼上层体量细部。

—— 标准抽象 Standard Abstraction
初期。入口设计成均质化的格栅,仿木金属杆间距1m,一字排开,形成阵列,以取代园林中“门”的概念。同样地,在主楼上层部分,设计师为了达到弱化建筑边界的目的,同样采用了工业化程度较高的均质化穿孔金属折板。
中期。将入口格栅的样式,设计成具象化的山形图案,以回应园林中山水意向。而在主楼折板的设计中,带有雪花图案的穿孔板,亦是对国画中山水留白的图底关系给予了关注。

—— 解构抽象 Deconstructed Abstraction
最终。经过深度思考,对之前设计语言的总结与升华,在格栅设计上选定了疏密虚实变化丰富、上下错落的抽象形式,这是对山水意境的一次解构,将山水的高矮远近虚实的素描关系,以杆件抽象的疏密错动形式呈现。与此同时,主楼上层的折板又一次将山水画中的泼墨与留白进行二次解构,以开孔大小的渐变实现“白与黑”的顺畅过度,和水墨烟雨里的山的轮廓如出一撤,难于辨认界限,似有似无。

如何选择渐变形式及开孔样式,即如何将室内外的关系确定为一种“暧昧的私密和公共”,类似于水幕前后的若隐若现?设计师经过对比,排除了“高窗”式的上大下小式排列,选择了上小下大式排列,形成类似“落地窗”视觉体验,视线可以通过下方稀疏的空洞望向室外,达到“暧昧”效果。
—— 檐口样式 Type of Cornice
在水院雨棚檐口的细节处理上,为了契合中式山水的飘逸灵动,设计师追求“致轻致薄”的轻盈感,尽可能缩减檐口厚度。因此,为了消除结构因素带来的限制,经过推敲,最终采用了折边收头的做法,将接近边缘处的檐口厚度降到100mm,在视觉上被看到的檐口就会显得更薄更轻。
—— 拼缝样式 Type of Pieces
外墙面的石材拼缝处理中,为了削减呆板的视觉感受,设计师将两片石材之间抠出间隔50mm的内凹拼缝,并以反光金属掉压住缝隙。这样既打破了块面化的视觉疲劳,又通过精致的细节强化了立面肌理。

一方静庭,一池春水,一格栖所
——结语 CONCLUSION
纷繁嘈杂的都市里,它遗世独立,为人们营造出一处小小的“自然”。它安静地,谦逊地,匍匐在楼宇间,却在你走进的一瞬,以内敛的奢华惊叹着你的期许。它有它似有似无的轮廓,它有它温润暧昧的边界,它是一个被诗化的日常,也是一首用日常谱写的诗。它短暂又隽永,它继承又变革,它将古韵的灵魂赋予一座当代的躯壳,它将出世的山水写进入世的营造。
总平面图 Master Plan
剖面图 Section



















