——引言
在设计之初我们就致力打造一个不一样的更有感染力的风华。她不仅含蓄内敛具有东方建筑的气质和情怀,而且还善于展现东方文化的博大精深与无穷魅力。
(风华大境项目被评为2016年度日清设计年度优秀项目)

东方美学,古韵新风
——简介 INTRODUCTION
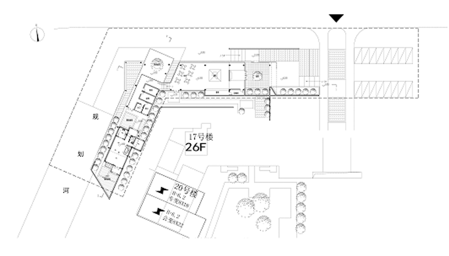
本案位于宁波鄞州新城区湿地公园南侧。作为风华大境的开盘区,其秉承了金地风华系列情致现代意至东方的设计理念,展现了风华系列的不断进步与创新。

◎ 建筑实景图
我们最大的挑战是突破自我。我们想展现的风华不仅是粉墙黛瓦或是重复的装饰,我们希望设计一个具有立意和灵魂的作品。宁波自古的印象就是山清水秀人杰地灵,因此山与水——便是我们设计灵感的来源。

◎ 建筑主立面
匠心营造,静谧园林
—— 空间与流线 SPACE&FLOW LINE
建筑主体由一层的东西向主楼和二层的南北向金属框架交错而成,在建筑周围有限的空间内布置叠山理水,栽植花木,配置碑石等来反映古典的文化意识和审美情趣。金属框架中隐匿着实体样板房与两重园景,保持了建筑主体风格的简洁统一,也使参观动线在充满诗情画意的氛围中行进,使人“不出城郭而获山水之怡,身居闹市而得林泉知趣”;整个空间布局有开有阖,建筑与水景互为阴阳,藏风聚气暗含风水,释放了场地环境的最大优势。


◎ 景观入口
通过具有古典仪式感的片墙穿入其中,是一片纯粹而简约的中央庭院,白墙绿地,松木山石,徜徉其中,可得到心灵的陶冶和美的享受。


◎ 建筑入口
我们通过形体的穿插及与景观的融合形成虚实相套的多层次空间。从入口强烈仪式感的庭院转到山水主题的售楼区,再通过核心的景观内院转向别墅样板房,行进流线中通过多层次循序渐进的视觉洗礼来唤醒每一个参观者深藏于内心的东方情结。白色石材勾勒出简洁大气的建筑入口,宽阔的镜面水池充盈视野,倒影深深,宛若立于水中;在辅以暖调灯光的烘托,展现了建筑入口“纯净、简约、静谧”的空间意境。
独具匠心地创造出丰富多样的景致,充满自然意趣的图画;场地内的建筑、山水、花木自然和谐地糅合在一起,使得一山一水、一草一木均能产生出深远的意境,锦缎般的在脚下迁伸不尽的铺路,似不经意散落的小品,使人观之不尽,回味无穷。

◎ 景观小品
白墙静水,花窗漏影
——手法与材料 TECHNIQUE&METERIAL
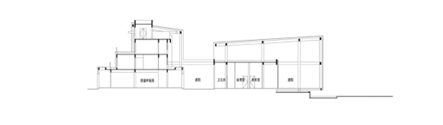
建筑主体采用钢结构,立面由玻璃幕墙和干挂石材结合而成。石材选用白色花岗岩,质感细腻典雅,与石墨色的金属屋檐搭配。石材的水平分隔辅以深香槟色金属线条,让立面更增细节。

◎ 建筑外部
做为对风华系列情致现代意至东方设计理念的一种诠释,以水墨山水作为设计灵魂,以幕墙构件的错落韵律为媒介,将一幅连绵悠长的画卷展现给这座秀美的城市,告诉每一个路经此地人们,我们所展示的不仅是精心设计的家园,还是一份深深的独具归属感的东方情怀。
平面功能 PLAN


◎ 北立面

◎ 南立面

◎ 东立面

◎ 西立面图

◎ 剖面图






