设计理念 - PROJECT
建筑在环境中凸现,环境完善建筑的真意。

在快节奏的生活中,我们渴望一个能亲近自然的地方,项目正是顺应这样的期待而产生的。
延续城市的文化肌理,传递以人为本的文化理念,我们对项目的各个空间组合形态进行了切割,整合,以达到“静而不闭,收放自如”的空间感受。通过大面积玻璃幕墙的使用强化空间的渗透力,而水景平台的设置形成了建筑与自然之前的羁绊,秉承“建筑形体是空间的外在表达”这一理念,勾勒出自然与匠艺共生的尊崇礼序。
项目简介
INTRODUCTION

本案位于嘉兴国际商务板块,距离国际商务区金融广场100m,距离南站4km,距离迦南美地广场300m,东临中央湿地公园,北临嘉兴市区地标建筑,嘉兴第一高楼,是嘉兴南湖市区的核心地段。延续城市的规划肌理,本案的设计以现代风格为主,简洁干练,同时建筑与景观一体化设计,达到城市与自然的和谐过渡。
造型与立面
ARCHITECTURAL IMAGE&FACADE

入口大门的材质以米白色石材为主,层层叠拼,强化入口的层次感,屋顶使用玻璃顶棚,引入自然光线,强化灰空间的通透感。

入口大门的材质以米白色石材为主,层层叠拼,强化入口的层次感,屋顶使用玻璃顶棚,引入自然光线,强化灰空间的通透感。


两层建筑体量沿无边水池借势延展,建筑一层设计为全通透玻璃幕以实现内部的全景视野。上层体量悬挑于空中,构成展示面,与外部环境产生互动。实体部分利用石材和金属两种不同材料形成相互套叠的效果,使整个建筑呈现出现代雕塑般的张力。

后院超大无边水池为展示区的室内空间提供了良好的视觉资源,环绕整个院子的风雨连廊,坐落在水池上的落客区,让人在游览的过程中流连忘返,感受江南流水的中式情调。
空间与流线
SPACE & FLOW LINE
对地块的各个区域优劣势进行分析,制定空间布局:

① 去尘:压缩入口空间,在入口大门处营造多个空间层次来削弱突兀感。
② 引入:进入大门之后是环水走道,利用重复景观的节奏感,制造线形动态空间。
③ 见山:设置景观对景,创造视觉尽端,暗示主体空间的到来。

④ 入画:超长悬挑雨棚,创造室内外过渡的灰空间。
⑤ 登堂:推开大门是超尺度展厅空间,利用相对高度的处理手法,强化空间体验感,同时,带朦胧感的金属帘幕和水雾,创造出烟雨江南的古典情调。
⑥ 无界:从展示区到达样板房区,中间由连廊围合成大片的院落形成独立的景观空间,利用回游体系和视角控制削弱空间的局限性,做到移步换景,营造出“庭院深深深几许”的空间效果。


手法与材料
TECHNIQUE & METERIAL


对展示区底层使用2.1m超白落地玻璃和玻璃肋,四面通透,削弱建筑的边界感,优化底层视野,水上洽谈区利用室内外换景的方式,重新定义室内外空间,形成空间模糊的暧昧关系。
大面积印花U玻为售楼处提供了良好的展示效果,玻璃面的凹凸关系强化了表面的层次感。

靠院落一侧设置长飘窗,采用隐框高反的Low-e玻璃,优化立面效果,尽享院落景观。

细节控制
Detail

入口大门处两侧层层递进的不锈钢格栅,如徐徐推开的帷幕,强化了迎宾的仪式感与引导性。门扇设计着重呈现凝练的细节和精细工艺的质感,以现代美感探寻中式内涵。

一层的玻璃幕墙构建均使用玻璃肋,由玻璃面的两侧伸出,使整个玻璃面的感觉更自然,玻璃肋的端头由金属构建收边,避免的收口常会出现的毛糙感,使整个立面更加干净,精致。

对U型玻璃立面的印花玻璃图案进行解构调整,形成多种的层次关系,同时通过对光影的调控收放室内的空间灰度,带来更丰富的空间体验。

幕帘的收口藏在凹槽内部,使整个立面更材质交接处衔接的更自然。
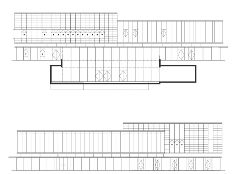
技术图纸
Technical Drawing
◎一层平面图






