引言
除了建筑自身风格与形式方面狭义的“自由”,我们更希望其对于城市环境的关系也同样是“自由”的,因此我们打造了一个可穿过的建筑空间,并赋予它繁复而充满可能性的流线。

繁闹都市
嘈杂世界
到哪里寻一静谧之处
安我心之一时
洗净铅华
再归来
依然少年心
公园边的图书馆
——简介 INTRODUCTION
本案坐落于文化氛围浓郁的北京海淀区,用地南侧为城市绿化带,东侧和北侧为住宅用地,西侧为公园,因此想要做对生态环境友好,具有鲜明的时代性和文化氛围的设计基调便确定了下来。我们希望不仅仅是把建筑做在公园边上,而是建筑本身即成为公园的一部分。于是,这样一个悬浮在草坡之上的玻璃盒子就应运而生了。

自由的建筑
——造型与风格 ARCHITECTURAL IMAGE&style
石上纯也曾经说过,在“世界”这个存在的本身日益丰富与复杂的现在,人们的观念亦越来向无限宽广的领域延展,建筑不再拘泥于某些固定的、约定俗称的风格与套路,而是呈现出更加纯粹的可能性。

◎ 宋照方手稿

◎建筑主立面

◎建筑主立面

◎主入口雨蓬
除了建筑自身风格与形式方面狭义的“自由”,我们更希望其对于城市环境的关系也同样是“自由”的,因此我们打造了一个可穿过的建筑空间,并赋予它繁复而充满可能性的流线。设计师不必强行赋予空间意义,“人”的使用活动才是空间的灵魂。

◎建筑东侧院落
科技与自然的交融
——手法与材料 TECHNIQUE&METERIAL
建筑主体采用钢结构;由浅灰色铝板,配合超白玻为作为主立面效果,局部添加Parklex木板作为点缀;不同材料的组合,强化了空间的本质,干净利落的竖向分缝的处理手法,让建筑愈加纯粹自然,错落式横向线条,隐喻书架,呼应建筑主体。由清冷的铝板和玻璃,温暖的木纹板和草坡所共同构成的建筑,干净纯粹而又充满变化,完成了现代科技感和自然亲切感的相互交融。超白玻和铝板在不同的光线下,对周边环境也形成了丰富多变、深浅不一的反射效果,形成了建筑对环境主观的反映和融入。

◎主入口

◎建筑室内
盛放天空的画卷
——天空庭院 SKY GARDEN
人类居住在地面,却从未停止过仰望天空。
半围合式的建筑,是天空的画框。天空与地面,自然与建筑,光与影,相互对立也相互依存。建筑表面的玻璃和铝板,柔和地映射着天空的颜色,平静的水面再将建筑和天空一同纳入其中,层叠反复的光影反射让建筑的边缘和界限模糊起来,平静而又仿佛充满诗意。
公园与建筑的对话表现在公园做为主体到庭院的通透性,和建筑做为主体观赏公园的景致。

◎入口庭院

◎景观庭院

◎景观阶梯
序列以外的序列
——空间与流线 TECHNIQUE&METERIAL
在建筑形制、风格的自由之外,建筑的空间是否也可能是自由的?不同的流线提供了多种多样的可能性,也带来了层出不穷的空间感受。站在建筑正前方的广场上,你既可以选择穿过水池直接走进接待大厅,也可以选择沿坡道徐徐向上体验空中花园的感受;从空中的图书馆出来,既可以穿过花园体验上层的样板房,也可以走下曲径通幽的景观楼梯到达下沉的庭院。赋予“人”的活动更多的可能,使建筑本身也生动有趣起来。
◎景观绿坡远观

◎ 宋照方手稿

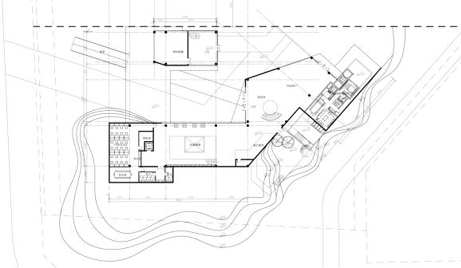
平面功能 PLAN

◎首层平面图









