引言
体量的问题像建筑的结构问题一样,可以用理性的分析得以解决,而空间却需要有生命的力量。
栖于江畔
—— 简介INTROUCTION
景瑞天赋项目位于钱塘江畔,奥体中心中轴之上。设计的生成是中和场地特质、功能需求等多方面因素的综合表达,在场地条件有限的情况下,我们将会所的主体功能置于地下,并设计了多处风格主题不同的下沉庭院,既打破了地下沉闷的空间,又解决了采光难题。地面的设计以整体环境的营造为核心,以人流导入为切入点。真正做到“入则宁静,出则繁华”让人们在喧嚣的闹市中回归自然。
◎ 项目区位图
◎ 总平面图

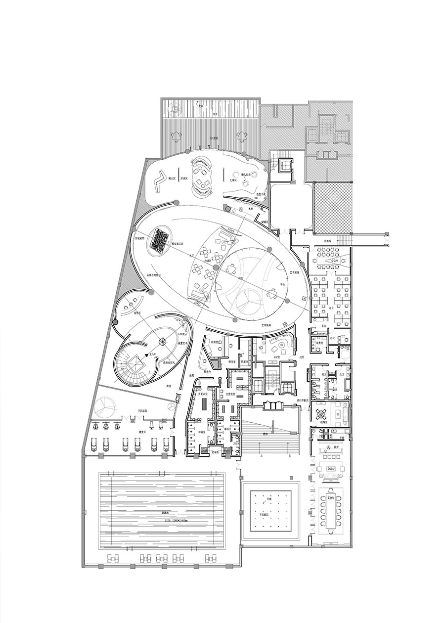
◎ 参观流线
隐于繁市
—— 设计与理念 DESIGN & CONCEPT
老子有云:“有无相生,长短相较,高下相倾”。以此为理,在现有场地局限的条件下,对空间怡人尺度的塑造遵从一种相衬相生的原则,地下空间的封闭与庭院开敞之间,开合有序,相生的对比激发人的意识,秩序的路径引导人的行动,而空间的意义正是在人的意识、行动的参与中所赋予——大隐于市。
◎ 核心景观
建筑主体是位于地下的地景建筑,通过减法设计产生庭院,将室外景观与建筑体积完全融合在一起,地上部分的建筑以纯净的建筑空间和体量回应斑驳的光影。
◎ 接待厅+镜面水景
◎ 接待厅
根于大地
—— 空间与流线 SPACE&FLOW LINE
设计通过地下空间的路径组织将会所作为一个公共客厅的概念进行植入,连接着住宅。作为一个完全开放,既要用于售楼期的销售展示,又需兼具商务洽谈功能的区域,其他功能性场所都是为它来服务的。所以,这个不拘一格的椭圆形庭院式会所也是我们整个设计的最大亮点。会所还设置了泳池,健身房,宴会厅,棋牌室,儿童区等功能区和四个风格不一的主题下沉庭院,利用塔楼下面的空间做成宽阔的大台阶,结合嵌入式立体书架,既能进行趣味阅读,也能成为半室外放映区。整个会所不仅可以满足前期的售楼功能,也能十分灵巧地加以后期改造,成为最为舒适的休闲娱乐之场所。
1、架空下沉庭院A、B间住宅首层,引入架空踏步做法,实现A、B庭院平面和空间两个层面的 相互呼应和渗透
2、地下空间结合下沉庭院A,形成地下展示空间的前序空间,设置示范区营销展示功能空间
3、地下空间结合下沉庭院B,形成地下展示空间的后序空间,设置示范区堂会展示功能空间
4、设计关键点C迎合参观主流线,地面规划设置接待门厅
5、设计关键点D,结合下沉庭院A优化景观设计
◎ 核心庭院
◎ 洽谈区
◎ 接待厅至地下旋转楼梯
◎ 波浪形走道空间
◎ 阶梯式图书馆
◎ 儿童活动区下沉庭院
◎ 泳池
营于匠心
—— 形体与细部 IMAGE
设计对材料元素的运用遵循空间的品性:接待厅主立面上通高玻璃幕墙的轻盈,建筑本身溶于土地的厚重,二者相得益彰使建筑处于“非静止”的状态,更添建筑本身的活力。山墙面以及背立面,采用陶板的渐变拼接,赋予建筑体量以律动。休闲空间运用木材营造温馨舒适的氛围,泳池巧用石材结合水元素营造自然氛围;入口庭院空间利用金属与洞石彰显金玉之气。

◎ 入口大门实景



◎ 塔楼架空空间

◎ 入口细节景观
技术图纸
——TECHNICAL DRAWING

◎ 手绘总平面图
◎ 地下会所平面图
◎ 主立面图
◎ 西立面图
◎ 侧立面图及节点图
结束语
——CONCLUSION
在整个示范区建筑、展示空间及特色架空层、地下堂会设计的设计过程中,我们完成了对空间的把控、动线的组织、去建筑化,建筑、室内、景观的打开再融合的一次大胆尝试。形成三位一体式的空间联系,设计出一条具有丰富场景体验感的参观流线,实现了空间与自由曲线碰撞后的绽放。
整个展示区从2016年6月初开始参与设计,通过甲乙双方各个专业的共同努力,在2017年的5月底得以完美呈现,并且在景瑞集团的示范区评选中获得了“最佳示范区奖”。
以下内容摘自景瑞微信公众号
------ 最 佳 示 范 区 ------
杭州景瑞天赋
为进一步提升景瑞地产各项目示范区的打造能力和展示水准,树立标杆效应,从而升级景瑞集团产品力、品牌度,地产总部运营管理中心、市场研发及品牌管理中心和客户服务部联合开展评选工作,特针对宁波海志府、苏州无双、杭州天赋三大标杆项目示范区进行评价和量化打分,从示范区策划、建筑效果、景观效果、室内效果、销售案场和客户服务6大维度综合考量、广泛讨论,最终杭州天赋技高一筹、脱颖而出。























