——引言
建筑设计侧重于现代性,融入了轻奢理念。建筑空间整体格局上讲究起承转合的气韵变化,打造出一个“传统空间现代演译的社区中心”。禅味萦然,心境悠然。
起承围收
——简介 INTRODUCTION
本案位于西安,中国西北地区中心城市,一座世界级历史名城。异于传统的仿古建筑,本案设计更为侧重现代性,融入了轻奢理念。建筑空间整体格局上讲究起承转合的气韵变化,打造出一个“传统空间现代演译的示范区”。半室外的檐下墨道,加之大面积水院,隔水对望,在室内百叶的光影摇曳中营造出静思的空间氛围。禅味萦然,心境悠然。


起要平直
承要舂容
转要变化
合要渊水

檐上黄昏,烟雨清韵
虚实开合,浑然一体
——空间与流线 SPACE&FLOW LINE
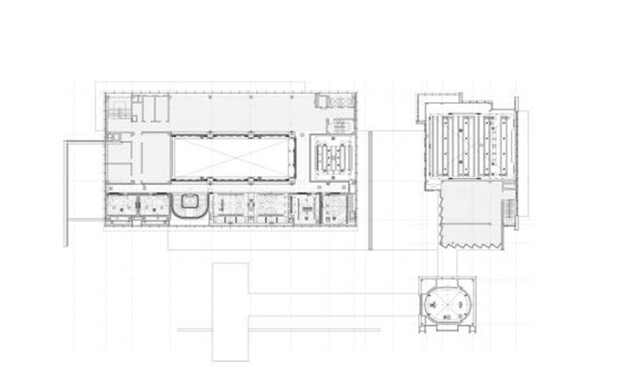
建筑主体由四栋高低错落的主楼围合而成,中央庭院以水景为主。水院以东一字排开一系列展览空间,囊括了即将销售的主力产品。整个空间布局大开大合,气脉通贯,首尾相连。



门厅的精细化设计是本案的一大亮点。入口采用拉丝辅以镜面铜质面,精致大气。两侧简洁内敛的景墙暗示着进入主院之后即将展开的空间序列。墙面和吊顶的设计为穿孔铝面,辅以暖调灯光的烘托,倒影在水面上,整个空间使人仿若夜坠璀璨星河。

穿过门厅,空间突然被戏剧性放大,宽阔的镜面水池充盈视野,与长廊尽头耸立的过厅对望。

镜面水的特质放大了院落的空间,风过掀起的涟漪让影像还实为虚,却也正是水院的迷人之处。飞檐廊道倒影深深,灯火阑珊中,宛若水中的亭台楼榭。

假山真水中 ... 如古人道,蕉窗静望瓦上坚,一蓑烟雨落檐边。
刚柔相济,舒卷自如
——手法与材料 TECHNIQUE&MATERIAL
建筑主体采用框架结构,立面主要由玻璃幕墙,金属幕墙,辅之石材幕墙相互结合而成。


平面功能PLAN









