
德清山居生活馆
Deqing Living House
中国,浙江
Zhejiang, China
周边环境
_
本案坐落于德清县东南侧国家4A级风景区塔山森林公园内,地理位置优越,距杭州30分钟车程,距莫干山20分钟车程,距下渚湖湿地10分钟车程。坐拥极佳的自然景观优势,以及良好的区位——承接主城外溢。区域认知度较高,后续发展空间较为瞩目。


项目选址
_
造园讲究依山傍水,因地制宜。本案得天独厚的地理位置优势,促成了青山之中幽幽一园的浑然天成。背靠青山,面朝流水,待清晨山中雾气氤氲时,仙境佳园便蒸腾而出。

本案原址为山中一座古寺,寺旁伫立两株香樟。为延续古寺之风度,便有意在此基础上营造玲珑小园,承袭江南风情,且守护古树香樟。此地青山密林三面环绕,潺潺溪流引人入胜。隐于自然的怀抱中,又不失入世的便捷,可谓“结庐在人境,而无车马喧。”


◎宋照青 手稿
本案原址为山中一座古寺,寺旁伫立两株香樟。为延续古寺之风度,便有意在此基础上营造玲珑小园,承袭江南风情,且守护古树香樟。此地青山密林三面环绕,潺潺溪流引人入胜。隐于自然的怀抱中,又不失入世的便捷,可谓“结庐在人境,而无车马喧。”

建筑概念
_
此园作为进入莫干山语城的入口,即为“归园田居”的序章,有起承转合之功用。如何在有限的空间里完整地造园,并传达出江南山居的意境,是本案的重点。依循古制,园内建筑采用中轴对称的布局,遵从客行流线分为三进院落。


起由竹荫花影漫道,经流水青石板桥,行至落客区,此为一进,承也;停车驻足,步入院中,映入眼帘皆是粉墙黛瓦,绿蔓漏窗,竹篱苍松,一步一景,主次分明,此为二进,转也;金铜色门扇缓缓开启,拾级而上,登堂入室后便可见中心庭院,周正开阔,远山尽现,此为三进,合也。

围合出中心庭院的三栋主体建筑,分布于东,北,西侧。依照古建筑的营造等级,分为东侧的云薄亭,西侧的天清轩(取自杜甫《重过何氏五首》其二:“云薄翠微寺,天清皇子陂。”),北侧的啜茗堂(取自杜甫《重过何氏五首》其三:“落日平台上,春风啜茗时。”),以及起连接作用的廊。

根据建筑形制,屋顶的造型也各有对应。“亭者,停也,人所停集也。”作为主庭院的入口,于云薄亭中,可将园中景色尽收眼底。故采用歇山顶来强调其作为门户的重要性。
“轩举高敞”,天清轩中空间畅阔,气息流通,便于赏景,是园中点睛之笔。作为本园出口,则采用了等级仅次于歇山顶的悬山顶。“周人明堂”,位于中轴线上的啜茗堂是园中的主体建筑,为接待、洽谈、会客的主要场所,屋顶采用改良后的重檐形制。

因主厅堂须开阔明亮,故将歇山顶上部的悬山顶抬起,与下部的庑殿顶脱离出一段空间作为天窗,山花也采用高透玻璃而非实体屋面,最大化采光,从而使室内外空间交融共生。同时也区别于云薄亭的歇山顶,主次等级一眼可辨。


为呈现江南园林屋檐堆叠的错落感,同时兼顾各建筑的主次等级,啜茗堂的檐口高度设定为3.3米,云薄亭及天清轩檐口高度则为3米,穿插其中的连廊檐口高度为2.3米,如此使得各屋顶层叠有序,如远处山峦起伏,空间感丰富。


结构设计
_

◎佛光寺大殿——隋唐木构经典

◎啜茗堂——精巧结构设计营造中式空间体验
山中建筑,宜低不宜高,宜隐不宜显,宜麓不宜顶。由此我们简化了各建筑的结构,仅使用梁、柱和檩条,舍去了层叠的斗拱和繁杂的雕花,并使其裸露于吊顶之外。
结构创意灵感来源于中式传统木构设计, 取其穿梁搭接体系之精髓,利用结构创新设计将中式传统空间的重檐营造、深远挑檐、轻巧构造以及通透自由的空间予以充分的表现。

◎结构及屋顶构成
同时,工字钢型金属柱头,更加体现了“久在樊笼里,复得返自然”的朴拙之感。
依循古代建筑营造等级,啜茗堂面阔三个开间,属民居形制,故柱上横梁采用南方地区民居特有的“月梁”,其梁的两端呈弧形,而梁的中段微微上拱,整体形象弯曲得近似新月,又似横亘室内的飞虹。室内吊顶也随之微微拱起,使竖向空间更为高耸通透。

◎啜茗堂剖面图
空间节点
_
云薄亭和天清轩作为本园出入口,与南北两侧游廊相接,构成雨天客行动线。南侧游廊在以廊庑为原型的基础上,改墙檐为实顶,既遮蔽了围墙外侧的地库车道入口,又构成了作为游廊的灰空间。北侧东西两处连廊则经由云薄亭和天清轩,通往本园的主要空间啜茗堂。

啜茗堂依据地势,分为地上地下两个空间。一层通高空间为接待,会客区。从西侧旋转楼梯盘桓而下至负一层,便是展陈,洽谈,品茗,健身,游泳等功能空间。东侧洽谈区临河道,地势较低,遂顺势叠石引水,促成一景。居于室内,可见林木荇藻,山涧徐流。

“园中求色,不能以实求之。北国园林,以翠松朱廊衬以蓝天白云,以有色胜;江南园林,小阁临流,粉墙低亚,得万千形象之变。白本非色,而色自生;池水无色,而色最丰。色中求色,不如无色中求色;故园林当于无景中求景,无声处求声,动中求动,不如静中求动。景中有景,园林之大镜,大池也,皆于无景中得之。”(《说园》——陈从周)
小园布景宜精宜引,不宜泄。故环立楼廊墙垣以蔽之,再藉由玻璃砖及漏窗以引之。于此园造景,需移步易景。由二进院落起,便以白石子铺地,取白雪皑皑之境意。再以三两寸石点缀,衬托苍松于方寸之间。经云薄亭穿堂而过,主庭院内只于北侧啜茗堂外对立两株乌桕,“中无杂树,芳草鲜美。”
南侧游廊下辟出一池清水,衬以葱葱翠竹作其对景,此外再无繁缛杂饰,只可见“梨花院落溶溶月,柳絮池塘淡淡风。”

细部&材料控制
_
本案旨在传达“归园田”的生活方式,以淡青,皓白,木色打底,黛灰色压顶来打造本真质感。其色分别对应山水草木,白砂岩墙面,木结构吊顶,以及钛锌板屋顶。


淡青色不仅限于植被表象,更见于建筑门窗的倒映。身处庭院放眼望去,啜茗堂掩映于树影斑驳,目之所及,尽是青葱。
周边围墙作为承托,不宜跳脱,故采用土耳其白砂岩,其暖白色不至于使整体基调过于清冷,自身的石材机理又有卷轴宣纸质感,承载园中的水墨丹青。门窗框架所用的香槟金色铝合金型材和同色系的木纹铝板吊顶,中和了深灰色钛锌板屋顶的压抑感。

为实现设计中屋顶要极致的轻盈这一要求,屋面及檐口节点的细节设计就成了设计重点,在屋面采用矮立边的T型锁边系统的基础上,我们在屋面靠近檐口的位置进行了构造节点创新,放弃了传统T型锁边的做法,先将檐口端部的锐角造型用镀锌钢板做基层板控制造型角度,同时镀锌钢板要在尖角部位倒角弯折,留出锐角转角空间,再把钛锌板平铺于基层造型之上,利用材料厚度小的特点,将锐角直接折出。这样就保证了檐口端部可以尽可能的收紧为一条直线,从侧面看屋顶似没有厚度。

◎檐口收边及屋面锁边做法细节
吊顶与屋面的材料转换处留出空隙放置灯带,勾勒出屋顶轮廓。同时,啜茗堂的幕墙立挺内设置凹槽嵌入灯带,与屋顶的灯光交相辉映,在夜晚呈现出光影的韵律美。

室内同样采用原木色基调,配以白色吊顶,呈现纯净质朴的舒适感。梁柱上的凹槽设计,是为露出原本的钢结构骨架,黛青色与木色相配,雅淡而不流寒酸。
同时,条条沟壑也强调了梁柱的结构之美。上细下粗的柱身通过工字钢型柱头托起月梁,展现出力学的平衡感。

结语
_
“落日绣帘卷,亭下水连空。知君为我,新作窗户湿青红。长记平山堂上,欹枕江南烟雨,杳杳没孤鸿。认得醉翁语,山色有无中。
一千顷,都镜净,倒碧峰。忽然浪起,掀舞一叶白头翁。堪笑兰台公子,未解庄生天籁,刚道有雌雄。一点浩然气,千里快哉风。”(《水调歌头·黄州快哉亭赠张偓佺》——苏轼)

技术图纸
_

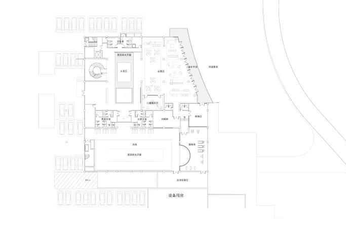
◎一层平面图

◎负一层平面图
工程档案
项目名称丨中国铁建滨江•莫干山语
项目位置丨浙江•德清•莫干山东麓依山路南侧
业主单位丨中国铁建地产 滨江房产
建筑设计丨上海日清建筑设计有限公司
设计总负责丨宋照青
项目经理丨陈凌峰
设计团队丨 郭丹 石哲宇 王翀
幕墙设计顾问丨浙江中南建设集团有限公司技术中心设计三所
室内设计丨矩阵纵横设计有限公司
景观设计丨朱育帆工作室
建筑面积丨1620㎡
设计周期丨2018.06-2018.12
竣工时间丨2019.07
建筑摄影丨是然建筑摄影





