【岸】
翩若惊鸿 诗意观澜


和昌海云曦岸展示区位于青岛市黄岛区,距离黄金海岸线不到百米的位置。这里每年5-10月份为旅游季,游客如织。
建筑师将建筑以错动的白色轻盈形体呼应海岸主题。利用最大海景展开面吸纳游人。从场地西南角鲸鱼主题广场开始的整个展示区浏览动线,途径线性公园带直至建筑主体。

—— 景观序列与建筑主体的关系仿佛一笔写成,翩若惊鸿。

—— 建筑主体之白色错动形体,与斜对面白色螺旋形体的规划展览馆既有呼应又有对比。
【雲】
云端漫步 海天一色

◎三层露台眺望远处的海天一色

通过前期无人机模拟确认适宜观海高度后,建筑师利用场地抬高、将主功能区通过垂直电梯直接引入三层的方式让人一举达到25米的观海最佳视野。此时可以体验到完全水平展开的落地窗呈现出的海天一色动人画卷。

在相对狭长的用地约束下,建筑师只得在有限的空间内做减法,通过形体错动、灰空间、悬挑、露台、立面虚实处理等方式营造形体变化。
退台、灰空间以及悬挑之势,若石头之“重“;切片感的立面层板及栏杆处理,又如羽毛之“轻”。


自由的徜徉于错动的露台之间,眺望远处的海岸线,体会如同漫步云端之感。正符合“寄蜉蝣于天地,渺沧海之一粟”的古人境界。
【海】
流动的立面

建筑师通过纯玻璃肋幕墙及栏杆弱化结构,通过立面拗口处与形体底面的黑色镜面不锈钢强化形体暗部视觉关系,以达到最终流动的立面状态。

—— 所有的立面元素均通过适宜铝板特质的弧面圆角处理及类正弦曲线倒角处理构成。


二楼的楼板连接悬挑而出形成尺度巨大的入口灰空间。为打造入口重要的视觉引导,建筑师在灰空间下通过类参数化的标准节点设计了一个个曲线倒角的黑色金属肋。
白天阳光透过顶部的穿孔板洒下地面形成类似波光粼粼的效果,夜晚则通过藏于每片金属肋中的线条灯形成水波荡漾的视觉效果。

◎入口超大雨棚灰空间下的曲线金属肋造型
【曦】
星汉灿烂 若出其里


为兼顾白色铝板包裹的建筑立面部分呈现的实体感,又不完全造成光线上的遮蔽。
建筑师设计了单元式的标准渐变穿孔板模块。并且内置亮化设备。因此不论建筑内外、不论白天、夜晚,建筑都将呈现出闪闪星光的细节之感。正所谓“日月之行,若出其中,星汉灿烂,若出其里”。


◎立面弧度造型及渐变穿孔铝板细节

◎渐变穿孔铝板标准单元大样图
技术图纸
_

◎屋顶平面图

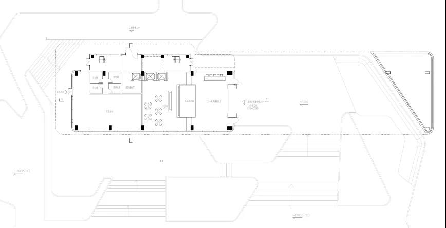
◎一层平面图

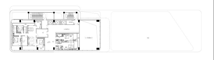
◎二层平面图

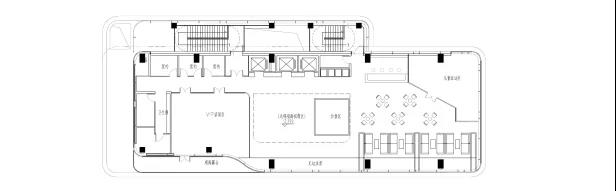
◎三层平面图

◎东立面图

◎西立面图

◎北立面图


◎剖面图
工程档案
项目名称丨青岛·和昌海云曦岸
项目位置丨青岛·黄岛区
业主单位丨青岛青昌投资开发有限公司
建筑设计丨上海日清建筑设计有限公司
设计总负责丨赵晶鑫
设计团队丨张英琦 曹慧
景观设计丨易兰(北京)规划设计股份有限公司
室内设计丨广州东喻室内装饰设计有限公司
施工图与幕墙设计丨青岛腾远设计事务所有限公司
建筑面积丨1540 m²
竣工时间丨2019.10
建筑摄影丨行知影像





