
正荣·紫阙台品牌文化展示馆
Zheng Rong Zique Tai Cultural Exhibition Hall
中国,陕西
ShanXi,China
“ 建筑的目的在于感动我们。当作品借着服从、体会和尊重宇宙法则将我们环抱时,建筑情感便存在其中。”
——《迈向新建筑》勒·柯布西耶 Le Corbusier


©行知影像
“场所”在某种意义上,是一个人一种物质化和空间化的空间记忆。也就是城市学家所谓的“sense of place”也可以理解为“对一个地方的认同感和归属感”。
在此次文化展示馆的设计中我们就通过对参观者的消费心理引导以及对各个空间感受进行串联并以现代建筑设计手法提炼元素再发现-再定义-再呈现为主旨,通过光影变化,不同空间的转换,来打造一场宫殿园林式的体验之旅。
造型构思
_

◎体块分析图
西安古以八水绕长安、远望宫殿巍峨为傲。设计以虚实为引,浮光为启,开篇立意,古为今用,从最朴真的建筑关系,做一次有文化传递意义的回归。

◎手绘稿

本案中通过以浮光、静水、归荫三个不同的主题空间来模拟古代宫殿一种层层递进的序列空间并串联起一套完整的参观流线并带给消费者从视觉、听觉、嗅觉等多方感官的不同体验从而产生对于展示馆的专属空间记忆。

◎主体分析图

◎爆炸分析图
光之庭院
_

本案中的浮光廊道正对预接待中心,中间用较大的体量作为挑檐,在厚重的体量中运用较为轻质的材质营造斑斓的光影,同时辅以水流声、气味创造一个有温度的入口空间。

©行知影像
水之庭院
_


◎展示区立面细节及材料展示图
在入口处我们特意打造了一条盘环向上爬升的步道,围绕着弧形的水面缓缓向上,在通过步道的过程中经由开阔的水面,人们可以借由水中的倒影,完整的看到整个建筑的立面,增强了整体观感,静静地水面上盘旋上升着一条白色的步道,如同漂浮在空中的小路,为这个室外空间增添了些许诗意与缥缈。

◎流线分析图

©行知影像
松之庭院
_


©行知影像
穿过展示区后,通过二层的廊道可以由电梯下至地下一层,来到最后的庭院:归荫庭院,水中浮着三个绿岛,几棵树互相点缀,形成一个大尺度的盆景,渲染具有禅意的空间氛围。
立面元素
_

竹简,战国至魏晋时代的书写材料。建筑立面墙面采用玻璃幕墙,外表皮为干挂穿孔铝板,力图用现代的材料向传统文化致敬。


◎浮光廊道立面细节及材料展示图

©行知影像
情感呈现
_
◎施工过程
向左滑动查看更多←

入夜,池水变得安静,灯火起,温暖平和,灯光在大地上徐徐散开,建筑以舒展欢迎的姿态展现。


©西安星上悦动网络传媒有限公司
技术图纸
_

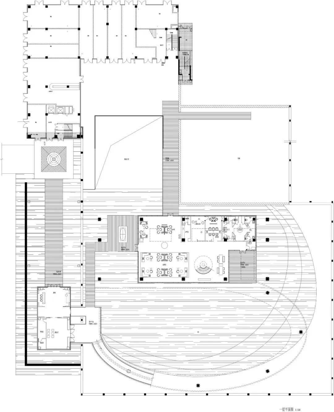
◎一层平面图

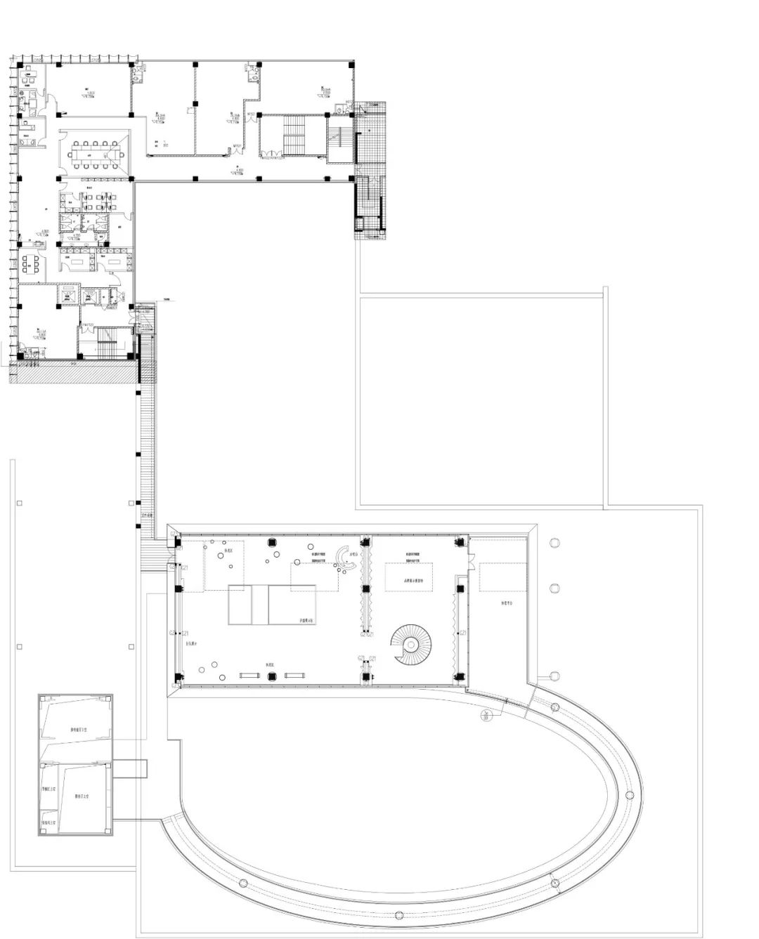
◎二层平面图

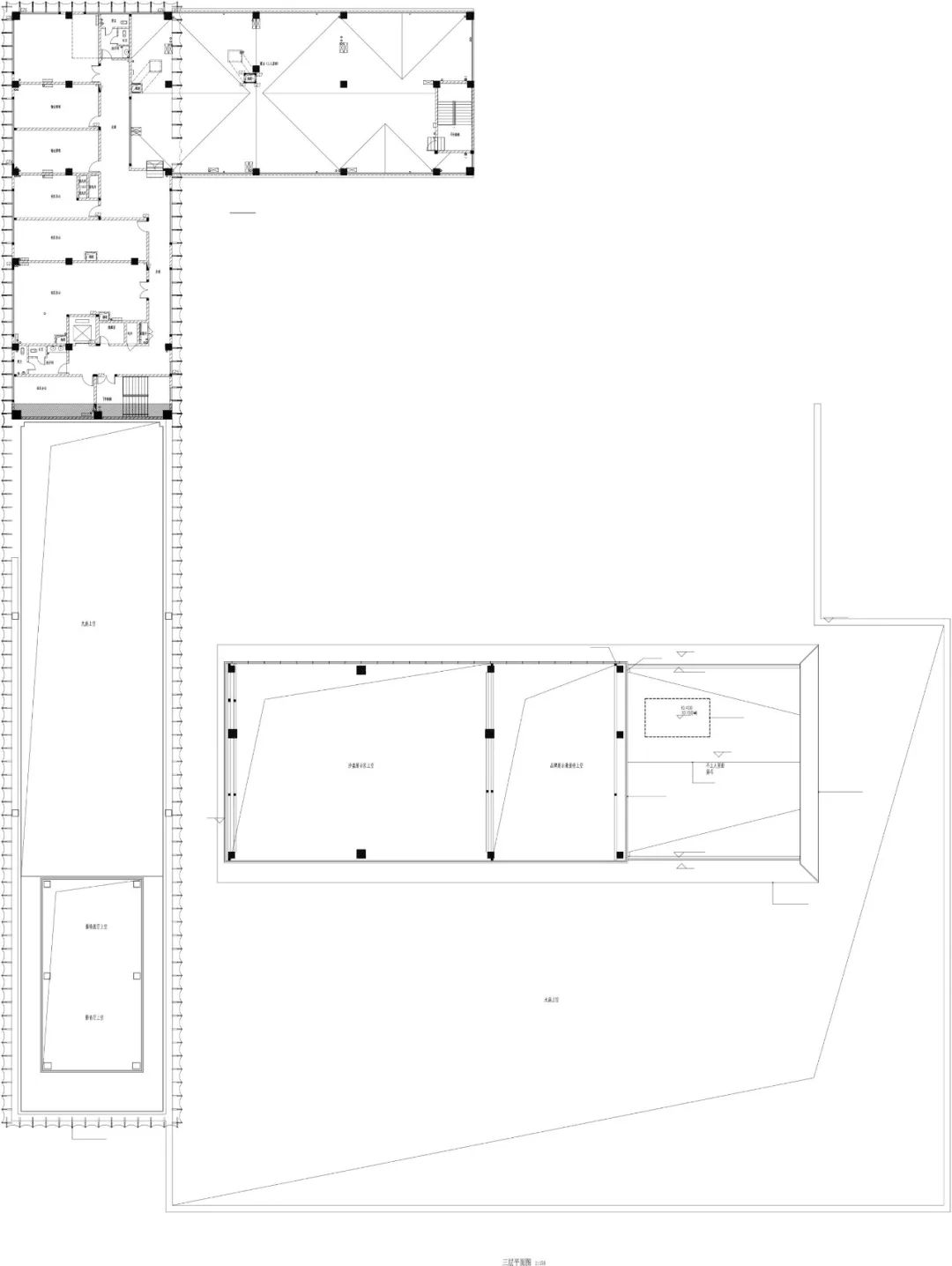
◎三层平面图

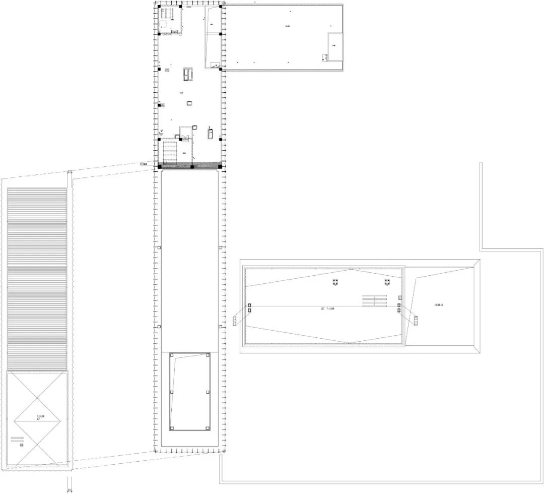
◎屋顶层平面图


◎立面图
工程档案
项目名称|正荣·紫阙台品牌文化展示馆
项目位置|西安·曲江大明宫板块
业主单位|正荣集团西安区域公司
建筑设计|上海日清建筑设计有限公司
设计总负责|任治国
设计团队|宋皓 杨超 陈天书 张家榕 金国平
景观设计|上海日清景观设计有限公司
室内设计|深圳市矩阵室内装饰设计有限公司 上海汉敦建筑装饰设计工程公司
建筑面积|1420㎡
竣工时间|2019.10
建筑摄影 | 行知影像








