
天津融创星耀五洲
Tianjin Word of Sunac
中国,天津
Tianjin, China
	
	
美到极致天嘉湖
“优越的区位”
_
	
星耀五洲旅游度假区位于天津市津南区,以9平方公里天嘉湖为依托,是一个集度假、购物、居住、文化、游乐于一体的水上文旅微型城市,整个片区用地面积763万平方米,建筑面积300万平方米。
	
此次改造的建筑为整个片区的接待中心,地上建筑面积约18000平方米,除基本的接待功能外,还包括一间48间客房酒店及办公空间。
	

©行知影像
	
	
遗落破败的风情
“改造前现状 ”
_
	
改造之前为一栋三层的偏度假风情的古典风格建筑,建筑形态关系较为复杂,然而通过三个内庭院串联起来的空间关系却有着相对丰富的节奏。建筑原有结构为混凝土结构,外墙多为窗墙体系,除大面的涂料外局部有石材及玻璃幕墙。
	

改造前
	
改造前的星耀五洲处于停用状态,建筑已经显得很破旧,外墙保温脱落,杂草丛生,接待中心的改造被寄予希望用来提升片区的活力,并作为片区建筑景观室内一体化卓越品质的一个象征。
	



星耀五洲原状
	
	
从基本功能出发
“改造的策略 ”
_
	
由于需要考虑整个建筑改造前后面积的一致,改造策略方向是基于功能的轻改造。首先方案中保留了建筑原有的三个中庭,以中庭为中心点,在流线组织上通过空间的整合达到稳中有变的空间体验,室内外空间交叉串联,门厅、展厅、书吧、休息区、体验区等各功能块形成一个环形闭合流线。
	
酒店及办公空间分别布置在接待空间的两侧,两层接待空间的屋面去掉了原有多余的构筑物,为酒店和办公提供了更多的室外活动空间。
	



©行知影像 改造后
	
从东边的广场看过来,首先会看到一个36m宽15m高的玻璃盒子,白天高反射的玻璃面倒映着清晨到傍晚的天气变化,晚上这个盒子则成了一个发光体。
	
主入口为了突出整个入口形象,采用的则是玻璃幕墙后衬不锈钢格栅的做法,不锈钢格栅单元是一个內折的丫字型,左右两个单元上下倒置安装,呈现出精巧窗花的韵味。
	


©行知影像
	
盒子的底层内凹形成了建筑的主出入口,同时往里拉升的雨棚增强了入口的仪式感,雨棚的吊顶采用了纸纹亚克力,夜晚灯光透出来,跟建筑形成了一个整体。
	
入口进来是三层通高的接待门厅,经过门厅可以往前通过品牌展示区到达展厅,也可以往右经过会客厅到达体验区。展厅是一个直径达24m带着古典韵味的两层通高的大空间,一圈还有6m宽的回廊,穿过回廊再往前就是后花园。
	

©行知影像
	
从前广场到门厅、品牌区展厅和后花园,形成了一道仪式感极强的收分有致的空间节奏。
	

©行知影像
	
从展厅外圈的回廊还可以过渡到酒店、洽谈区、影音区、体验区等,过渡的路径都是由庭院来组织,可以说,展厅是整个建筑的中心。
	
	
富有韵律的节奏
“立面的秩序 ”
_
	


©行知影像
	
建筑原有的立面多为无序的横向条形窗,室内的采光通风都很差,改造中先把所有的外墙及窗都做了拆除,但是主体结构得到了保留并加固。
	

©行知影像
	
建筑立面的节奏首先是体量关系的节奏,每个体块根据功能分配了不同的立面处理方式,并充分考虑了节能要求,不锈钢格栅幕墙,铝板幕墙,玻璃幕墙,石材幕墙,这几种幕墙形式穿插搭接,减弱了整个建筑巨大的体量感,使得更有人情味。
	

©北侧沿街体量关系 黄礼刚
	
比如酒店和办公区域在保证客房以及办公空间采光充足的前提下,都采用单元窗形式,一个个方窗与铝板形成内凹关系,同时窗的一个边斜切到铝板完成面,窗与窗上下斜面错开,加上竖向灯带的形成了错落有致的韵律感及阴影关系。
	


©内庭院 黄礼刚
	
	
夜色点缀的温柔
“灯光的运用 ”
_
	
可以说光赋予了一座建筑的存在,包括自然光、室内灯光、建筑装饰灯光等。
	
在改造方案中充分利用了建筑原有的庭院,为了将庭院景观最大程度地引入室内,一层沿庭院一圈用了落地玻璃或者中轴旋转门,当中轴旋转门打开来,室内外空间及光线融合了在一起。
	


©行知影像
	
门厅及展厅采用的是玻璃幕墙,以保证充足的光线,内层再通过格栅或者穿孔板处理使得光线更柔和均匀。可以说阴影的存在是对光的表达,白天太阳打下来,立面上相对铝板面内凹的方窗也好,不锈钢格栅也好,都留下了时刻变化的丰富而细腻的阴影。
	

©行知影像
	
到了夜晚,除了室内灯光从夜色中泛出来,建筑立面上还布有错落有致的竖向灯带,主入口门厅则整个盒子都透亮了起来。
	

©主入口幕墙与雨棚和水景的关系 行知影像
	
	
细致组织的表皮
“材料与节点 ”
_
	
在材料的选择中,除了常规的铝板和石材,还采用了不锈钢和U型玻璃,不锈钢用在门头玻璃内衬位置,而U型玻璃则用在内庭院,使得庭院更细腻的更有人情味。
	
建筑的节点充分考虑了材料特性的表达以及施工的完成度,除了每种材料自身幕墙体系的节点收口以外,玻璃和铝板以及石材之间的交接也都通过型材来过渡,使得整个建筑的视觉尺度更小更细腻。
	


©行知影像
	
石材选用的是有着自然纹路的米白色砂岩,全部采用开放式干挂系统,石材的拼接有3mm、8mm以及15mm三种缝宽,大面上去以后不同缝宽的拼接组织呈现出富有韵律的划分。
	

©行知影像
	
为了跟整个片区的色调一致,铝板选用的是温和的浅香槟色,铝板的划分做到尽可能的大,宽度最大尺寸有2m,长度则达4.8m,尺寸过大带来的可能不平整的问题通过铝板背面做加强筋来处理。
	


节点分析
	
不锈钢格栅施工是外立面中最复杂的一个环节,每一个格栅单元在工厂先是工人一根根焊接打磨镀色,然后运到现场跟发光板以及玻璃组合安装,格栅整个边框跟T型钢的两翼结合固定,这样边框就隐藏了起来。
	


©行知影像
	
	
从外到内延续的格调
“室内设计 ”
_
	

	
整个接待中心除了基本的接待功能外,还包含了酒店,办公,会议等功能,在平面的设计中各个功能块采用了明确分区的同时又呈现出灵活多变的组织方式。
	


	
室内的设计方案同样延续了建筑外在的整体格调,色调淡雅淡雅却不失活力,精致讲究的收边呼应了建筑的外立面细节逻辑,使得建筑室内呈现一体化。
	

	
	
	
高完成度的呈现
“设计的重点 ”
_
	
在地产的项目中,建筑完成度的要求越来越高,然而成本控制、工人参差不齐的施工水准以及快节奏下的赶工使得这成为了一个难题。
	
相比所谓的理念、基本的空间节奏以及立面构成的推敲,星耀五洲接待中心的设计过程更多的是对完成度的控制,过程中并没有坚持建筑师惯性的“纯粹”追求,而是在“纯粹”的基础上通过更多的精致收边收口来避免工人的随意导致的施工粗糙,这样就带来了所谓的“轻装饰主义”,装饰并不是目的而是成为了一种手段。
	
星耀五洲接待中心在建成后以一种典雅细腻的姿态呈现在天嘉湖畔,当夜幕降临,灯光开启,主入口的体量宛如一轮方形的月亮,照耀整个片区。
	

	
	
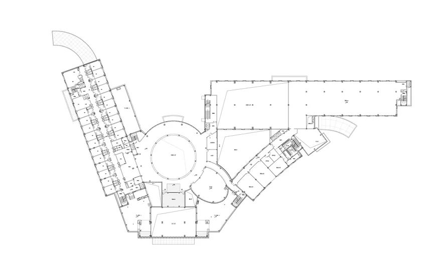
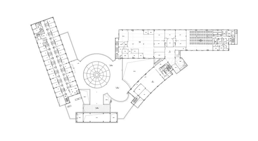
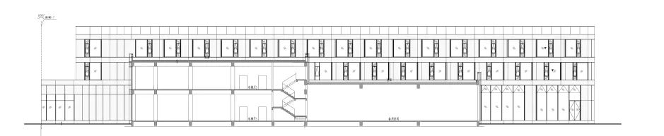
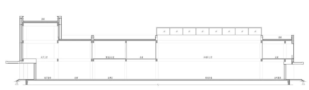
技术图纸
_

◎一层平面图

◎二层平面图
	

◎三层平面图
	

◎接待门厅沿街立面图
	

◎办公区西立面图
	

◎酒店沿街立面图
	

	

	

◎剖面图
	
	
	
工程档案
项目名称丨天津融创星耀五洲
项目位置丨天津市津南区八里台镇天嘉湖大道
业主单位丨融创华北区域集团
业主团队丨融创中国华北区域产品研发中心 天津公司研发平台 星耀五洲项目团队
建筑设计丨上海日清建筑设计有限公司
设计总负责丨任治国
设计团队丨黄筛华 卢冉冉 谢萌
设计时间丨2017.5-2017.11
竣工时间丨2018.10
建筑面积丨17887㎡(地上)10170㎡(地下)
室内摄影丨菲林文化
建筑摄影丨行知影像





