
建业·蓝海郑风酒店综合体
JianYe·LanHai ZhengFeng Hotel
中国,郑州
Zhengzhou,China
◎建业·蓝海郑风酒店综合体
“直与曲,方与圆,明与暗,明确与暧昧,被界定与未定义……这些都像极了人与人的关系,这太有趣了。”
方圆之间是宇宙。悄悄的,我们唱完了一首时空礼赞。
——建筑师自述

◎建筑主立面
方圆之间 遇见艺术
“ PREFACE ”
_

◎体块分析
我不想画一幅画,我想打开空间,创造一个新的维度,将它与无限伸展的宇宙相连……
我希望直曲在此相遇、方圆在此转化、时空在此交融、万物在此共生……

◎建筑中庭
场地
“ LOCATION ”
_
本案所在区位为河南未来陆空交通枢纽地带,属城市未来规划南拓之核心所在,同时承载了传承传统中原之文化与新兴豫州之未来的双重使命。
故我们以描绘古郑国人文风貌、诗经中十五国风之一的“郑风”为名,取“为中原造出一片蓝海”为意,赋其名曰“蓝海郑风”。

◎场地鸟瞰 - 建筑以弧线接纳园林

◎屋顶鸟瞰 - 园林与建筑的正格秩序
■ 筑城/Build City
项目总占地3547亩,以“自成一城”的气势跳出了现有格局。在前期规划设计中,我们借鉴了《周礼·考工记》中“匠人营国,方九里,旁三门。国中九经九纬,经涂九轨。”和“南园北苑,前朝后市”的中国传统城市营造手法,同时融入本土中原文化符号,试图引古论今,从城市层面打造属于郑州的“国风城市桃花源”。

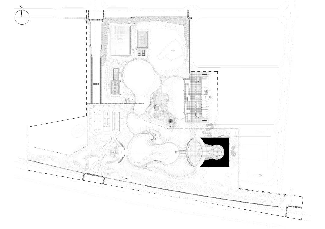
◎总平面图

◎爆炸图
■ 造园/Build Garden
“我国古代造园者,大都以建筑开路。沈元禄记猗园谓:‘奠一园之体势者,莫如堂。’盖园以建筑为主,树石为辅,树石为建筑物之连缀物也。”
——陈从周《续说园》

◎ 四方上下曰宇,古往今来曰宙
本案中的酒店在园区的重要地位可与中国古典园林中的厅堂在园林中的位置相比拟。计成在《园冶》中提出:“凡园圃立基,定厅堂为主。”并对“堂”赋以定义:“堂者,当也。谓正向向阳之屋,以取堂堂高显之义。”

◎将园林建筑与酒店所处位置进行类比
整个大区以“南园北苑”为整体造园规划逻辑。而在“南园”中,我们引入中国古园林造园思路“以建筑开路”——将最重要的建筑作为整个序列的起点,其以一种开放的姿态面向城市,成为城市级别的公共客厅。
建筑正面更是以一道圆弧来呼应接纳前方的主体园林,大有环抱接纳、阴阳相融之势。


◎造园手法中建筑与园林的关系
宇宙
“ UNIVERSE ”
_

◎ 宇,屋边也。宙,舟舆所极覆也

◎建筑前场侧望
在古人的宇宙观里,“宇宙”二字拆解开就是时空。“宇”字脱胎于居住的“屋宇”,《说文》中曰:“宇,屋边也。”“宙”字理解为“由宇中出入”,《说文》中曰“宙,舟舆所极覆也。”
“四方上下曰宇,古往今来曰宙。”应该是古人对宇宙与时空关系最为贴切的概括。

◎天圆如张盖,地方如棋局

◎ 阴阳合德的中庭
先秦两汉时期流行的宇宙模式“盖天说”,将天穹看作覆碗状,把大地看作向四面八方无限延伸的方形基座,方圆迭合成上下两个平面,形成“天圆地方”的格局。

◎时光容器位于穹宇大顶之下
设计希望能体现建筑与中国传统宇宙观的关系,最终提炼出形式上的“三道弧、两个口与一束光”。

◎直曲方圆
■ 三道弧/Three Arcs

◎宇,屋边也
西立面作为建筑的主要展示面,可以概括为由主要的三道弧线构成。其中第一道弧线为寰宇华盖之弧,意为空间。第二道弧为四方五位之弧,意为时间。老子说:“大方无隅。”方在其终极之处,是与圆和谐统一的,这是方与圆在中国哲学上的辩证与统一。
时间和空间已在第一道穹宇之弧和第二道四方之弧之间形成,第三道入口之弧则是整个立面形式序列的中心焦点。

◎大方无隅

◎上奠为宙,下覆为宇
当建筑倒影于水面之上,虚实相间的两道弧线形成了一只眼睛,而通过这只眼睛仿佛望向时间与空间转换的交汇之处。

◎弧的倒影形成的“眼睛”
■ 两个开口/Two Holes
整个建筑有两个开口,一个朝向西侧的花园,另外一个朝向天空。入口引导行人的汇聚,朝向天空给人予仰望与反思。当人由外至内行进,并矗立于此,顷刻间或许能感悟“大方无隅,大音希声,大象无形……”

◎拱桥般的水平拱洞

◎从拱洞底望中庭
建筑内部的圆形空间,取意于中国传统建筑中的“庭”与“院”的概念,又如中国古时的良渚玉琮,内圆外方,中穿圆孔,贯通天地。
庭院连通天地,有别于外部与室内空间,为建筑空间打开了另一个维度,时空在此交融。

◎中庭内有乾坤
■ 一束光/A Beam Of Light
在中国古意中,“光”是被辩证理解的。《潜夫论》中论:“上古之世,太素太时,未有形光。若斯久之,翻然自化,清浊分别,变成阴阳,阴阳有体,实生两仪。”

◎时光倒影

◎中庭侧望
可见,古人辩证的将光理解为光与影,光影即指阴阳。当一束光照入建筑之中,一切有了明暗阴阳对比,光耀与阴翳随着时间的变化在明暗交界之处不停的辗转交融,掠过建筑的每一处空间,让原本唯物的场所因为光影与时间的融入形成了各自阴阳乾坤,有了生命起来。

◎内庭侧望
中庭的正中心摆放着我们原创设计的艺术装置“时光容器”,它置于空间交汇的中心,以三角锥体的呼应圆形内庭,直曲对比,明暗交融,与倒影一起如沙漏般暗示着时光的流逝。

◎时空之眼
内部空间
“ INTERIOR ”
_


◎室内走廊


◎藏书阁
材质
“ MATERIAL ”
_
绘有漂亮泥金化的光亮的涂蜡首饰盒、文几、搁板等,有的看上去花里胡哨、俗恶不堪。假如使这些器物周围的空白充满黑暗,再用一盏灯光或一根烛火代替日光或电灯映照过去,那你看吧,原来花里胡哨的东西就会立刻变得深沉而凝重起来。
方圆之间是宇宙。悄悄的,我们唱完了一首时空礼赞。
——阴翳礼赞

◎傍晚时分漫反射的阴翳之美
在形式设计和材料选择上,我们希望形式有着东方特有的美,故“浑厚”与“蕴藉”便成了与色泽与融入关系对应的关键词。

◎浑厚委婉的侘寂之美
■ 浑 厚/Turbid

◎玖玉般温润的亚光之美
相之于简单直白的美,浑厚的质感更加委婉含蓄。在光泽度方面,我们选用了磨砂陶砖、亚光复合铝塑板与拉丝不锈钢等一系列亚光材质,又根据其之间不同的光泽特性在高度上进行排列组合。

◎压低明度让材料与环境多了一分融合
■ 蕴藉/Implicit
蕴藉,有含蓄、隐而不露的意思,我认为这是东方人特有的、能欣赏的一种高级的美。为了达到应有的蕴藉,“融入”与“消隐”成了我们着重思考的两个关键词。

◎基座隐匿于草木之中
我们希望建筑能尽可能融入所在环境。基座要沉稳有力,有中原深厚磅礴之势,融入大地,为此我们选用暗灰色陶砖与原色拉丝不锈钢组合,配以强调水平关系的立面构图,从色调与韵律两方面尽可能让基座与中原大地遥相辉映。

◎基座隐匿于草木之中




◎制作材料箱进行材料的对比确认
营造
“ CREATE ”
_
■ 陶砖墙/The Bricks Wall
◎向左滑动查看更多陶砖分析图←


◎陶砖分析图
建筑一层分为外部曲直相交的方形砖墙与内部圆筒砖墙,由10万块陶砖组合而成。通过大面积实体错缝拼接与局部渐变镂空的砖墙组合方式,达到纹理渐变效果,其中在转角与窗户交接处分别做了锐角收分处理,让细节更为挺拔。

◎不同陶砖拼接细节
■ 拱形吊顶/The Arched Ceiling

◎拱底吊顶
拱形吊顶的结构系统为空间复合网架系统,不仅作为悬吊下方木纹拱形吊顶的主要幕墙龙骨,同时也是建筑主体受力结构的一部分。
其上方分别承载了建筑内部特色大台阶空间及用于三层大屋顶悬挑的双柱系统,也是整体建筑结构的难点所在。


◎拱底分析图

◎拱形吊顶结构图
■ 悬挑屋顶/The Big Roof

◎通透的二层与悬挑的屋顶融入天境
为了尽可能达到极致的悬挑尺度与轻薄度,我们采用了两种创新结构体系—筒型双柱系统与屋顶复合桁架系统,悬挑达到12米之多,最薄处仅为15公分。屋面选用暗灰蓝色铝镁锰直立锁屋面,在鸟瞰中与天空大地相融。

◎基座隐匿于草木之中
技术图纸
_

◎一层平面图

◎二层平面图

◎三层平面图

◎西立面图

◎南立面图

◎北立面图

◎东立面图



◎剖面图


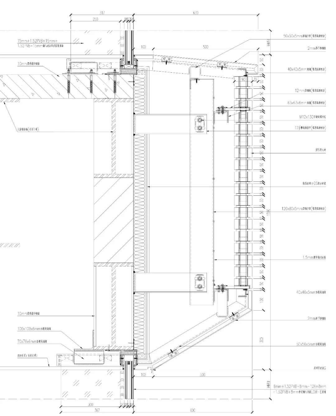
◎节点图









