
仁恒溪云雅园
LAKECITY GARDEN
中国,苏州
Suzhou, China


远观其势,近观其质。设计上也因空间的主题为指导理念,以“虚实”来铺展多维的空间描述。

我们从功能到建筑出发,“虚实”元素作为灵感的起点,并与现代设计手法相结合,将形态几何化。
01.
一“虚”一“实”
以形态对应虚实相生
溪云雅园作为整个地块的社区中心,位于苏州市相城区,建筑场地西北侧面向城市界面,东南侧面向小区。

主立面面向城市街道,塑造鲜明城市形象的同时,与周围的既有环境建立了良好的互动关系。

建筑的基础形态由一 虚 (玻璃)一 实 (石材)两个体块,对体块进行了穿插堆叠,由此形成建筑的基本形态。


深浅石材搭配彩釉玻璃给人以干净,简约,现代的视觉感,形成鲜明对比,亦虚亦实完成了对建筑造型的诠释。



设计过程中,既追求整体与局部的特色对应,虚与实的相生共存,又强调在表象特征之外,以拥抱未来的姿态、鲜明的在地个性、来凸显社区中心的重要性。
02.
虚实相“生”
“虚实穿插 ”铺展多功能空间体验
建筑、景观、室内一体化的设计模式是我们一贯的理念,也贯穿了本项目的设计始终。景观的设计与建筑概念一脉相承,提取立面“虚实”与“斜面”元素,用简洁抽象的形式在这前场不大的空间,发挥的恰到好处。

简单的建筑形体与内部简约的空间形态相辅相成,两者共同构成“一体化”的建筑空间序列。


社区服务与运动会所的主入口设置在北面,首层玻璃体块引导人们进入室内。这种通透的空间,在一定程度上有利于社区中心服务性功能的使用。


打造了空间之间相通又不相互影响的模式,既符合“一体化”的宗旨,又体现了场所精神。

◎体块生成
运动健身作为时下国际化的生活方式,溪云雅园社区中心让现代运动成为可集约管控的生活方式,无论是羽毛球场、健身房等,所有的运动品类皆可在同一空间完成。

我们对生活与健康的审美在发生转变,也因为我们的身边出现了更好的运动承载空间。


人融入进了建筑。这种消隐模糊了内外空间的隔阂,增加了空间的连贯性。人们在这种游园般的流线中享受着空间带给心灵的愉悦。

◎轴测图
03.
细致入微
用细节勾勒别样的虚实关系
立面选择了彩釉玻璃、黑白灰石材及超白玻璃作为建筑外观材料,视觉上对建筑体块形成包裹。石材与玻璃对于外立面的搭配,虚与实都不可或缺,在虚实之间,成就建筑之美。


◎幕墙节点
白色彩釉玻璃横显竖隐,搭配16mm宽白色胶缝(胶缝尺寸根据最小预留宽度),整体效果较好。

各层间的梁、吊顶等,影响彩釉玻璃面的整体效果,控制铝塑背衬板的颜色与距玻璃面的尺寸,可以减少对玻璃面整体性的影响。细节上,横梁上部与室内完成面做到齐平。

黑白灰石材因安装尺寸限制,石材最大面积不建议超过1.5m²,横向密拼2mm搭配竖向开缝10mm适用于“长条竖向跳色”的石材拼贴形式。


◎石材节点
同色石材不适合密拼2mm开缝10mm的搭配形式,建议采用全密拼或者全开缝(施工无法保证保证开缝与密拼的缝隙尺寸)。

技术图纸
_

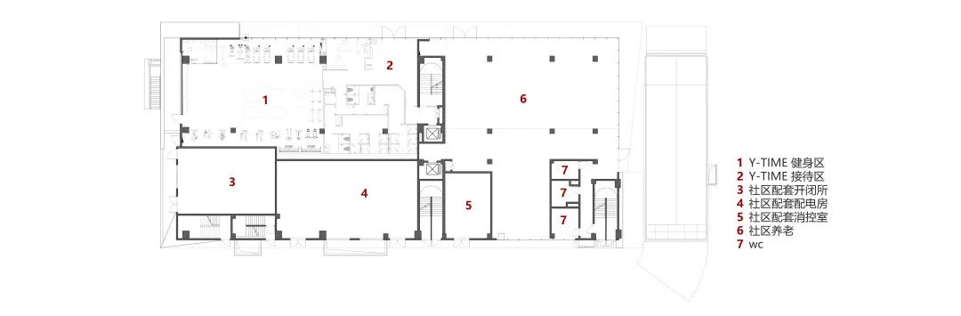
◎一层平面图

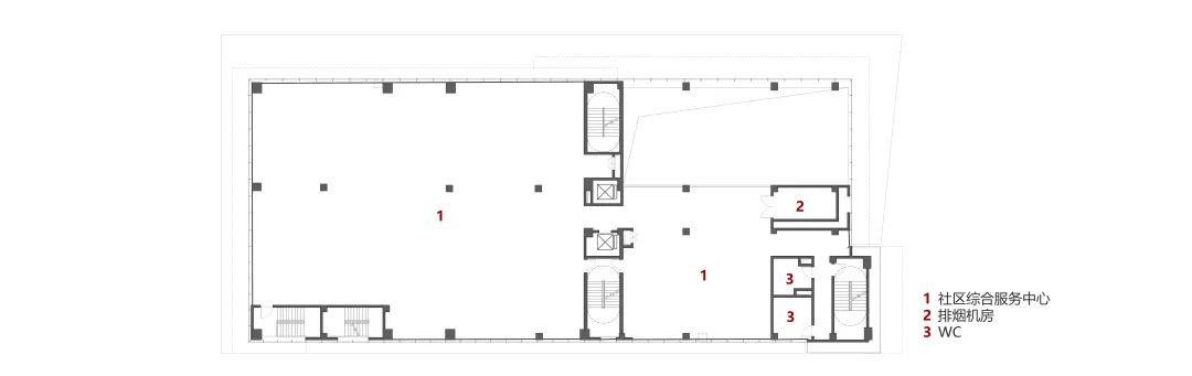
◎二层平面图

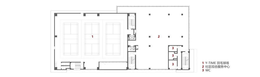
◎三层平面图

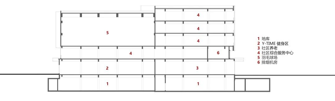
◎剖面图
工程档案
项目名称 | 仁恒溪云雅园
项目位置 | 苏州相城区
业主单位 | 仁恒地产(苏州)有限公司&苏州通和房地产开发有限公司
甲方团队 | 姜宏 陆苑 蔡晟尧
设计单位 | 上海日清建筑设计有限公司
设计总负责 | 岑岭
设计团队 | 黄小卷 阮富威 褚炜 姚凯丽
景观设计 | 上海朗道景观规划设计有限公司
室内设计 | 梁志天室内设计(天津)有限公司
施工图设计 | 苏州城发建筑设计院有限公司
幕墙设计 | 浙江中南建设集团有限公司
施工单位 | 中亿丰建设集团股份有限公司
建筑摄影 | 行知影像
建筑面积 | 5245m²
设计时间 | 2019年9月
竣工时间 | 2020年9月





