
大连湾国际社区展览中心
Dalian Habour International Community Exhibition Center
中国,大连
Dalian, China
过去我认定有无重力的物体存在,
而现在我已经可以确信建筑就是无重力的,是可以漂浮的。
——扎哈·哈迪德

◎夜幕下的漂浮
夜幕降临,建筑看似曾经一度漂浮在较高的海面上,如今海浪渐渐退去,留下洁白的方舟高高漂浮在两座筑基之上,将基地最大程度地还原给自然……
漂浮于独立的风景之中,或许是一种对回归自然的情愫的诠释。
01 漂浮
_
如何对待建筑与场地的关系,成为最初设计思考的起点。初踏地段时,基地给我们留下了深刻印象。基地狭长,南北96米,东西32米,背靠住宅林立的国际社区,面朝未来绿意葱茏的城市公共绿地空间。我们在这里建造的房子,必须对环境敏感且友好,不能在体量与形式上对周边造成压迫感。
我们预设这样的场景,房子犹如一个漂浮在空中的玻璃展品,形成面向城市独特视觉标识,展馆内的活动也成为展示的一部分,吸引人们走进场地,感受设计的叙事,浏览本身也成为展览发生的一部分。

◎建筑与景观这两种“力”共同作用下的产物

◎无形的“海浪”悄然褪去,留下建筑漂浮在开阔的场地之上
02 空间
_
在具体空间手法上,强调人们在“路径”上穿越空间的体验:建筑的抬起、转折、高低错落、场地起伏,刻意营造的“不确定性”暗示着建筑师对“运动”、“时间”、“片段”等多重语汇的策略化运用。
抵达场地的过程并不是平铺直叙,而是经历了落差、转折、惊喜与眼前一亮的过程,这与人类的情感体验似乎不谋而合。

◎漫步体验成为与场地对话的途径

◎形体生成分析

◎《锚固》描述:“建筑,作为一个(不可移动的)构筑体,受限于场所体验,通过与场所相融合并将场所精神凝聚,建造可以升华物质的和功能性的要求”。
由于用地位置特殊,营销中心作为大连湾的城市客厅,是城市公共配套服务的重要组成,初期将用于规划展示,远期作为社区的艺术、阅读、社交空间。展厅空间覆盖之下的开放空则向城市开放,为未来城市提供连续和流动的地面架空广场。建筑让所有的城市文化活动悬置与城市广场之上,并为全新的国际社区提供了凉亭一般的舒适基础空间。

◎拥有如此开阔的公共绿色空间,实属幸运
从项目所在位置向四周眺望,在晴朗的日子里,不仅将向大众展示优秀艺术作品和提供高品质公共活动内容,还将与周边的公共空间一起为城市提供一处富有生机与情趣的生活场所,供人们登高欣赏新区的建设成果,增强他们的休闲体验。
因此这个展厅需要最广的延展空间(长),以获得在各个方向上的视觉均好性。

◎不是简单的水平延展,而是从场所出发的某种意志
建筑整体漂浮于场地之上,场地与建筑一体化,架空的建筑底部形成对流通风良好的微气候,吸引人们在炎炎夏日在此驻足休憩。

◎随处可见的几何缩影,也暗示了一种图案化的精神再现
混凝土核心筒外附的一层石材,与漂浮结构在材质上的对比,强化了“漂浮”效应。建筑形态的悬空起落与零乱多变的周边环境形成戏剧性的空间拓扑关系,功能上复杂性也将在长久的使用之中进一步延伸场所体验上的多种可能性。

◎漂浮于空中的方盒子,围合出一个“四水归堂”的中庭,有很强的向心性
中庭的建筑元素,营造了一个具有象征性的,物理性的建筑空间。取代了一般建筑中大厅的功能,将非正式的聚会,展示空间及公共空间糅合在一起。其“虚拟”的边界被有意制造出压抑感的一圈灰空间。在亦虚亦实间完成了对空间的诠释,带来了一种强力又安静的氛围,让整个建筑形成一个更纯粹的空间关系,能够感知人的情绪,存放身心的场所。

◎“漂浮”的姿态改写了建筑内、外空间之间的关系,将二者套叠在一起,并行而不相交
深色景观水域引入建筑悬挑带来的灰空间之中,设计没有刻意的强调主体建筑的入口大门,即进入悬挑之下就已进入建筑之中,已被场所精神所感染。看到的是水中的倒影,建筑银灰色金属底板上反射的水的波纹。
03 悬挑
_

◎漂浮的姿态将场地尽最大可能地回馈给城市,在这个漂浮建筑之上,那些在景观水域步道层面看不到的远处风景及建筑群将被尽收眼底。
站在结构工程上,将建筑“悬挑”起来,其创新之处在于对受力关系的重新审视,从受力关系上看,相对于传统结构体系的“受压构件”,索结构的“受拉”传力更为清晰直接,在建构关系上也更为明确。

◎82.6米的长方形钢结构只通过两个支点悬浮于地平线上。严谨而理性的整体又透着一丝浪漫
建筑的结构分两个组成部分:竖向两座钢筋混凝土框架结构与横向长廊整体钢结构(用于长条展厅)。
于是,一种大胆的“混合框架+拉索结构体系”应运而生——这是一种在桥梁设计中有所采用的结构形式:由底层钢结构及预应力拉索将结构竖向重量传递到主要竖向支撑构件——核心筒,侧向荷载通过水平楼板传递到核心筒。


◎结构整体模型
04 材料
_

◎建筑与自然的关系,交互的方式以及体验的无界感,成为设计师对空间内核的进一步思考
漂浮的方盒子,也就是展厅部分,整体采用全玻璃幕墙的方式,以达到外立面的轻盈透明,使得建筑以模糊边界的姿态交互自然。幕墙顶部和底部以尖嘴型铝型材与屋面结构相接,凸显轻盈与通透。这样的处理保证由内观外一览无余,身临其境;由外观内,层次丰富,彰显内部空间特点。
两座筑基,钢筋混凝土框架,采用石材干挂,凸显其厚重与朴素。设计选用了蓝钻光面、蓝砖水洗面、深灰麻荔枝面三种深浅不一的石材,色彩沉稳厚重又富有变化。建筑历来被称为“凝固的音乐”,所以节奏也是设计中需要抓住的东西,竖向体块界面上的节奏感是显而易见的。石材与玻璃的相间运用带来重与轻、光与影、粗糙与光滑、需与实的对比。

◎透过不同物料营造各种光滑及粗糙质感,让空间和物料进行一场有趣的艺术对话
在确定每一种材料使用之前,都要经过数字建模确定基本材料,1:1实体样品比选确定颜色、尺寸及纹理,主要的墙面材料更需要现场上墙施工后确认。石材450*800、650*800错缝拼接,富有细节。


◎光下阴影,静态转为动态,同时清晰勾勒出铝板轮廓,停留在建筑体上,犹如雕塑般
铝板装饰构件成为建筑的点缀,既强调了直线线性的形态,又呈现出了阵列而形成的潜在律动感。切割方式,看似简单,却展示了建筑表皮无限可能的律动关系。
除此之外,它与光也形成了对话:白天,玻璃映射着周围树木、建筑、蓝天白云的同时,铝板随着太阳光照的投射,产生永不停息的变化,形成了一个富有光影节奏的外立面,而不是处在一种静止孤立的组合中。
同时考虑铝板防水问题,铝合金型材采用氟碳喷涂工艺,可以发挥持久的防腐、防水性能。
结语
_
历时三年,其背后糅合了业主,建筑师,结构师,施工方等多方努力,通过反复推敲地设计、实验与实践,最后精心磨砺出这样一个完全悬浮的建筑。
作为空间与记忆的载体,大连湾国际社区营销中心通过设计的“力”,材料的“透”,结构的“巧”,将外显的张力与谦逊的介入巧妙结合,成为一处悬浮的艺术宴会厅,希望为大连湾国际社区源源不断的注入新鲜话题。
技术图纸
_

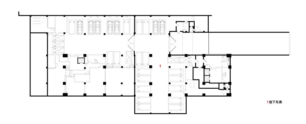
◎地下一层平面图

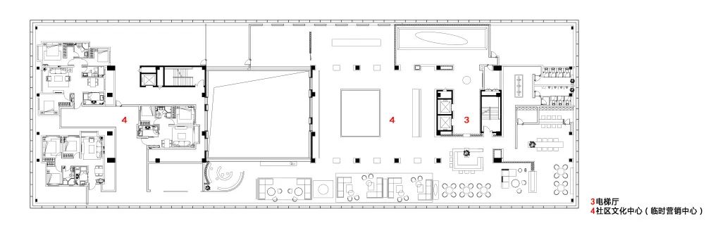
◎首层平面图

◎二层平面图

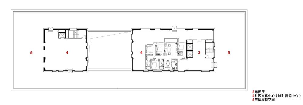
◎三层平面图

◎四层平面图

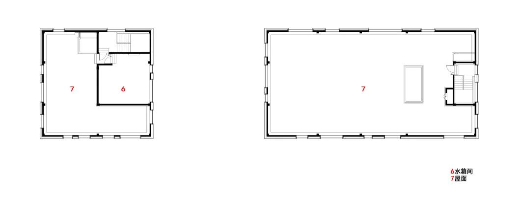
◎屋顶平面图

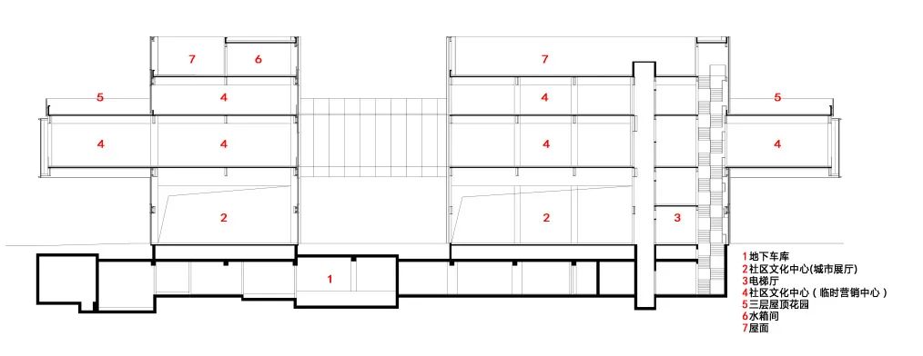
◎剖面图
工程档案
项目名称丨大连湾国际社区展览中心
项目位置丨华润置地大连湾
业主单位丨大连润海有限公司
业主团队丨华润置地大连公司设计管理部
设计单位丨上海日清建筑设计有限公司
总建筑师丨宋照青
项目经理丨董俊杰 刘四海
设计团队丨何凤龙 高可天 蒋瑞聪
技术主管丨郭丹
景观设计丨柏景(广州)园林景观设计有限公司
室内设计丨深圳李益中空间设计有限公司
施工图设计丨大连城建设计研究院有限公司
幕墙设计丨山东天幕集团总公司大连分公司
施工单位丨大连建科建设工程有限公司
建筑面积丨4182m²
设计时间丨2019年5月
建成时间丨2021年4月
建筑摄影丨远洋





