
杨浦区江浦社区文体中心
Yangpu District Jiangpu Community Cultural & Sports Center
中国,上海
Ningbo, China
追根溯源
场所是城市记忆的承载
_
本案位于上海市杨浦区打虎山路辽源西路路口,周边居住氛围浓厚,洋溢着热闹的市井气息。用地范围前身是上海永久自行车厂,兴盛一时。大礼堂的演出,街坊邻里熟识的场景,充斥着老一代杨浦人的记忆。

随着旧改拆迁,自行车厂搬离,用地荒废,成千上万的共享单车堆积如山。公共空间的闲置,带来城市活力的降低。





◎原永久自行车厂员工活动场景&原用地荒废

◎老杨浦底层生活区与新建的高楼林立
快节奏的社会发展下,高楼林立,老年人的活动空间备受限制。作为城市更替的参与者和见证者,居民对于老杨浦生活的记忆逐渐消失。


◎项目及基地周边鸟瞰图
回归日常
重塑街道生活的记忆
_
建筑师从城市角落入手,从生活场景的营造中生成建筑与景观的设计,从而形成新旧改造的对话。


◎项目沿街界面
将街角营造为未来生活的中心,给沉寂的城市空间带来新的生机。聚合了阅览、健身、剧场、书法室、绘画等功能,为老杨浦人带来新的可能,从人的活动入手,激活机械的城市空间。

◎宋照青先生手绘

◎体块生成
街角立面以弧形体量向沿街行人展开,隐在行道树后保持低调姿态,延续街道界面秩序。错动的浪花造型,带来丰富的光影化解建筑体量,同时树立标志性吸引驻足。米黄色人造洞石,与周边建筑色调协调,嵌入城市。




◎沿街立面-错动的浪花造型
圆形转角广场把街角一隅变成了日常活动载体。底层开放的弧形玻璃,缓和路口拥挤;巨大的展示橱窗,形成内与外的空间对话、建筑与人行为的互动,以此重塑街道场景记忆。





◎圆形转角广场及景观
时间之门——拾级而上,半开放的曲线形入口,宽大的门廊下,将闹与静一墙之隔,引导进入一次偶然的探索,是一次扩展互动的可能。


◎入口雨蓬及镂空隔墙
一方天地——穿过门廊来到内院,建筑结合水池、绿植,大面玻璃将庭院的景致尽收眼底,在闹市中还给市民一份静谧。




◎内庭通透的玻璃
架空的盒子横跨于主体与景观墙之上,俯瞰内庭。景观楼梯平台悄悄探出,如一道框景延展景深,与建筑隔水景对望。



◎庭院内部场景
一方收纳日光和空气的庭园,让人群重新聚集,生活的舞台剧在此上演。




◎庭院灰空间处艺术装置
生活容器
向前对话时光,向后映照未来
_
建筑和生活都不是一蹴而就,通过设计,保留街道空间尺度,重塑街道生活场景,唤醒老杨浦的记忆,塑造新的憧憬,完成新与旧的时空对话。

◎老杨浦的新生活


◎未来建成的江浦社区文体中心
技术图纸
_

◎总平面图

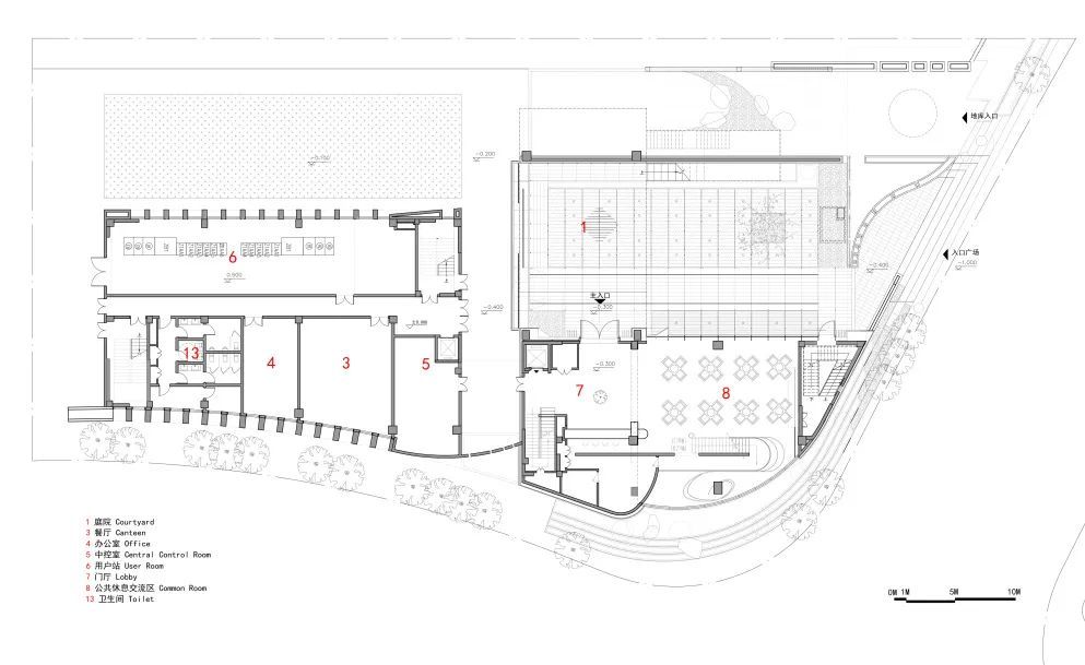
◎一层平面图

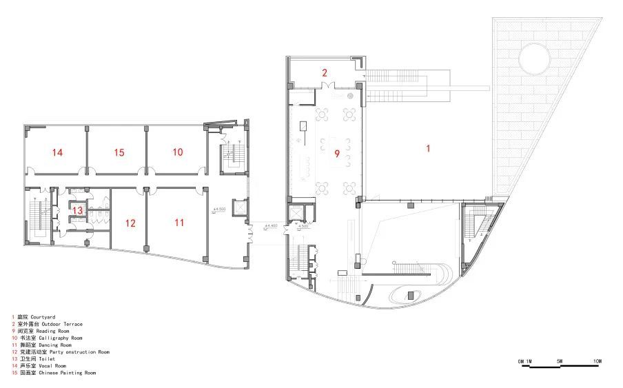
◎二层平面图

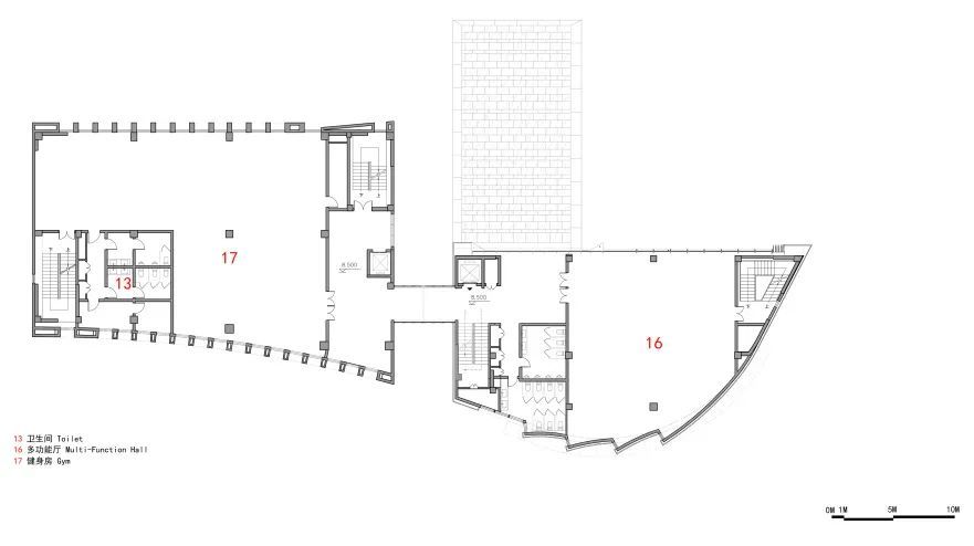
◎三层平面图

◎四层平面图

◎五层平面图

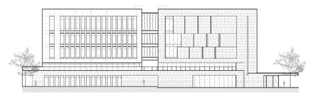
◎东立面图

◎西立面图

◎南立面图

◎北立面图



◎剖面图


◎节点细部
工程档案
项目名称 | 上海市杨浦区江浦社区文体中心
项目位置 | 上海市杨浦区打虎山路辽源西路路口
项目功能 | 文体中心
建筑面积 | 4586㎡(一期1850㎡ )
业主单位 | 上海保利城市发展有限公司
设计单位 | 上海日清建筑设计有限公司
总建筑师 | 宋照青
设计团队 | 蔡兢凯 郭丹 刘悦怡 王玉戈 吴旻琦 闫雷 吴明
景观设计 | 上海日清景观设计有限公司
施工图设计 | 上海中房建筑设计有限公司
幕墙设计 | 浙江中南建设集团有限公司
室内设计 | 广州尚逸装饰设计有限公司
设计时间 | 2019年4月
竣工时间 | 2020年11月
专业摄影 | 山间影像





