
1987力波啤酒厂改造
Renovation of 1987 REEB Brewery
中国,上海
Shanghai, China
“上海是我长大成人的所在,带着我所有的情怀……”
——力波啤酒广告曲《喜欢上海的理由》
正如歌中唱的那样,力波啤酒曾是上海啤酒的代名词,承载着一代上海人的时代情怀。随着时境变迁,这里一度淡出了人们的生活,如今,城市更新给老厂房片区带来了焕新重生的机会。

◎改造前照片


◎改造后照片
项目背景
Project Background
_
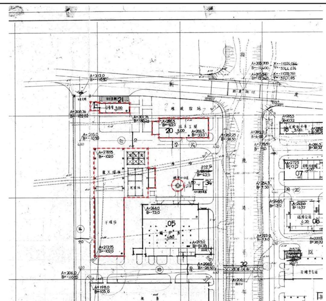
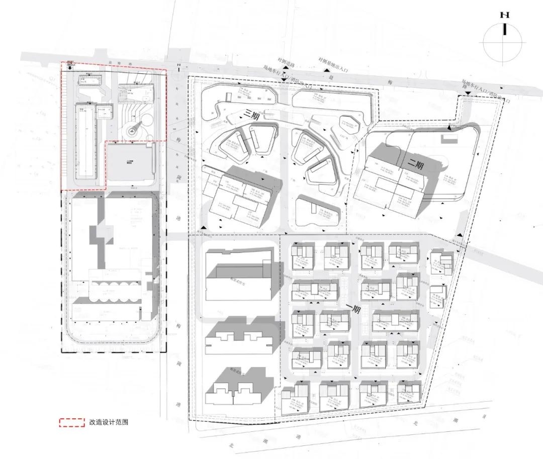
力波1987改造项目位于上海市闵行区益梅路,梅陇港西侧,所在地为原上海力波啤酒厂的老厂区旧址。本次设计对原厂房局部单体和烟囱进行改造更新。建筑规模1600㎡。而梅陇港东岸的原新厂区地块,规划为由独栋花园式办公、5a甲级写字楼、购物中心、开放式商业街区、租赁式住宅等组成的居住生活与商务休闲街区,目前正在建设中。

◎本次改造范围原始总图

◎力波1987效果图

◎力波1987实景图
设计理念
Design Concept
_
在当下的城市更新浪潮中,我们认为,尊重并强化场所精神,寻求历史与现代的有机平衡,始终是城市更新的灵魂。我们希望结合旧场地与新功能的特质,打造一处能重新聚集人气的场所,唤醒场所的活力与生机。
设计生成
Design Generation
_
场地原址分布着煤坊、渣仓、烟囱、泥木工间、小食堂及锅炉房。除煤坊渣仓为钢结构外,其余均为砖混结构。煤坊及锅炉房为场地内体量最大的单体,而烟囱则是制高点及广场核心构筑物。设计需要在不拆除原结构体系,不采用幕墙体系的前提下进行更新与改造。使老厂房变为创意办公园区。

◎力波啤酒厂转型项目总平面图
通过场地分析,确定了以老烟囱广场为核心空间,打造时光地标,并以此为源点组织周边建筑关系的的场地策略。通过“疏+导”的设计手段,将原渣仓敞开,定义为室外灰空间,开辟老烟囱广场与益梅路之间的视觉通廊,进而引入人流和活动,形成了充满生机的建筑序列轴。
整体造型,以原建筑轮廓为基础,提取原坡顶厂房的折线语言进行解构,在统一的基调下将设计元素有机重组。

◎打通地块与城市道路的视觉通廊


◎动态分析图
单体改造设计
Individual Building Reconstruction
_
在视线引导上,充分利用烟囱广场景观界面,临近烟囱一侧立面尽量通透,使室内空间与外部环境融为一体。


主要采光及观景面拆除了非结构围护墙体,替换为落地窗,使主要功能空间更通透,与广场景观融为一体。轻盈的银白色穿孔铝板,除了带来简洁干练的立面形象,也为旧建筑的结构体系减负。铝板及玻璃分隔比例优雅,竖向的深灰色窗框与银白色穿孔铝板包柱造型形成干净的联系,古铜色铝板造型门头带来了恰当的精致感。设计将新空间新材料要素置入老建筑,注入新的活力。





烟囱修缮与更新设计
Chimney Renewal
_
在对烟囱的修缮设计中,设计通过一片轻薄的斜置古铜色铝圆环,解决泛光照明功能需求,对烟囱主体仅作结构加固和涂料翻新。立面材质以白色及浅灰为主要色彩基调,涂料材质分隔带结合结构加固钢箍的位置布置,比例协调自然。设计师用最简洁的设计语言,使烟囱焕然一新又保留场所特点,结合泛光照明赋予了广场新的气质。这是力波1987创意园区的地标,也是穿越了漫长时光留存至今的回忆灯塔。

传统建筑符号、材料的使用
The Use of Architectural Language & Materials
_
将原厂房建筑坡顶作为元素符号进行提取,立面节奏遵循原轴网逻辑,用简洁的折线形态统一整体布局。又通过展示结构加固体系的手法,留住场所的工业气质,延续场所记忆。

◎办公立面中暴露的原渣仓顶棚及钢结构加固斜撑

◎原渣仓结构梁柱以室外灰空间构筑的形式被保留
细节与技术
Detail & Technical
_
旧改工程的特殊性,决定了项目从图纸到建成不是一蹴而就的。正是在结合实际现场不断调整直至设计落地实现的过程中,建筑才真正实现了新与旧的平衡。尊重原始质感与追求细节同样重要。原始遗留的粗犷墙体,根据保留结构条件调整立面材料分割的尺度,一切细节环环相扣,顺势而为,这正是建筑真实性的体现,也是旧改设计的魅力所在。

◎适应屋顶受力条件而设计的南立面

◎架空区轻透铝网立面有效控制荷载

◎保持铝板洁净的线脚细节设计
怀旧与新生
Nostalgia & Rebirth
_
随着力波1987的正式运营,曾经的老厂房已经以新的角色重新融入人们的生活。烟囱广场成为周边居民散步孩子玩耍的新场所,精酿啤酒馆则凭借浓郁怀旧工业风和现代简洁的设计,成为沪上又一热门目的地,唤醒了人们对于力波的情怀和记忆。


◎动图
如今的老厂焕新重生,而正在建设中的东地块,功能更加多元,承载着更多期待.

◎东地块规划效果图
一期独栋办公园区已逐步落成,每栋面积1600-3500㎡,配备生态屋顶花园和下沉庭院,简洁雅致的立面、红褐色的外墙,呈现出富有现代感的海派气质。


◎一期独栋办公
二三期商业综合体及高层办公楼、四期租赁住宅也正在施工建设中——商业为集中MALL与商业街结合的商业综合体,建成后将填补附近商业空白,为周围居民提供购物休闲好去处。两幢有着流畅竖向线条的现代5A级高层办公楼,为梅陇板块天际线增添了亮丽的一笔。精装修的租赁式住宅,将进一步提升对优秀人才的吸引力,打造出现代宜居社区。而喜欢上海的理由,从此有了新的延续。

◎MALL及办公楼

◎租赁式住宅
技术图纸
_

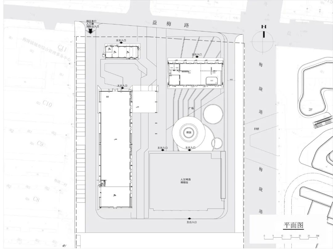
◎力波1987改造总平面图

◎首层平面图

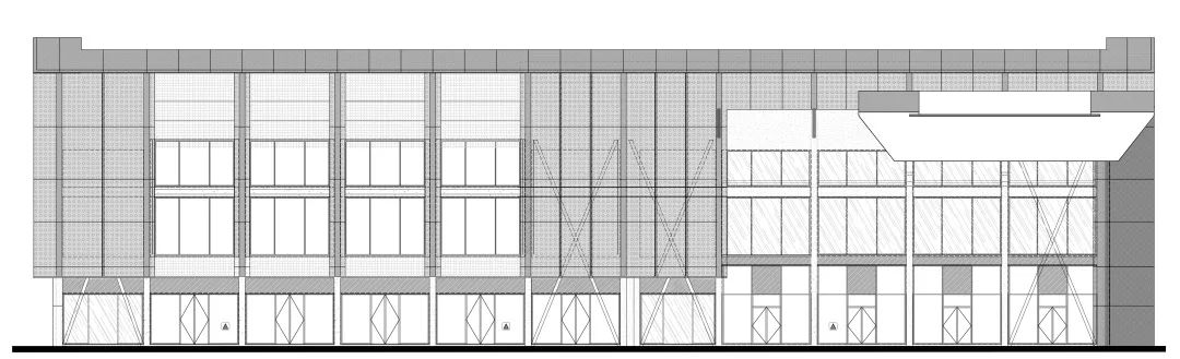
◎立面图

◎立面图

◎立面图

◎立面图

◎立面图

◎剖面图

◎烟囱立面图
工程档案
项目名称 | 1987力波啤酒厂改造
项目位置 | 上海市闵行区
项目类型 | 创意产业园/城市更新
业主单位 | 力波酿酒(上海)有限公司
业主团队 | 黄秉中 唐兴斌 黄鸿泉 邓永彬 唐东明 陈立志 孙灿辉 郭建波 李亚坤
建筑设计 | 上海日清建筑设计有限公司
设计总负责 | 岑岭 陶蔚彪
设计团队 | 李雪妮 汤丁峰 洪伟博 赵钒辰 袁佳慧
建筑设计(人文啤酒博物馆) | 竖梁社
施工图设计 | 竖梁社
景观设计 | 深圳奥雅设计股份有限公司
室内设计 | 无间设计
照明设计 | 苏州中明光电有限公司
建筑面积 | 1600㎡
竣工时间 | 2020年12月
设计周期 | 20个月
建筑摄影 | 张虔希





