

本案设计于2023年,建成于2024年,位于苏州市吴中区,滨临太湖。总建筑面积3000㎡,主要功能为社区的生活艺术馆,同时也是整个社区的社区大堂。在当下快速城市化进程中,我们不想像常规项目一样依靠巨大的尺度和昂贵的材料来烘托社区“奢侈” 的感觉,而更希望在社区的主入口设计一个尺度宜人,低调内敛的空间,给这里的业主提供一个平静、舒适的社区交流场所以及良好的居住环境。



通过对苏州传统民居空间的提炼,进一步研究苏州本土化建筑空间的内涵。在社区的主入口打造一个有苏州人记忆的院落空间。这个院落是为社区业主及孩子们集会和玩耍而提供。老人可以在此沐浴阳光,孩子们可以放学后在此空间玩耍,邻里之间也可以 在这里相聚和交流。它既是一个通过性的空间,也是一个可以停留的空间。我们想给儿童创造一种自由流动的活动方式。每个院 子并非是一个独立存在的,院子和院子之间互相开放,通过水院和下沉庭院加以连接,周围环绕着不同尺度的院落空间。


▲ 主入口形体生成





归家礼序的的起点是一个环形广场酒店式落客区,也是滨湖生活艺术馆的前场。根据传统建筑坡度经心设计屋顶的比例。在屋顶檐口处用现代的材料铝板和型材来收边,达到极薄的一个檐口收边效果。


再进入江南传统建筑风格的接待厅。一个“不张扬、不浮夸”的安逸的空间。建筑室内景观一体化设计,模糊空间的边界。当业主归家后径直穿越这禅意的空间,时刻提醒着回归自我,回归生活与家庭。

从接待厅可以转入中轴两侧的东馆和西馆。两馆建筑风格现代简洁。立面风格赋予以条理分明的结构秩序,将功能组织成清晰的建筑形式,在多样中达到统一,在统一中创造多样。

也可以转入厅后的二进院——“水中庭”, 这个中庭是很典型的传统“泗水归堂”做 法。内部水院蜿蜒回廊,勾连四方庭院,有婆娑树影于石材墙面之上随风起舞,光束摇曳落入室内。水院两边的连廊汇合在三进院—“石境庭院”再归家,形成一个东方传统“起承转合”艺术空间序列。



下沉庭院将景观空间伸至建筑空间中,建筑与自然,人与景,观者与被观者,共存于亦动亦静的空间中。三个功能区围绕下沉庭院形成围合空间,中庭空间可会客、休憩、玩耍,为业主创造私享化的生活空间,营造归属感。
长边面向下沉庭院的是洽谈区,也是会所的商务接待,立面设计了整面的中轴门,当中轴门关闭时,玻璃围合出室内的空间,坐在这个玻璃空间外围的人,虽然没有具体的交流和互动,但互相会有一种“看到”与“被看到”、和他人“一起”的感受。这也保证了一定的私密性;当中轴门垂直打开时,消解的边界让室内外的界限变得模糊,提供了更丰富的开放性体验,营造了一种私 密性与开放性并存的体验。


▲ 图片转自深圳朴悦设计顾问有限公司

在整个项目的设计过程中,从材料到工艺,从檐口的形式到铝板、石材的交接细节,每一次选择都历经多次的推演研究,无限精简细节,以极致要求简约,直至严丝合缝。





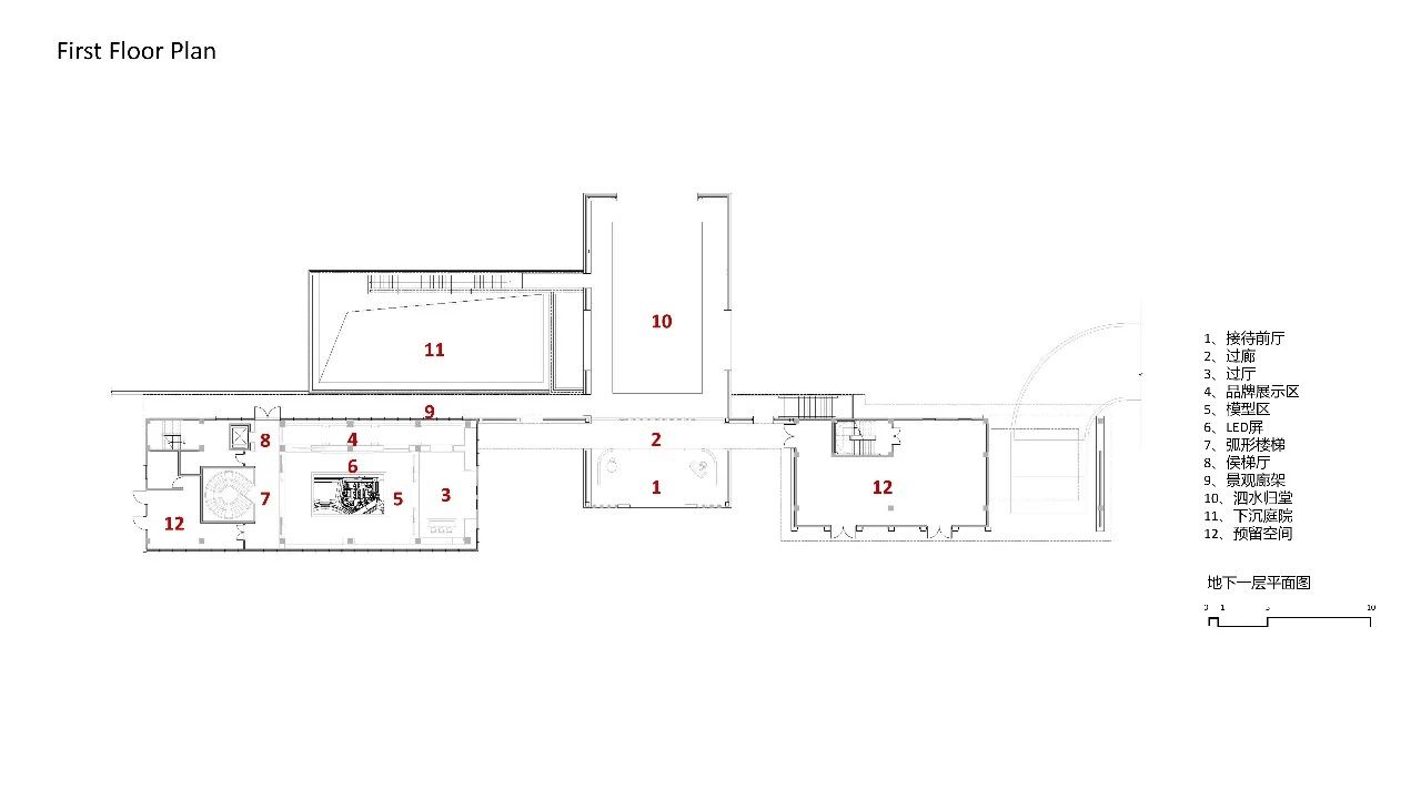
▲ 一层平面

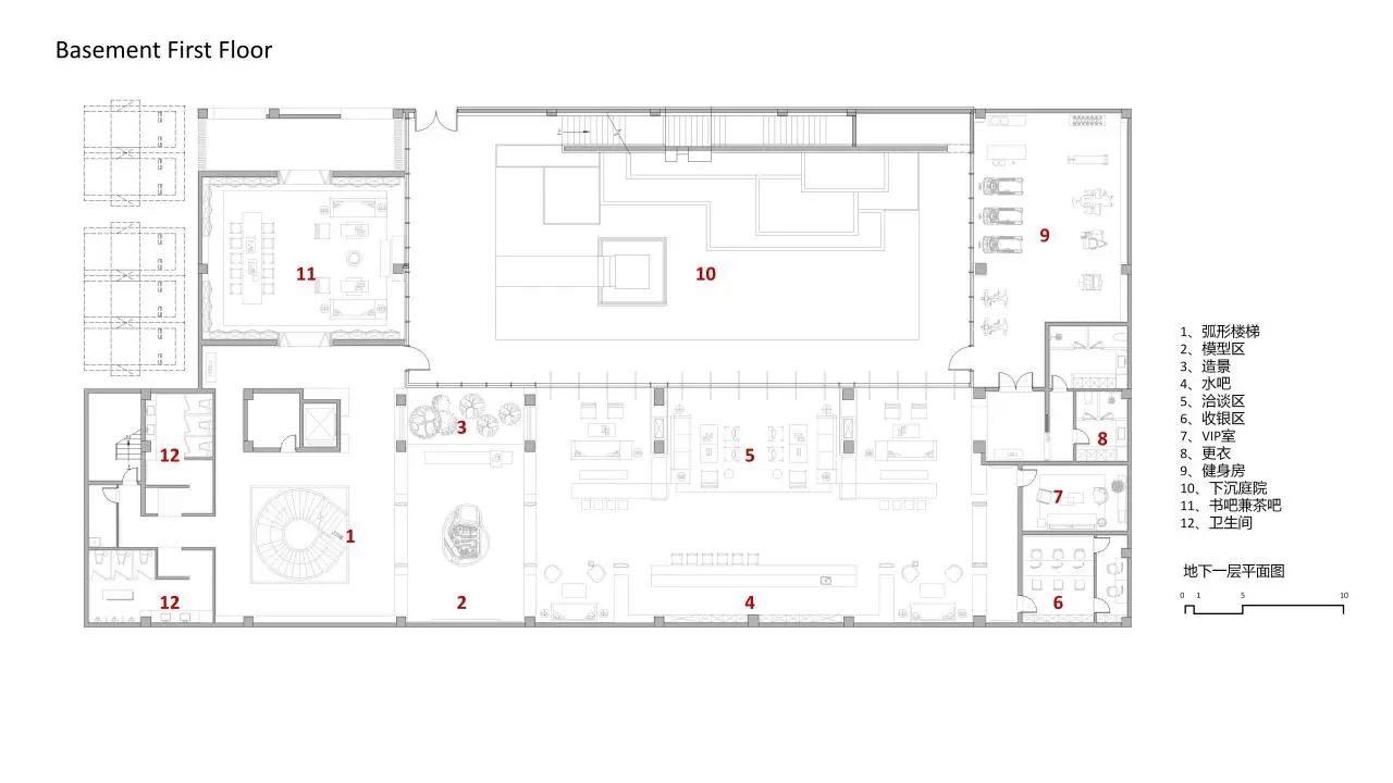
▲ 地下一层平面


▲ 立面图

▲ 节点大样
工程档案
项目名称丨中建三局苏州滨湖生活艺术馆
项目位置丨江苏省苏州市吴中区霆威街北龙翔路东
业主单位丨中建三局
设计单位丨上海日清建筑设计有限公司
项目总负责丨程虎
设计总监丨陈成
项目负责人丨陈成
设计团队丨伍文波 李运超 鲁红东 余杰 李昶 杨子予
施工图设计丨苏州华造建筑设计有限公司
幕墙单位丨上海旭密林幕墙咨询顾问有限公司
室内设计丨深圳朴悦设计顾问有限公司
景观方案设计丨四川环球地景艺筑景观设计有限公司
建筑面积丨3049㎡
建成时间丨2023年8月
建筑摄影丨李逸





