
登堂 · 礼乐——岭南水乡聚落空间演绎
Sovereign Hall · Serene Rhythm
中国,惠州
Huizhou, China
引言
—— 传承岭南文化,演绎现代中式
传统乡村聚落是人类长期居住凝结出的文化精华。随着珠江三角洲经济快速发展,岭南水乡聚落正面临多种威胁。针对目前聚落景观空间不断被挤占缩减、乡村聚落空废化等问题。设计师希望通过本案的研究,挖掘聚落空间的美学意义和构筑空间的设计方法,传承与延续岭南地域的建筑文化,打造着重展现出岭南聚落的独特印记,将真实的本土情感融入现代城市发展建设,使之成为不可或缺的部分。

△ 场地区位
本案位于惠州市南郊,交通便利,3h车程辐射到整个珠三角和港澳区域,区位优势明显。

△ 原始场地鸟瞰
基地周边环境天然形成一个岛式空间,环拥河水,远眺见山。符合中国以“山水为血脉"的传统风水观念,本案以建筑承载文脉,将传统乡村聚落空间形态引入设计之中;以在地性语境,探索土地的高效利用模式;与环境协调对话,最终形成适应岭南环境特征的建筑形式和人居环境。

△ 大岭村总平面图及村落现状
岭南传统乡村聚落多呈现出梳式布局形式。以番禺·大岭村为例。大岭村背靠菩山,村落沿着村前的玉带河流向延伸布局,建筑成行列式紧密排列,连续的坐落在河涌旁。大岭村街道和里巷具有明确的贯通性,共同串联建筑、广场等各个功能空间,街巷网络呈现鱼骨状形态。这种集聚型带状聚落,其空间方向性确,肌理清晰。

△ 惠州·崇林世居
崇林世居,是惠州市最大的客家围屋,共由五大部分组成:第一部分为池塘,半月形;第二部分为禾场;第三部分为首围;第四部分为以祠堂为中心的保斗部分;第五部分为有望楼的后围。三、四、五部分是围屋的主体。内围屋呈方形,由3层回型建筑群和一座3进式祠堂组合而成,最外围中间部分有一座高15米重檐歇山式的3层望楼,站在楼顶可眺望整座围层。

△ 项目鸟瞰空间示意
项目愿景为构建具有山水之韵的城市岛居。由廊桥进入基地,经由水口,漫游滨水公园,行至广场,由此可见由对景-活动广场-登堂.礼乐-养老配套-社区配套-幼儿园-小学-中学-半月塘等组成的核心轴线。通过轴线打造视觉通廊将水岸景观导入地块内部,塑造城市界面,打造片区形象,树立城市标杆。

△ 中轴与聚落规划示意
项目从大岭村的聚落形式汲取方案整体规划逻辑;从岭南客家围屋汲取建筑形制,提炼其中的中轴、戏台、半月塘、宗祠、街、巷等元素,以现代的空间力量及仪式感形成本案中轴的规划;将广场、登堂.礼乐、戏台、形成街巷配套服务、幼儿园、学校、半月广场等串联在一起。
△ 规划剖面示意(右滑查看更多)
望庐
—— 游园归家 入户门仪
望庐 | 廊桥
项目的起点始于横跨淡水河的两座廊桥。廊桥的设计聚焦于“本土情感”,桥体的造型上是对周边村落之岭南传统建筑群屋檐窄巷的抽象表达。用材和构造上利用钢结构的灵活和可塑性来实现天桥的空间和造型,做到温和地融入在地的建筑语境,隐隐透出对自然、对本土情感的寄托。


△ 廊桥空间示意
听潮 | 水口
走过廊桥,即见水口。基地原有的榕树也被保留下来,置于环路中心。其一方面作为历史的见证与延续,另一方面也作为标志性景观强化了入户的仪式感。

△ 水口空间示意
游园 | 滨水公园
转过水口,沿着环抱淡水河布置的滨水公园向前,行有花香、驻有小景。以生态手法打造多层次林下空间,进行整体人文艺术性设计,并提供了满足多种需求的绿地空间,提升场地的景观品质和生态属性的同时,让居民感受艺术与文化相交融的自然生态。

△ 滨水公园实景
登堂 | 礼乐
由对景拾阶而上,踏入活动广场,便可见登堂.礼乐,轻盈通透的建筑成为岭南文化的载体,诉说着岭南的风土人情。

△ 登堂·礼乐实景
寻香 | 戏台
穿行登堂礼乐,来到戏台。设计戏台的目的在于将传统岭南戏剧融入社区生活,为居民提供传统文化记忆点,打造文化融入生活共享地。

△ 戏台效果图
写韵
—— 空间与流线

△ 核心轴线鸟瞰实景
剖析传统村落传统空间礼序,以岭南建筑形态为原型,将传统“门-庭-园-巷”四进归家礼序转化为核心轴线。在叠山理水中,将接待、洽谈等行为场景编织进游园体验的多重空间序曲。

△ 核心轴线鸟瞰实景
轴线上不同体量不同形态的建筑空间错落有致穿插其中,将传统岭南建筑村落层次与韵律的重现,穿梭其间,仿佛置身写意的岭南风土画卷之中。

△ 对景实景
走入登堂.礼乐前的圆形对景空间,连续的台阶与下沉庭院组成一个精巧的画廊空间,与身后的建筑轴线交相呼应。设计中的种种巧思将“乡情”注入到建筑空间之中,为人们营造出多维度的感官体验。

△ 活动广场实景
拾阶而上,步入活动广场,空间开阔,周边景色一览无余。游览的过程之中自然和建筑在行进的过程中被观赏,移步换位之间,显隐、内外、明暗不断交织,营造出一个有机复合、多层级的漫步体系。

△登堂·礼乐实景

△ 交错的光影
中国传统绘画理论强调“行望游居”,借此来表现画面空间的深远与意境。在传统园林也非常重视移步异景的空间趣味性。因此沿着轴线,登堂·礼乐矗立在轴线的核心位置,构建惬意的漫游空间。

△ 下沉空间实景
穿过登堂.礼乐,惬意的下沉亲水空间在此被塑造。在这里其他的建筑形体被弱化,下沉的空间消解了原有空间形态,使得登堂.礼乐的屋顶成为视觉的焦点。
如鸟斯革 ,如翚斯飞 ——《诗经·小雅·斯干》
溯源
—— 传承与创新

△ 岭南建筑风光
项目位于岭南派建筑发源片区,其“追求意境,力臻神似”的设计思想,体现了其独特的人文精神,也为设计提供了思路。
行走岭南建筑的青砖石板之间,细细品味每一间老屋,最引人注目的便是满目的镬耳屋,门楣上装饰着花草灰雕、木雕,还有各项虫鱼、故事壁画,以及唐诗、宋词为内容的书法,镬耳屋作为岭南传统民居的代表,静静散发着它独特的光芒。
雕琢
—— 匠心与升华

△ 岭南镬耳屋

△ 镬耳屋转译示意
屋顶以岭南建筑最具代表性的镬耳屋为灵感,提炼出建筑的主立面元素,结合现代手法,极具现代艺术感的气质与传统 元素相得益彰,升华为独特的美感,于环境中脱颖而出。

△ 岭南龙船脊

△ 龙船脊转译示意
屋面弧形轮廓融合了岭南的龙船脊元素,外层幕墙由大量不同弧度的竖向构件组成,现代飘逸、舒展灵动,寓意为“大幕拉开”。

△ 抬梁式建筑

△ 抬梁式转译示意
建筑结构采用钢结构,虽不是真正的木结构,整个屋面的构造形式却与传统抬粱类似,通过钢柱、钢梁、次钢梁、檩子等层层搭接,严谨的逻辑,实现屋面造型,体现构造之美。

△ 传统瓦屋面

△ 瓦屋面转译示意
外表皮肌理与传统瓦屋面形似,采用铝方通杆件,外表皮大小与间距组成的标准片段与建筑柱网严格对应。每根杆件分为三段,弧度渐变,使建筑更增柔美灵动。

△ 传统瓦当

△ 瓦当转译示意
类似传统屋檐精美的瓦当,屋面杆件端头设有仿古木窗窗花造型扣板,扣板内嵌亚克力板灯槽。灯光与装饰结合,体现建筑的细节之美。
夜景灯光采用泛光灯与室内透光相结合。一层利用室内光及地灯照亮檐底,二层屋面在每根铝型材上均匀设置泛光灯源,点亮整个屋面,表现建筑的纯净轻盈。

△ 登堂.礼乐屋面灯光实景
项目位于亚热带气候区,结合节能计算,坡屋面上端3/4部分设计为实体墙面,同时合理的开窗能有效的引入自然光线,保证室内通透明快, 格栅状的屋面起到了一定遮阳效果,形成丰富的光影效果。

△ 形体生成示意

△ 登堂.礼乐结构剖面示意
造境
—— 山水与意境

△ 登堂.礼乐日间实景
通过巧妙的空间布局和细腻的景观处理,将岭南的传统元素与现代设计理念相融合。细节的刻画增添文化的形式感,既保留了岭南风情的独特风格,又融入了现代建筑简约和时尚。将岭南的记忆具像化,抵达地域文化的内核,宛如一场城市的欢喜。建筑不仅是一个功能空间,更是一个文化的载体。

△ 登堂.礼乐晚间实景
馆内两层建筑空间,建筑外观轻盈通透,通过抬起的活动广场直接连接管馆内二层由此塑造出柔性的边界。通过挑出的屋檐、“分离”的屋顶、两侧嵌入的步道、不断交织的室内、室外和半室外空间,在建筑中形成多个呼吸孔,以获取不同的观景体验,感受不同的空间节奏。

△ 下沉空间实景
下沉空间引入方正的大尺度水景,层层递进,犹如无尽的诗意,再现岭南风雅。通透的空间使视线得以延伸,建筑真正的实现了“内可观景,外为景观”。回应气候与环境的形式转译也让传统和现代在这片场地之间回响。

△ 登堂.礼乐实景
在满足建筑作为功能空间的基本需求之外,我们更希望在此之外登堂.礼乐能够成为人们与自然产生共鸣的空间。人们漫游其中,重新建立与岭南地域性的链接。在这里驻足凝望,欣赏风景,放松身心。我们希望大家能够从繁重的工作中抽离出来,感受水流的节奏与变化,欣赏湖光与远山的宁静之美,找到内心的平衡与宁静。让生活像诗画般展开,心灵栖息在山水之间。
后记
登堂.礼乐——岭南水乡聚落空间演绎致力于体现东方人文价值,设计秉承一种谦逊的理念,以人为核心,结合文化与特定场所的特点。在继承岭南建筑文化的基础上,不断探索人、建筑与环境和谐共存的可能性。作品尝试在地方风土建筑的维度中展现乡土之美,同时在探讨城市化过程中,深刻表达对传统村落本土情感与文化的关注与敬意。
在遵循岭南传统气候、文化的同时,探讨研究了适应现今居住生活的建筑空间。我们寄望这片新的民居聚落,与古村的空气、泥土、榕树、水塘、旧屋、居民……渐渐相融,成为惠州的增色一隅。
目前整体项目尚未全部建设完成,核心轴线上还有养老配套、幼儿园、小学、中学、半月塘等正在建设之中,敬请期待……
技术图纸

△ 总平面图

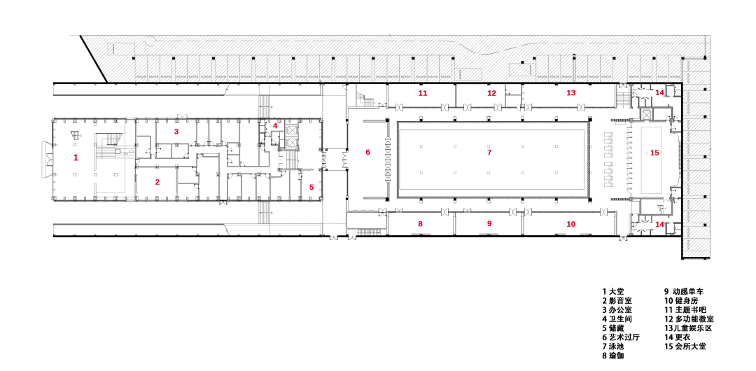
△ 一层平面图

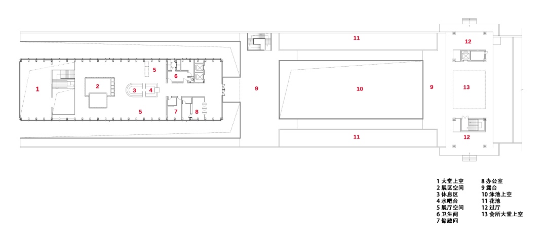
△ 二层平面图

△ 南立面图

△ 北立面图

△ 东、西立面图

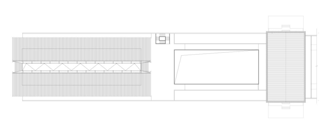
△ 剖面图
工程档案
项目名称丨登堂·礼乐——岭南水乡聚落空间演绎
项目位置丨广东省惠州市
业主单位丨惠州市好益康投资有限公司
业主团队丨邱平、李世颖、李智波、曾翔颖、杜连鹏、常军强
建筑设计丨上海日清建筑设计有限公司
设计总负责丨 吴笛
建筑团队丨 陈炯鹏 雷磊 马锐 马大伟 付忠国 张犇犇 薛嵋月 王春浩
建筑施工图设计丨长宇国际建筑设计有限公司
景观设计丨上海日清景观设计有限公司
幕墙设计丨福建省华荣建设集团有限公司
建筑面积丨3280㎡
设计时间丨2019.01
竣工时间丨2024.07
专业摄影丨方舟工作室






