
南宁杉杉奥特莱斯广场
NAN NING SHANSHAN OUTLET PLAZA
广西,南宁
Nanning, Guangxi
PREFACE
前言
商业行为,是人类社会关系中不可或缺的一部分。商业行为发生的场所一直在适应社会变迁的演变。近年来,商业建筑面临两大挑战:一是随着网购电商的兴起,实体商业的客流量和到店体验逐渐减少,需要提升客户的实地体验以吸引更多顾客;二是商业空间的设计更加需要注重独特风格,增强其吸引力,让顾客更愿意光顾并停留。
奥特莱斯,特别是假日型奥特莱斯,作为传统商业的一种形态,有其独特之处。它以假日经营为特点,致力于打造独特的商业空间,给人放松和流连其中的感受;同时,它以平价销售为特色,亲民且宜人。
南宁杉杉奥莱位于南宁市区西南部,邕江南岸的江南区,项目的设计愿景就是希望打造一个市民自身茶余饭后的逗留休闲场所,成为市民放松嬉戏的去处,增加更多“来到这里”并且“停留下来”的可能。这不仅能提升商业空间自身的商业价值,也能为市民和城市提供更多的生活空间。
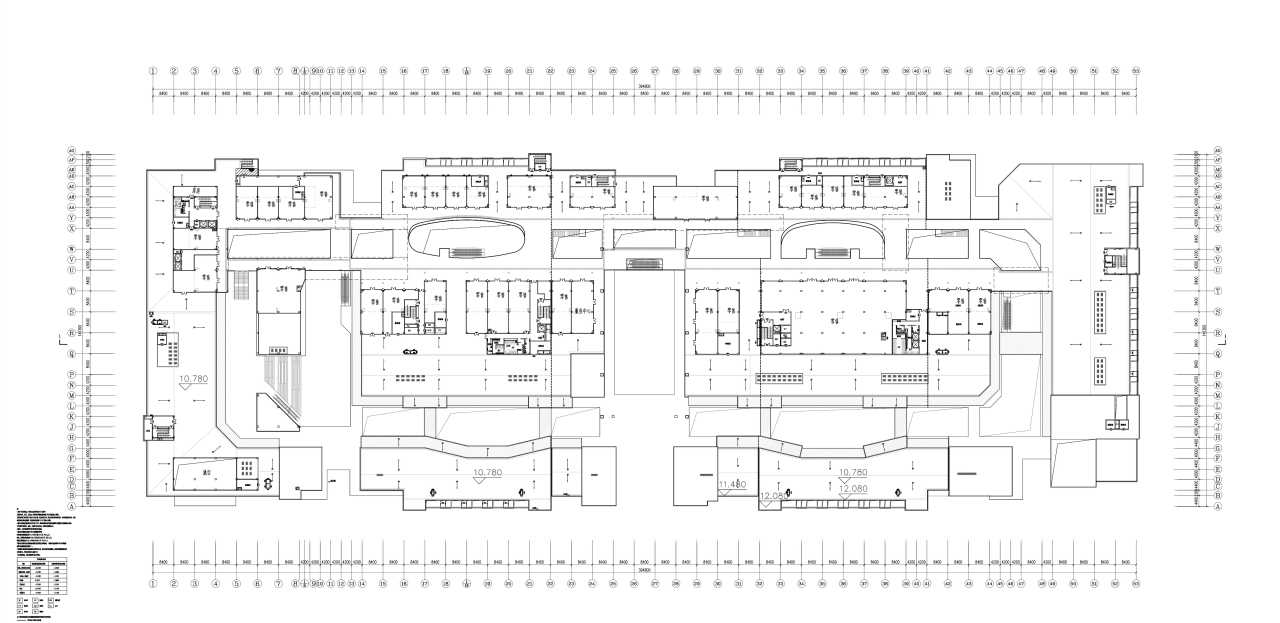
流线与空间节点
∞字型流线
项目整体采用∞字型流线,将所有商铺串联起来,同时在不同位置设置主题中庭,以增加空间的辨识度和吸引力。

2号主中庭
主中庭作为与主入口联系的重要活动与展示场所,强调了仪式感和功能性。

东侧运动主题中庭
东侧中庭结合运动品牌商铺业态,打造了社区商业氛围,通过穿插的走廊加强了空间交流,同时走廊也对这个中庭形成了围合,使中庭更亲切尺度宜人。

西侧儿童亲子主题中庭

西侧中庭结合儿童品牌业态,设计了参与性较强的活动空间,通过景观大台阶联通视线,加强空间联动性,打造亲子体验性商业模式。


南北流线节点

南北分别对流线上的节点进行了放大处理。南动线为二层空间,注重与一层的交流性;而北侧为三层,空间设计在避免单调的同时又要加强流线的便捷。



立面控制
在立面设计上,相同材质与设计元素的不同变化,中式风情与现代感的结合,构成了繁杂多样、立体有趣的立面形态的和谐共生。



团队与各单位保持密切沟通以确保立面节点和建成效果的控制。
效果图与现场照片

施工现场与建成效果

栏杆节点杆件消隐效果控制

技术图纸
向下滑动浏览
工程档案
项目名称 | 南宁杉杉奥特莱斯广场
项目位置 | 广西省南宁市江南区沙井大道和上津路交汇处
业主单位 | 杉杉商业集团
业主团队 | 江洪涛 全婕 王逸伦
设计单位 | 上海日清建筑设计有限公司
总设计师 | 宋照青
设计总负责 | 古韬 李晟
设计团队 | 刘声林 李晓杰 王阳 周雅琼 孔德凯 蒋镒涛 朴金月 于维枫
施工图设计 | 宁波市房屋建筑设计研究院
幕墙设计 | 宁波市房屋建筑设计研究院
建筑面积 | 156595㎡
竣工时间 | 2022年10月
专业摄影 | 行知摄影







