TOD——Transit-oriented Development,交通导向开发,是卡尔索普在《下一代美国都市》中,提到的概念。
在公交站或者轻轨站边上,分布着商业、办公、居住和公共开放空间,旨在在步行可达的空间范围内最大化地提供生活的各种服务。
万科上海天空之城实践了TOD的在地探索,构建了新城市背景下的理想生活方式。

01
项目背景
TOD之下多元业态的破壁生长
01
场所基因
本案位于青浦新城大虹桥板块,未来虹桥国际开放枢纽坐拥长三角高速发展的红利,站在了“长三角一体化”的关键点上。虹桥国际商务区承接了长三角一体化的发展格局和框架。
万科上海天空之城站在“大虹桥”与青浦“新城市”双轮发展驱动交汇点上。作为人气大磁极,引领大虹桥新格局 。万科天空之城商业无缝连接虹桥商务区内17号线徐盈路站,距离虹桥枢纽约7公里,地铁三站可达。

02
理想之城
—— 多元复合的城市共同体
项目通过城市运营,形成富有生命力的,与城市共同成长的城市共同体。天空之城项目,将约10万方商业、约10万方办公、约35万方住宅、幼儿园、社区中心合计19万方绿地有机糅合,营造多元、人文、生态、健康的未来之城。
03
城市活力轴
—— 天空之虹
万科天空之城通过步行廊道系统线性展开,如天空之上彩虹横跨其上,将其分别定义为生活绿轴,水景轴,知识光轴三轴线,互相交织,使得每个地块的不同业态成为城市TOD公共空间的有机组成部分和延续。

04
隐而不显的生活方式
—— 宜居、丰富、开放、有序
以“天空“为圆心,600米为半径,以15分钟步行距离为尺度,聚合多元业态,顺应日常的生活节奏,也贴合生态发展的可持续模式,是新城市主义下生活方式的重新定义。
02
本案思考
业态定位与设计使命
本案处于各地块中间位置,如作为类住宅考虑,则本案地块与周边地块功能属性相同,地位并列,都需通过0601地块商业与交通枢纽发生关联。如作为复合办公商业社区考虑,则更加强开放性,与0601地块商业从简单的交通拉通升级为对话共融,为城市赋能,与城市共生长。
本案面向0601商业地块的人流和车站的人流,作为次中心组团发挥启承转合的纽带作用。

右滑查看更多
03
挑战和策略
关键词 : 步行廊道 共享客厅 高效统筹
01
触手可及的体验
—— 有效的步行廊道
为确保住宅品质,在基础结构上必须增加隔震措施,隔震支架的置入使得地块之间产生了较大的高差。本案面对第一个挑战是如何化解此处高差。

设计师应对的策略是在0603地块和0601地块之间拉通一座功能性的步行廊道,让两个地块进行高效的连接,用廊道起坡消解了两个地块间的高差。把公共空间从沿街的界面移动到了商街内部,并在地块东侧又置入另一个广场遥相呼应。

02
公共空间的共享
—— 开放的城市客厅
经过空中步行廊道,迎面而来的居住人流、商业人流及 工作人流三股人流在各地块和车站之间穿梭,形成多种流线的混合交叉。通过直接的空中廊道引入后需要考虑设置人流的集散场地。
设计师在0603地块内做了两处广场作为节点的放大,缓解了人流输入以后的压力,并且作为开放的城市客厅,为人的活动组织提供了特定的场所。

03
高效统筹
—— 分区停车与双首层概念
把商办的停车集中在办公楼底层,和南侧住宅地下的停车分区设置,但是与06地块所有需进入商业区域的停车统筹考虑。
设计之初提出了双首层的概念。具体操作为,将南侧的办公抬高一层,这样就形成了两个标高的落客区,消费人群可以通过汽车坡道到达商业首层,可直接进入南侧办公车库层停车,实现停即消费,同时又有效分区了办公和商业的人群流线。
在后期实现过程中,因0603地块错层形成的高差,使得场地内消防车道不能有足够的用地展开,后取消了双首层的概念,统一首层标高。但这一设想是设计师对商办群体人流组织和多层次有效服务的积极尝试。
04
叠 落 聚
SOHO组团的元气磁场
地块内建筑形态办公主楼到独立小商业到集中商业,呈现的一种引力场控制下多维度生长的状态。如同一件巨大的物体慢慢落下,有聚合,有分散,仿佛是瞬间的定格,又充满了下一秒的无数想象。
叠
地块内体量最大的是办公塔楼,无论在多远处,一眼就能望见他有棱有角的伫立当中。办公巨大的体量被住宅怀抱其中,建筑师考虑其群体建筑语言的连续性,尝试将单一巨大的体量进行有序的切割划分,办公塔楼的尺度经过化解后,体块形成竖向长方体的叠加,手法虽是化解,其本质是还原体块叠加的原始力量。

在矩形体量内使用竖向线条削弱横向的大尺度,建筑表情更加丰富。塔楼顶部的屋顶花园如同镶嵌在办公楼之内,为用户提供工作之余休息的场所。

底层裙房的设计也延续了塔楼的理念但体量上尺度更为亲切,同北侧低层商业相呼应。南侧办公主楼与群楼围合而成了一个户外广场。


落
九栋独立小商业,如同九块积木从叠加处散落,均匀的落在东西两侧地块。天然的形成了疏密有致的街区空间。散落的建筑围绕着散步道,每处转角尽是充满活力和创意的商业空间体验的惊喜。独立的小商业三层做了退台,形成了屋顶花园,既是较为私密的,也是和城市相关联的;既是日常的,也是具有仪式感的。
在街区近人尺度的建筑立面,设计师采用的是暖色和冷色面砖结合通透的玻璃面,在散落的体量间穿梭,与大商业的喧闹形成对比。经过散落体量不经意的遮挡,在天空之下与堆叠感的主楼形成梦幻对比。


聚
位于本案地块中心位置的是一个聚合的集中商业群,如同散落下来后还没来得及分开而聚拢在一起的积木方块。这个聚合的小组团在中心形成了强大的磁场,围合出了一集聚人气的步行街。在中心聚合商业区域,用风雨连廊进行了多维度的人流组织。在水平和垂直方向形成互动空间。人在首层行走,可观察到二层走廊的人群场景,吸引人流垂直上行。
位于本案地块中心位置的是一个聚合的集中商业群,如同散落下来后还没来得及分开而聚拢在一起的积木方块。这个聚合的小组团在中心形成了强大的磁场,围合出了一集聚人气的步行街。在中心聚合商业区域,用风雨连廊进行了多维度的人流组织。在水平和垂直方向形成互动空间。人在首层行走,可观察到二层走廊的人群场景,吸引人流垂直上行。



跨界融合
—— 公共空间多维共享生活场景

在与16、17海之洲地块之间用艺术之廊进行串联,以文化引领提升社区内生活力,吸引更多的人前来参与。使这个由居民、上班族、店主们结成的社区,每个人不仅是体验者,而且是创造者,为Soho社群注入全新的生活魅力。

05
材料与细部
在与16、17海之洲地块之间用艺术之廊进行串联,以文化引领提升社区内生活力,吸引更多的人前来参与。
使这个由居民、上班族、店主们结成的社区,每个人不仅是体验者,而且是创造者,为Soho社群注入全新的生活魅力。



结语
一面是时代的共振,一面是根植的日常,构建Soho的都市厚度。
我们乘着时代的风云,以微毫诠释盛大,且歌且舞而来。我们曼妙丰姿里,就是生命;我们轻盈飞过处就是天空。
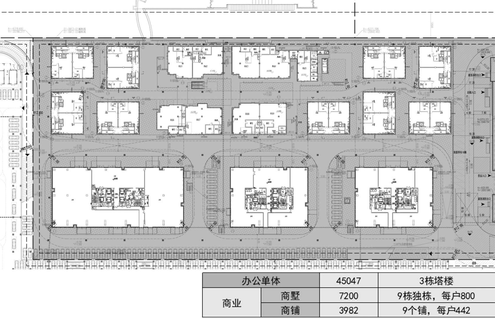
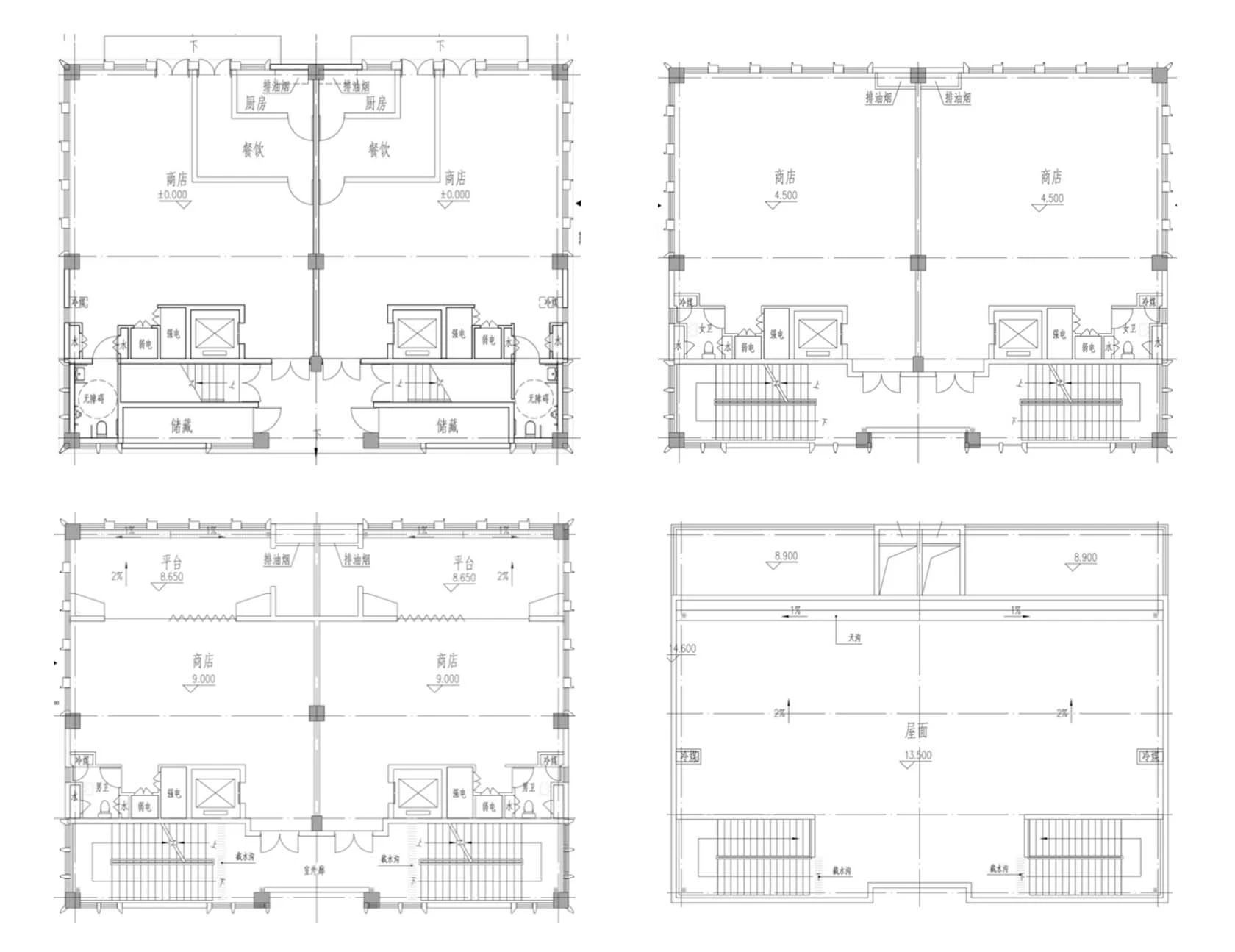
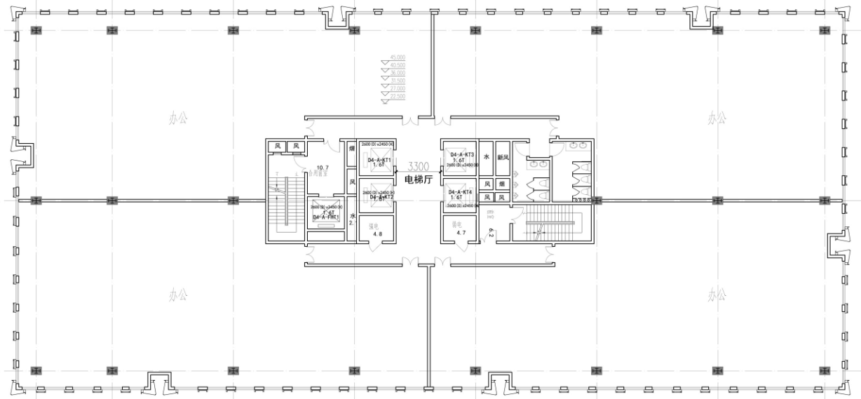
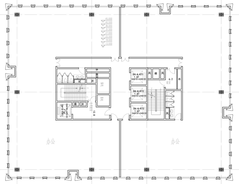
技术图纸
下滑查看更多















