日 清 的 街 角
街角,是城市的缩影,也是故事的起点。
在这里,道路交汇,人流穿梭,时光沉淀;
在这里,建筑与生活对话,设计与日常相融。
日清设计,以专注之心观察每一处街角的脉动,
用建筑的语言,回应城市的记忆与未来的想象。
我们相信,好的设计不仅是空间的塑造,
更是对生活痕迹的珍藏,对城市温度的传递。
那些被日清赋予新生的街角,
或许是转角的一抹光影,或许是砖石间的细腻叙事,
它们安静地矗立,却让城市有了更生动的表情。
和我们一起,发现街角的诗意,
感受设计如何让寻常之地,生出不寻常的故事。
日清的街角
—— 让城市,更有温度。
大连路新弘大厦
Xinhong Building, Dalian Road
中国,上海
Shanghai, China
引言:门户之地的命题
在城市的动态演进中,特定地块往往承载着超越其物理边界的深层意义。大连路新弘大厦所处的场地,正是这样一个串联杨浦与虹口两大核心功能板块的战略节点。从宏观层面来看,基地东接大连路总部研发集聚区,西邻北外滩航运服务总部基地,其不仅是虹口旧改的关键一环,更肩负着激活区域交界地带的使命。
聚焦于场地本身,周围环境语境极为丰富:项目踞守于大连路地铁站的十字路口,城市流线在此交汇。西侧与提篮桥历史街区相接,人文氛围浓厚;东侧直面大连路绿地公园,景观视野开阔;东北角则是现代化的办公建筑群。在此交通枢纽与多元界面的交汇处,如何协调历史文脉、现代商务、生态景观与居住功能,并塑造积极的转角公共空间,成为本项目核心的设计命题。
区位分析
这里曾是“春江里”弄堂及成片棚户区,如今成为虹口旧改工程面向新城界面的重要门户。在此背景下,新建高层办公楼需要实现的不仅是基本功能,更要在高密度区域完成新旧环境的衔接、多元语境的回应,以及公共价值的重塑。

夜景鸟瞰实景图
场地的契机:从制约到创新的转化
新弘大厦的设计创新源于对城市基础设施的积极回应。项目重启之际,地铁4号线与12号线大连路站已建成于地块东北角。地铁双线交汇显著提升了区位价值,却也带来了现实的用地挑战:若退让地铁出入口及转角广场的排风井构筑物,建筑用地将大幅缩减。
经多部门联合评审,在确保不影响地铁地下空间与结构的前提下,项目获准贴红线建造,仅东南角1-4层需设置防火墙且不得开窗。这一特殊条件,对建筑的空间形态、消防组织及人流疏导提出了全新要求。

地铁加入后的基地用地范围

总平面图

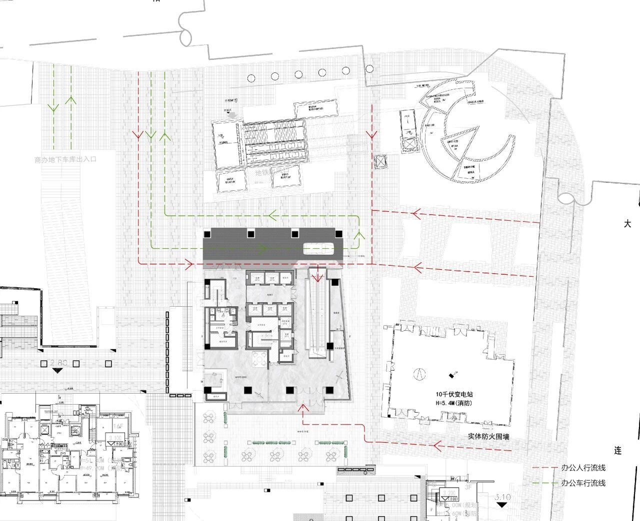
一层流线分析图

流线分析图
为应对高峰时段的地铁人流,设计采用自动扶梯以高效疏导。然而,首层在退让消防车道后空间有限,难以同时容纳大堂接待与交通枢纽功能。由此,“底层架空,双首层”的设计理念应运而生:将办公大堂接待功能设置于二层,首层则被彻底释放,为未来休闲服务与公共功能预留空间;结合景观设计打开后场庭院,与街角空间、地铁出入口、变电所整体考量,将空间归还给城市。街道因此不再是单纯的通行路径,而成为可驻足交融的场所,重现老上海巷弄的生活气息。


一层实景图

一层休闲服务中心效果图
室内设计©上海恩威建筑设计有限公司
在日常使用中,办公人员及访客经扶梯抵达二层开敞大堂,再分流至各办公楼层。南侧结合前台设置休息区,北侧则布局共享会议室与多功能厅,在有限标准层中拓展出多元使用的可能。标准层平面将核心筒及辅助空间偏置于西侧,确保主要办公区域获得开阔视野与高效布局,最终在紧凑用地中实现办公体验与空间效率的最大化。

大厅效果图
室内设计©上海恩威建筑设计有限公司
在标准层平面中,核心筒及辅助用房偏置西侧,在有限的空间中实现办公空间体验的最大化。研究表明为保证较高的利用效率,核心筒口距外墙至少13米,最终确定核心筒的组合形式及平面其它区域的布置形式。
形体的处理:秩序建立与体量消解
在高度密集的旧城肌理中,既创造建筑的标识性又温和地融入既有环境,是新弘大厦必须回应的形态“课题”。对此,面向主要街道的转角,一系列贯通上下的竖向线条构成了建筑鲜明的视觉特征。这些纤长线条以稳定的韵律感,将建筑体量转化为更契合人体尺度的视觉单元,在保持建筑整体挺拔形象的同时,也有效缓解了其体量可能带来的压迫感。

外立面实景图
随着日光流转,立体构造的线条赋予建筑丰富的光影变化,强化了纵深与层次。这种处理手法使新弘大厦在彰显当代性之余,和谐地融入了周边多元的城市肌理。


立面细节实景图
界面的应答:差异化的环境回应
“因境而生”的设计哲学,让新弘大厦的立面呈现出精准的差异化表达。建筑由此跳脱出均质化的桎梏,成为与城市多元对话的积极界面。
北侧主入口作为从大连路地铁站出站人群的首视界面,其识别性至关重要。设计以贯通至顶的刀片状竖向线条,塑造出建筑灵动而整体的形象;近人尺度处,则通过退让形成灰空间,结合玻璃与格栅,既构成具有庇护感的入口区域,也成为天然的避雨空间。竖向格栅通过随机变化的截面长短与间断处理,打破了大面积运用的单调感;其下方灰空间的吊顶,采用梯形穿孔铝板错位排布,配合星点灯光设计,进一步强化了办公楼入口空间的标识性。

北立面实景图

转角立面实景图
东侧直面大连路绿地公园,设计以最大化的透明性回应景观资源。整面单元式玻璃幕墙将公园景致完整引入室内,形成建筑与自然的视觉连通。前后错动的幕墙体块与底部倾斜的格栅灰空间相结合,勾勒出富有层次的街角形象。幕墙外侧竖挺通过尺寸变化形成细腻的立面韵律,内置的智能灯光系统可在夜间变换各种图案与文字,成为城市界面的生动点缀。

东立面实景图

街角人视实景图

南立面实景图

街角夜景实景图
结语:公共价值的当代诠释
新弘大厦的实践,诠释了当代办公建筑的城市角色。在历史与现代、景观与枢纽并存的多元语境中,建筑以精准的设计策略,将典型的场地限制转化为连接城市生活的创造性契机。

北立面夜景实景图
"双首层"的空间构想是达成这一目标的关键。设计将首层部分打造为向城市开放的公共界面,使商业价值与公共价值得以共存。这一选择不仅体现了对城市空间的尊重,更在密集的都市环境中创造出包容性场所。

城市关系实景图
新弘大厦提供了富有启发的范式:当代建筑的价值不仅体现在形式的创新,更在于是否通过恰当的空间策略,在满足功能需求的同时为城市贡献公共价值,最终实现建筑与城市的共生共荣。
工程档案
项目名称丨上海市虹口区大连路新弘大厦
项目位置丨上海虹口区北外滩街道大连路长阳路口
项目功能丨办公
大区总用地面积丨18469.51㎡
大区总建筑面积丨109453.95㎡
办公楼建筑面积丨19483.00㎡
业主单位丨上海弘久实业集团
甲方项目设计管理负责人丨丁卫东、李娜
项目工程管理负责人丨洪磊、高勇毅
设计单位丨上海日清建筑设计有限公司
主持建筑师丨宋照青
项目建筑师丨蔡兢凯 初子圆
后期负责人丨郭丹
设计团队丨刘悦怡 邹丽娜 李登舟 郑新杰 刘泽华 阿荣高娃 温海宽
室内设计单位丨上海恩威建筑设计有限公司
施工图设计丨上海原构设计咨询有限公司
景观设计丨日上海深圳奥雅园林设计有限公司
幕墙顾问丨上海恒利益建装潢工程有限公司
设计时间丨2016-2022
竣工时间丨2020-2025
摄影团队丨吴清山
联合创编
建筑设计丨上海日清建筑设计有限公司 刘悦怡 、初子圆
业主单位丨上海弘久实业集团 洪磊、李娜







