

清风屏莲现荷院,竹影悦鱼泽山居
简介 INTRODUCTION
本案位于珠海市斗门区白蕉镇六乡竹银水库旁,这里有着丰富的地貌及肥沃的土地资源,使得这儿绿植环绕,放眼望去满眼绿荫环绕,是得天独厚的盛夏避暑胜地。

不同于传统的酒店,本案在整体格局上以中式院落为主体设计风格,在娟丽灵秀的大泗山山脚下,院落内石桥流水,竹林飒然,韵致的江南古典建筑与时尚的新中式风格在这里融汇交集。
建筑平面延续传统院落“移步易景”的方式布局。



半亩方塘一鉴开,天光云影共徘徊
空间与流线 TECHNIQUE&METERIAL
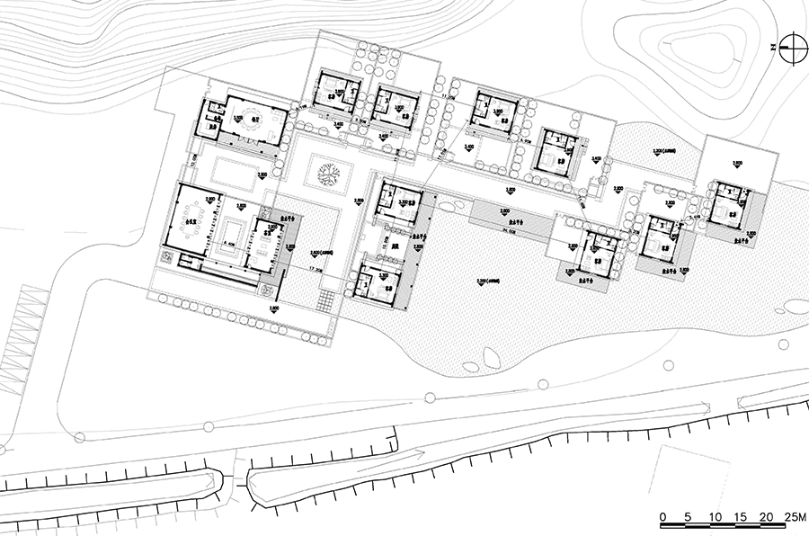
院落由十二个建筑单体组成大大小小不同的院落空间,庭院内共设客房9间,全部以开阔通透的单层套房构置,并配备多功能会议厅。不同院落间穿插着荷塘、绿地等景观。院落间风荷树荫蔽日,青苔茵茵,路径曲折,真是一步一景,步步留恋。院落中的建筑,宽大的落地窗,朝山、面水、向庭院,跨出一步就能融进景中。

◎ 首层平面图




白墙黛瓦春使然,青砖拈花香犹在
手法与材料 TECHNIQUE&METERIAL
建筑的布局以传统院落为雏形,延续传统建筑一贯采用的覆瓦坡屋顶,根据地域特色吸收了当地的建筑形式及色彩,自成特色,体现了新中式风格的风貌,突显中国文化的韵味。通过现代建筑材料和设计手法修正传统建筑中的各个元素,并在此基础上进行必要的演化和抽象。


青砖、粉墙、黛瓦与山青水秀的自然环境相融合,让人寻回久违的闲适静雅安详。


富有诗意的名字,引发山水画般的联想,荷院山居林山傍水而建,视野开阔,有着田园牧歌式的美丽和悠闲。











