文本
CONTEXT

◎规划分析图
项目位于南昌市象湖西岸,真君路与云锦路交汇处,属于西湖区朝阳新城规划板块内。探查西湖区的城市形态会发现,新的城市架构显著区别于老城的延伸结构,这个格局随后逐渐延伸到象湖南岸,彻底并轨进大尺度的现代街区。“滕王阁三角洲”南流的抚河试图保留这个城市的山水特征,并将桥梁转变为城市设计的主要元素。和其他20世纪前作为延伸结构的街区一样,项目所在街区体现了现代性所引发的规律性渴求,以及同等性和同质性的指导原理。因此,这些街区允许将谨慎和端庄等典型的资产阶级品质体现在其建筑外表中,而这种设计的自由则受到了标准规范的限制。而本案则欲意取证这座当代城市的形态记忆,着力避免空降的形式呓语,留守文脉边陲。
场地
CIRCUMSTANCE

◎区位图
上位城市设计用地所在区域沿着象湖蜿蜒的湖岸。万寿宫与万寿塔分居南北,视觉体系可谓广袤,因此建筑本身应该可以清楚地观察到城市风貌。项目的最初创意是抬升地形,保留城市绿地并建造一个新的建筑,填补沿湖规划形成的地标节点空白。因此,建筑使命自然是实现天然场景、新建筑、城市主义的闭环。为了实现这个目标,必须借助清晰的标高体系和精确的体量。而这个举措导致了视角的变化,即创造高度的场所和主体建筑将可以从同一个视角看到,会突出其自主权。

◎东北方向鸟瞰

◎东南方向鸟瞰

◎西北方向鸟瞰

◎东南方向鸟瞰
高度
HEIGHT
建筑作品,作为一个建筑物,一幢房屋,就像是一个杯子或水壶,可以通过其形式特点加以定义,描绘出其从生产制作到使用的整个过程,以及可复制性。从这些角度看,建筑物的精髓即在于其重复性。
——拉尔法·莫内欧
尽管类型概念有对历史的牵强附会之嫌,而归类总是可以务实地表现某种共性。不同于古典城市意象中的步履蹒跚,终登高阁,一睹美景之流,为了创新地设计“高度”,引入桥(坡道)的概念就更具现代趣味,更集约地利用建筑学话语,也无可挽回地落入时间和空间的老生常谈……所以,一座有雕塑感,一类特立独行,一种带有形式批判的环桥被“重复”进了设计理念,既作为主体建筑的连接器,也是对于相邻九州大街下穿隧道的回应。

◎体量分析图
我们从体量上着手,将矩形展廊嫁接在两进院落之上,接待大厅,展示大厅,休息区横向排开。下方的一进院落向北开放,通过围合环桥形成的弧形墙体引导观众向入口靠拢。二进院落纵向布置办公区,同时向南侧外部庭院开放。以此为空间框架,环桥对侧不失时机地展开扩容,形成了门厅的前导区。由不同尺度的空间累积,平面及高度上的形体复制,带来了两部分建筑之间的一种动态而克制的独特观感。

◎场地鸟瞰

◎环桥中心远眺

◎环桥远眺主体
本案的结构设计不仅仅是解决并实现承载功能,要进而揭示其背后的形式逻辑,这种形式逻辑往往建立在几何关系的基础之上。由结构动图可以看到,我们最终采用的单侧悬挂箱形梁解决了设计中的关键问题:如何将灵活自治的部件融合,从而形成一个产生内聚力的整体。

◎结构示意

◎环桥起点

◎环桥作为悬空的装置

◎单侧悬挂结构
叙事
STORYLINE
观者随之感受到穿过广场时的他们自身与他们的运动。随着人的移动,雕塑也随之改变。作品中的对比与扩张来自于观者的运动。一步一步地,观众对雕塑的感受发生这变化,对整体环境的感受也在发生变化。
——理查德·塞拉

◎爆炸图
穿过城市绿地,抵达去纪念性的庭院入口,目光所及的是分立于入口轴线的三条流线:左侧为玻璃门厅,直入进长达21M结构跨度下的休憩区或移步登上右方的环桥。两条流线的起点也是终点,重点是架空层作为设计的重要理念,创造了小型建筑的公共性。

◎悬挑下部空间

◎庭院入口

◎环桥一侧流线

◎环桥下方水景
人们可以进入这样一个空间,它是他周围真实的领域,当一些精心考虑的物体和线条被引入的时候,就具有了尺度和意义。这就是雕塑创造空间的原因。每一个要素的大小和形状是与整个空间和其它所有要素相关联的……我称这些雕塑为园林。
——野口勇

◎建筑入口
在哈贝马斯的“公共领域”的概念里,其本质是一个对话性的场所,人们聚集在一个共享的空间中,作为平等的参与者面对面地交谈并形成“公共生活”。我们要创造的就是这样一个寂静、有力的公共领域,无论建筑是功能本位抑或形式本位。最终有形的环形结构创造了无形多维的流线,雕塑化的环形架构给予了层层推进的景别。

◎21M跨度下的公共领域

◎入口庭院
维度
DIMENSION
我不想画一幅画,我想打开空间,创造一个新的维度,将它与无限伸展的宇宙相连。因为它不断扩展,甚至超过了被约束的平面。
——卢西奥·丰塔纳

◎入口院墙

◎入口院墙

◎墙面镂空

◎建筑化景观
作为墙体的建筑扮演了非常重要的角色,承重的院墙更加凸显了建筑最终形式的水平排列结构。我们希望表现建筑内外与场所的真实逻辑,强调材料运用的功能性、表现性与体系化。19000块25度灰色水泥板挂在亲地化的体量上,创造出极简细节。在院墙镂空的阴影中,在随机排布的构图中,空间被创造。通过横向槽缝的联系,实现室内外场景的渗透,增添了概念与视觉上的标志意义。

一旦冲破单眼观察的限制,各种惊人的事情都可能出现。
——大卫·霍克尼
在考虑建筑透明面的组合形式,即几何学时,我们决定采用规律并置的玻璃幕墙,不仅借此提供优美的风景,同时满足视觉透明性,一侧是环桥院落,一侧是开阔的象湖向下游延伸。视域记忆在设计中的重要性强调了我们对建筑与其他地理环境之间关系的重视程度,以借此带来了互动拼贴化的视觉体验。
◎从门厅远眺环桥
技术图纸
Technical Drawing

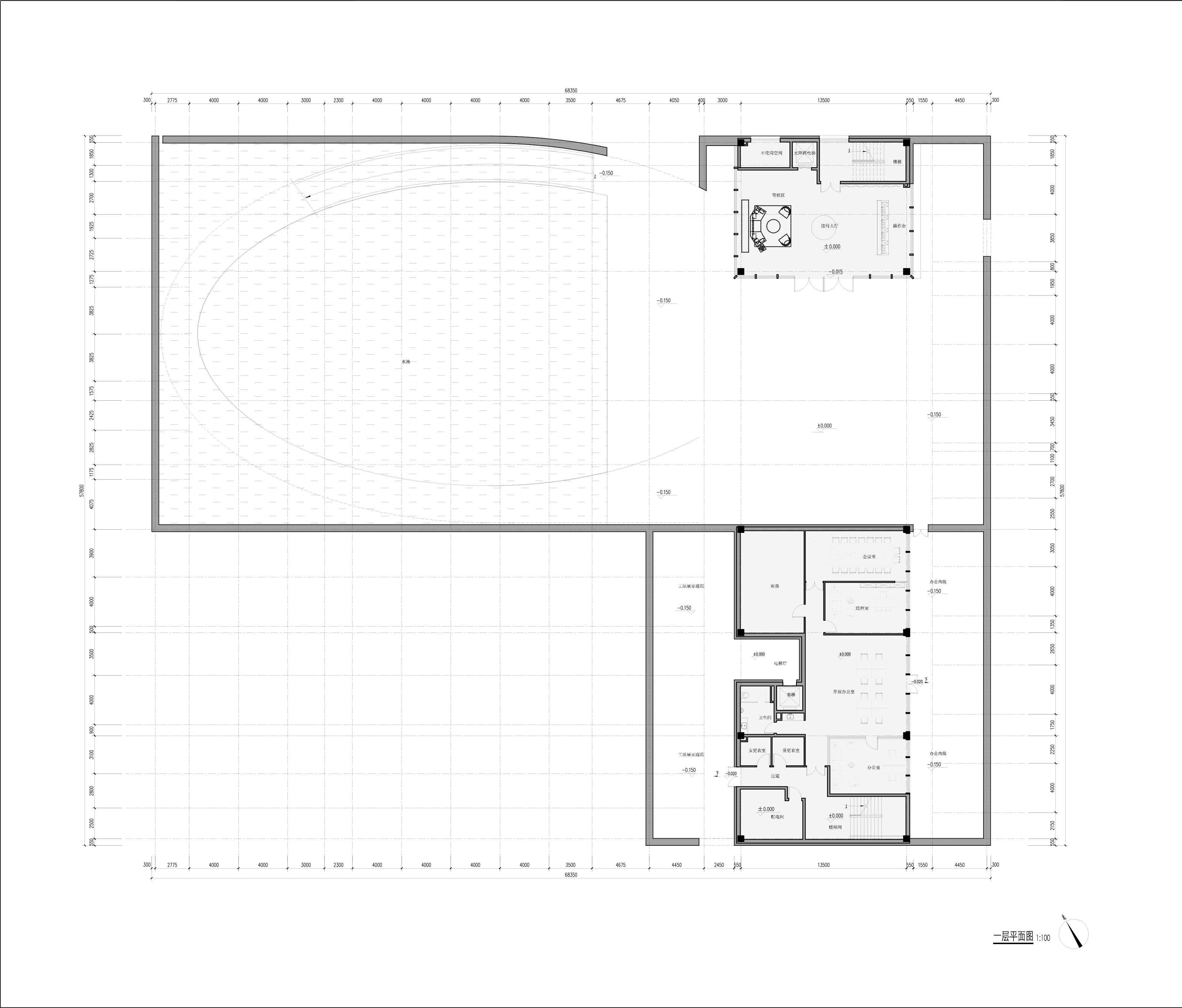
一层平面图

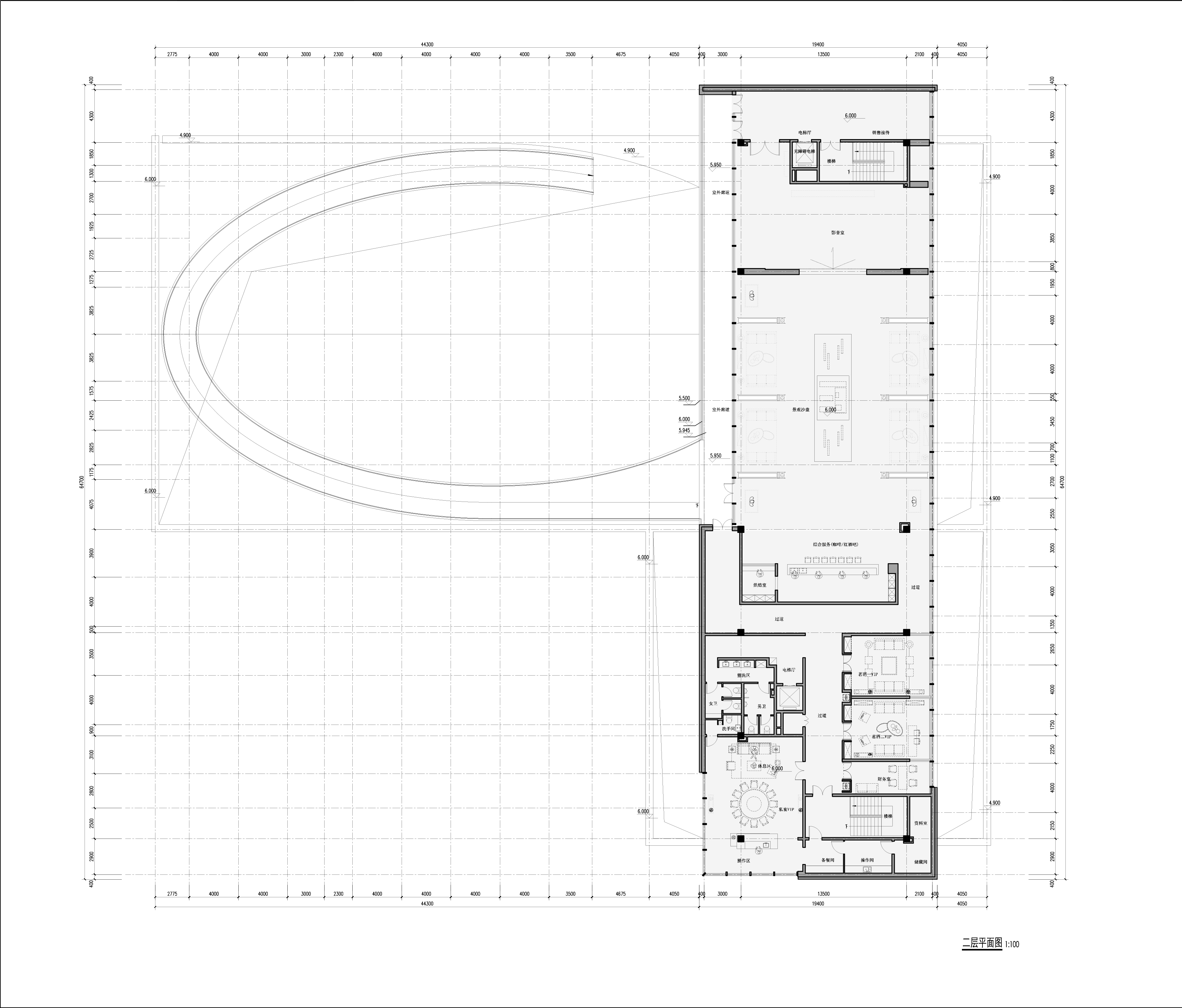
二层平面图

东立面图

南立面图

西立面图

北立面图

剖面图






